← Back to East Suffolk Council

Status

Awaiting decision New housing
Received
19 Aug 2025
New dwellings
3

Summary

Erection of three houses with new shared access off Red House Lane.

Full Proposal

Erection of 3no. houses on land to the rear of Red House, with new shared access off Red House Lane.

Documents

APPLICATION FORM REDACTED
Application Form
Not archived · Council Link
ARBORICULTURAL IMPACT ASSESSMENT AND METHOD STATEMENTS - TPSQU0338
Supporting Documents
Not archived · Council Link
BIODIVERSITY NET GAIN ASSESSMENT
Supporting Documents
Not archived · Council Link
BIODIVERSITY NET GAIN ASSESSMENT
Biodiversity Net Gain
Not archived · Council Link
BIODIVERSITY NET GAIN ASSESSMENT - 250626-TMA-XX-RP-EC-5800
Supporting Documents
Not archived · Council Link
BIODIVERSITY NET GAIN CALCULATION METRIC
Biodiversity Net Gain
Not archived · Council Link
BIODIVERSITY NET GAIN CALCULATION METRIC V2
Biodiversity Net Gain
Not archived · Council Link
CLARIFICATION REGARDING THE SURFACE WATER DRAINAGE
Supporting Documents
Not archived · Council Link
CLARIFICATION REGARDING THE SURFACE WATER DRAINAGE
Supporting Documents
Not archived · Council Link
CONSTRUCTION METHOD STATEMENT - APRIL 2025
Supporting Documents
Not archived · Council Link
DESIGN AND ACCESS STATEMENT - REV B
Supporting Documents
Not archived · Council Link
ECOLOGICAL IMPACT ASSESSMENT AND BAT SURVEY REPORT 2019 - 19005 R1 V1
Supporting Documents
Not archived · Council Link
ESC DESIGN AND HERITAGE
Consultee Comment
Not archived · Council Link
ESC ECOLOGY
Consultee Comment
Not archived · Council Link
ESC ECOLOGY
Consultee Comment
Not archived · Council Link
ESC ENVIRONMENTAL PROTECTION
Consultee Comment
Not archived · Council Link
ESC TREES & LANDSCAPE
Consultee Comment
Not archived · Council Link
ESC WASTE MANAGEMENT
Consultee Comment
Not archived · Council Link
FLOOD MAP
Supporting Documents
Not archived · Council Link
FLOOD RISK ASSESSMENT
Supporting Documents
Not archived · Council Link
HARD AND SOFT LANDSCAPE PROPOSALS
Drawing
Not archived · Council Link
HARD AND SOFT LANDSCAPE PROPOSALS
Revised Drawing
Not archived · Council Link
HERITAGE STATEMENT
Supporting Documents
Not archived · Council Link
INFO SHEET
Neighbour Notification List
Not archived · Council Link
LEISTON-CUM-SIZEWELL TOWN COUNCIL
Consultee Comment
Not archived · Council Link
LIGHTING DESIGN - DF8932
Supporting Documents
Not archived · Council Link
MARFLEET
Public Comment
Not archived · Council Link
PART 1 - PHASE 1 ? DESK STUDY AND PRELIMINARY RISK ASSESSMENT
Supporting Documents
Not archived · Council Link
PART 2 - PHASE 1 ? DESK STUDY AND PRELIMINARY RISK ASSESSMENT
Supporting Documents
Not archived · Council Link
PART 3 - PHASE 1 ? DESK STUDY AND PRELIMINARY RISK ASSESSMENT
Supporting Documents
Not archived · Council Link
PART 4 - PHASE 1 ? DESK STUDY AND PRELIMINARY RISK ASSESSMENT
Supporting Documents
Not archived · Council Link
PART 5 - PHASE 1 ? DESK STUDY AND PRELIMINARY RISK ASSESSMENT
Supporting Documents
Not archived · Council Link
PLOTS 1-3 - PROPOSED ELEVATIONS
Revised Drawing
Not archived · Council Link
Revised Drawing
Archived · Council Link
PRELIMINARY ECOLOGICAL APPRAISAL
Supporting Documents
Not archived · Council Link
PRELIMINARY ECOLOGICAL APPRAISAL
Supporting Documents
Not archived · Council Link
PRELIMINARY ECOLOGICAL APPRAISAL - 1738 R1 V1
Supporting Documents
Not archived · Council Link
PROPOSED BLOCK PLAN
Revised Drawing
Not archived · Council Link
PROPOSED ELEVATIONS (PLOTS 1, 2 & 3)
Drawing
Not archived · Council Link
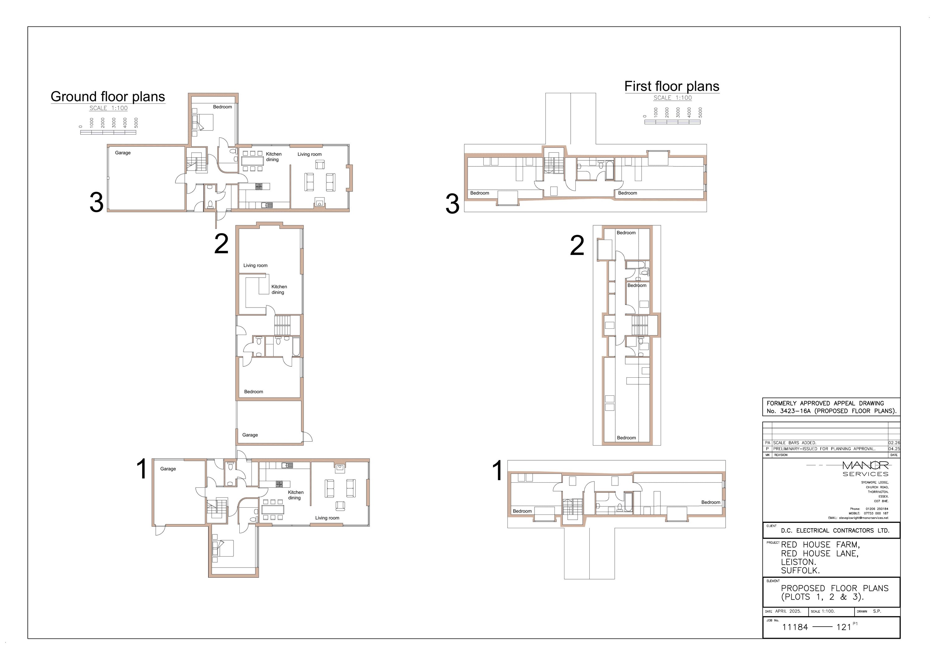
PROPOSED FLOOR PLANS (PLOTS 1, 2 & 3)
Drawing
Not archived · Council Link
PROPOSED FOUL & SW DRAINAGE STRATEGIES WITH LEVELS
Revised Drawing
Not archived · Council Link
PROPOSED FOUL & SW STRATEGIES WITH LEVELSDRAINAGE
Revised Drawing
Not archived · Council Link
PROPOSED FOUL AND SW DRAINAGE STRATEGIES WITH LEVELS PLAN
Drawing
Not archived · Council Link
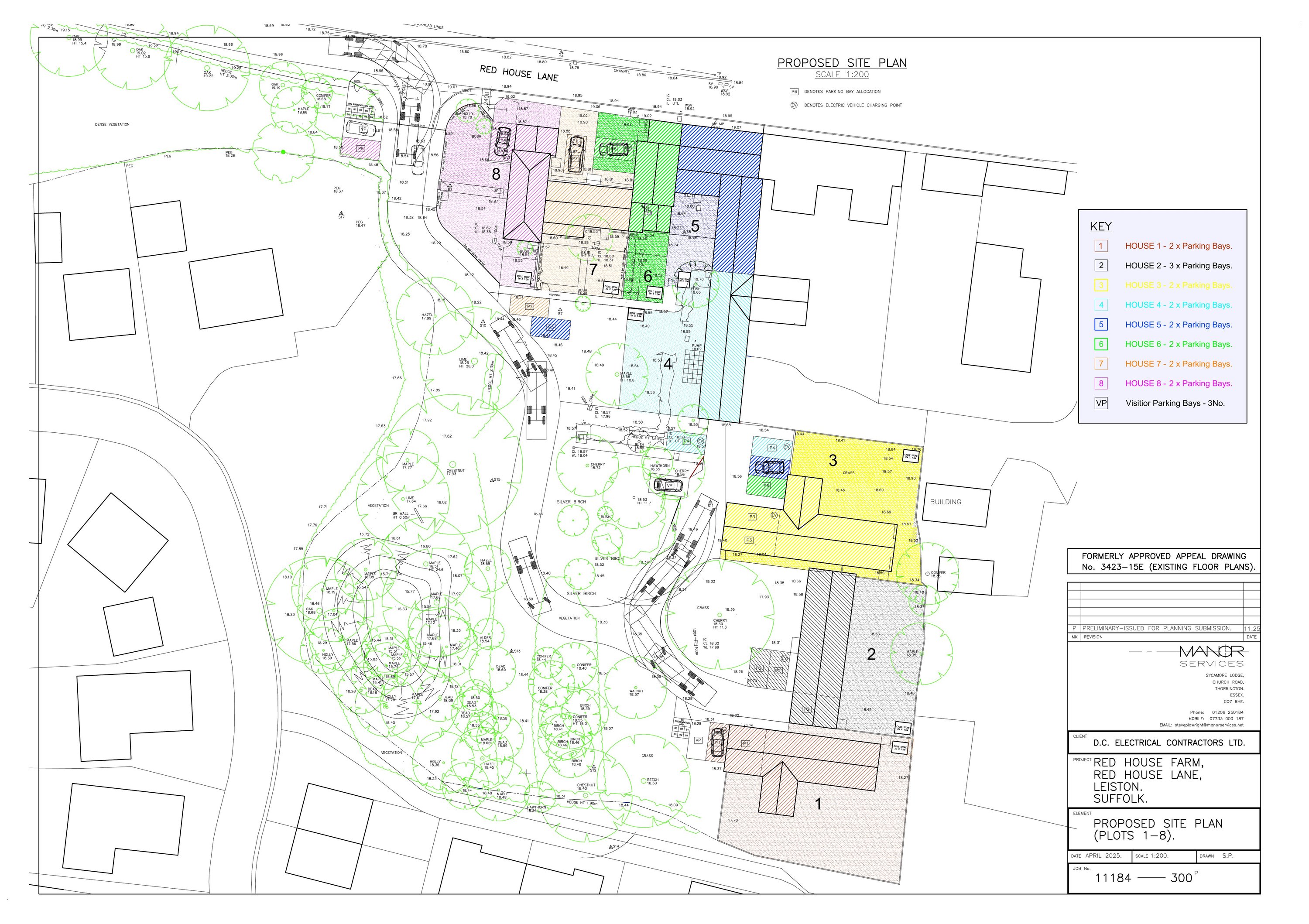
PROPOSED SITE PLAN
Drawing
Not archived · Council Link
Drawing
Archived · Council Link
PROPOSED SITE PLAN
Drawing
Not archived · Council Link
SCC FIRE AND RESCUE SERVICE
Consultee Comment
Not archived · Council Link
SCC JOINT EMERGENCY PLANNING UNIT
Consultee Comment
Not archived · Council Link
SCCHW - SCC HIGHWAYS DEPARTMEN
Consultee Comment
Not archived · Council Link
SMITH - 21 RED HOUSE LANE
Public Comment
Not archived · Council Link
SUPERSEDED - BIODIVERSITY NET GAIN ASSESSMENT - 250626-TMA-XX-RP-EC-5800
Supporting Documents
Not archived · Council Link
SUPERSEDED - HARD AND SOFT LANDSCAPE PROPOSALS
Drawing
Not archived · Council Link
SUPERSEDED - PRELIMINARY ECOLOGICAL APPRAISAL - 1738 R1 V1
Supporting Documents
Not archived · Council Link
SUPERSEDED - PROPOSED ELEVATIONS (PLOTS 1, 2 & 3)
Drawing
Not archived · Council Link
SUPERSEDED - PROPOSED FOUL AND SW DRAINAGE STRATEGIES WITH LEVELS PLAN
Drawing
Not archived · Council Link
SUPERSEDED - THE STATUTORY BIODIVERSITY METRIC CALCULATOR
Biodiversity Net Gain
Not archived · Council Link
SUPERSEDED BIODIVERSITY NET GAIN ASSESSMENT
Supporting Documents
Not archived · Council Link
SUPERSEDED BIODIVERSITY NET GAIN CALCULATION METRIC
Biodiversity Net Gain
Not archived · Council Link
SUPERSEDED PRELIMINARY ECOLOGICAL APPRAISAL
Supporting Documents
Not archived · Council Link
SUPERSEDED PROPOSED FOUL & SW STRATEGIES WITH LEVELSDRAINAGE
Revised Drawing
Not archived · Council Link
THE STATUTORY BIODIVERSITY METRIC CALCULATOR
Biodiversity Net Gain
Not archived · Council Link
TREE SURVEY - APPENDIX 1-6
Supporting Documents
Not archived · Council Link
WRITTEN SCHEME OF INVESTIGATION - 2025/04D
Supporting Documents
Not archived · Council Link

Take Action

Make your voice heard. Authorities need to hear from people who support new homes.

✉️ Write Email in Support View on Council Portal