← Back to East Suffolk Council

Status

Permitted Change of use
Received
22 Aug 2025
New dwellings
0

Summary

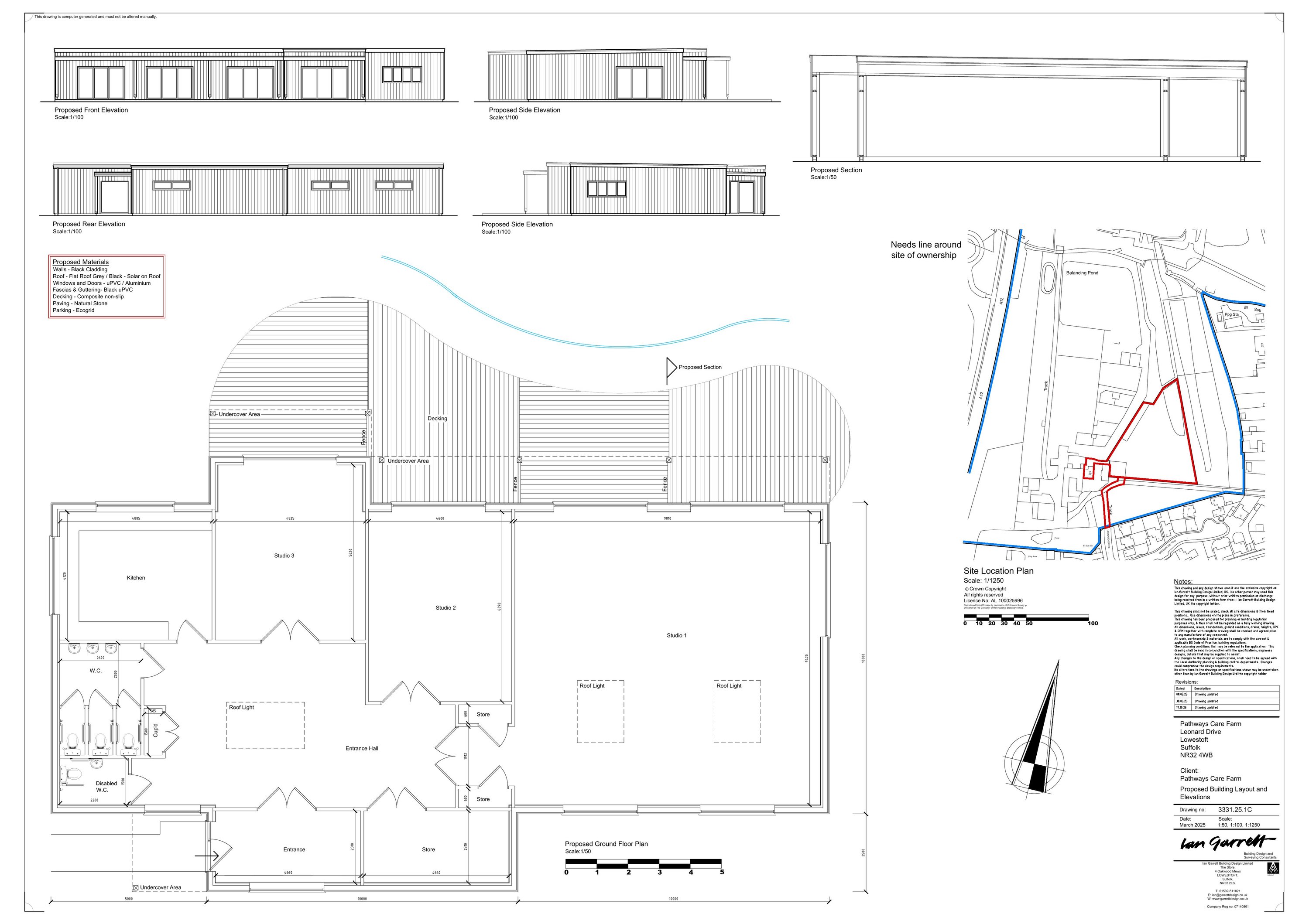
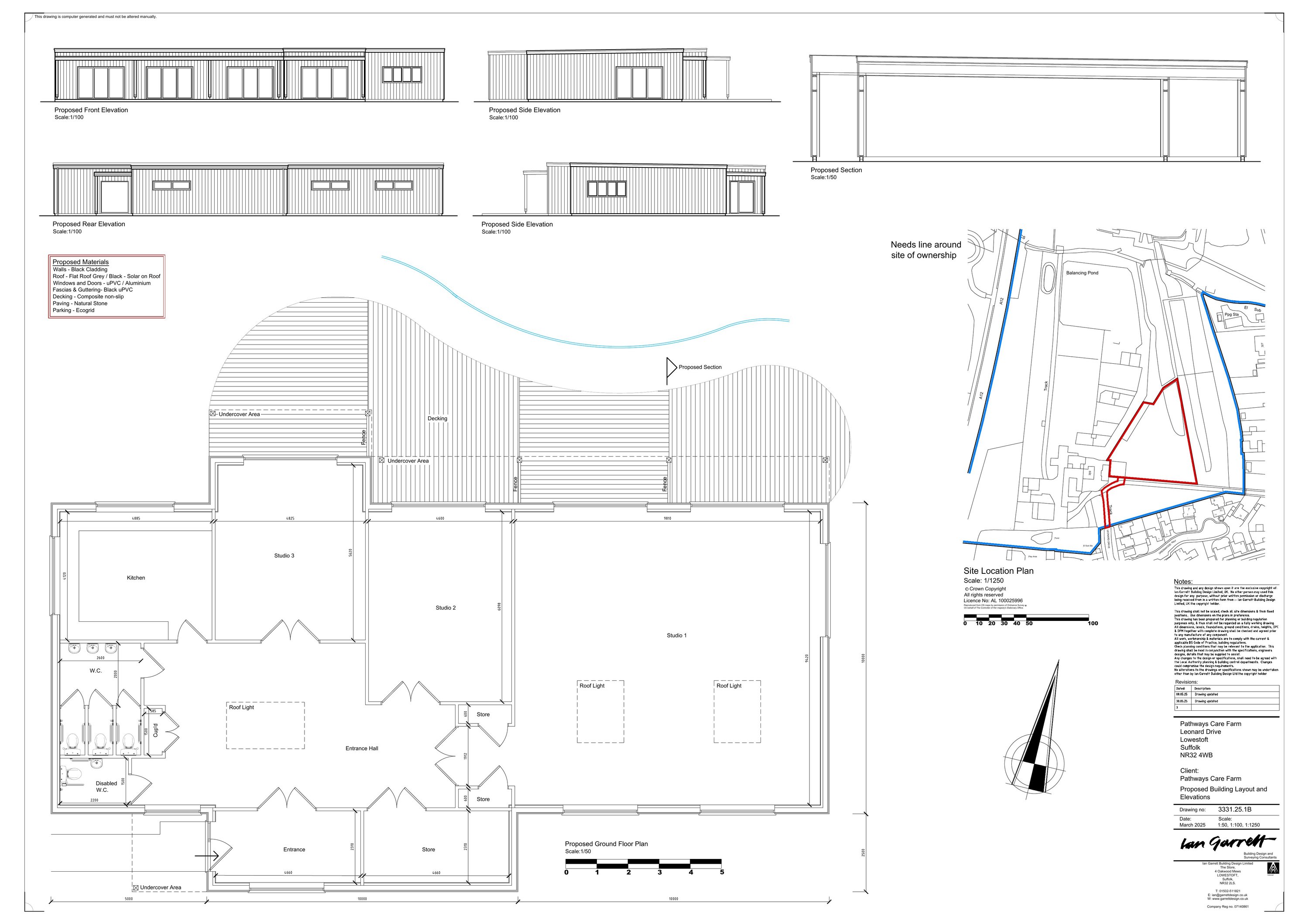
New learning centre and change of farm building from office back to a residential dwelling.

Full Proposal

Proposed new learning center and site alterations to suit and change of use of Farm Building from Office/Meeting Rooms back to a residential dwelling

Documents

Application Form
Application Form
Not archived · Council Link
APPROVE - FULL APPLICATION
Decision Notice
Not archived · Council Link
AYERS
Public Comment
Not archived · Council Link
BREWSTER - 11 LEONARD DRIVE
Public Comment
Not archived · Council Link
CORTON PARISH COUNCIL
Consultee Comment
Not archived · Council Link
DALE - 9 GREENWOOD WAY, LOWESTOFT
Public Comment
Not archived · Council Link
DELEGATED REPORT
Officer / Committee Report
Not archived · Council Link
DESIGN AND ACCESS STATEMENT
Supporting Documents
Not archived · Council Link
ESC COMMUNITIES
Consultee Comment
Not archived · Council Link
ESC ECOLOGY
Consultee Comment
Not archived · Council Link
ESC ENVIRONMENTAL PROTECTION
Consultee Comment
Not archived · Council Link
EXISTING & PROPOSED BLOCK PLANS
Drawing
Not archived · Council Link
Revised Drawing
Archived · Council Link
INFO SHEET
Neighbour Notification List
Not archived · Council Link
LOWESTOFT TOWN COUNCIL
Consultee Comment
Not archived · Council Link
NATURAL ENGLAND
Consultee Comment
Not archived · Council Link
OULTON BROAD PARISH COUNCIL
Consultee Comment
Not archived · Council Link
PRELIMINARY ECOLOGICAL APPRAISAL & BIODIVERSITY NET GAIN ASSESSMENT
Supporting Documents
Not archived · Council Link
RUSHMER - 7 BENTLEY DRIVE
Public Comment
Not archived · Council Link
SCC FIRE & RESCUE
Consultee Comment
Not archived · Council Link
SCC HIGHWAYS
Consultee Comment
Not archived · Council Link
SITECHECK ASSESS - CONTAMINATED LAND ASSESSMENT
Supporting Documents
Not archived · Council Link
STATUTORY BIODIVERSITY METRIC CALCULATION
Supporting Documents
Not archived · Council Link
SUPERSEDED - DESIGN & ACCESS STATEMENT
Supporting Documents
Not archived · Council Link
SUPERSEDED - PROPOSED SITE, FLOOR, ELEVATIONS & SECTION
Drawing
Not archived · Council Link
SUPERSEDED - SITE LAYOUT/LANDSCAPING
Drawing
Not archived · Council Link
TREE - EAST SUFFOLK LANDSCAPE TEAM
Consultee Comment
Not archived · Council Link
TURK - 16 HOWLEY GARDENS
Public Comment
Not archived · Council Link

Take Action

Make your voice heard. Authorities need to hear from people who support new homes.

✉️ Write Email in Support View on Council Portal