← Back to East Suffolk Council

Status

Permitted House extension
Received
15 Sep 2025
New dwellings
0

Full Proposal

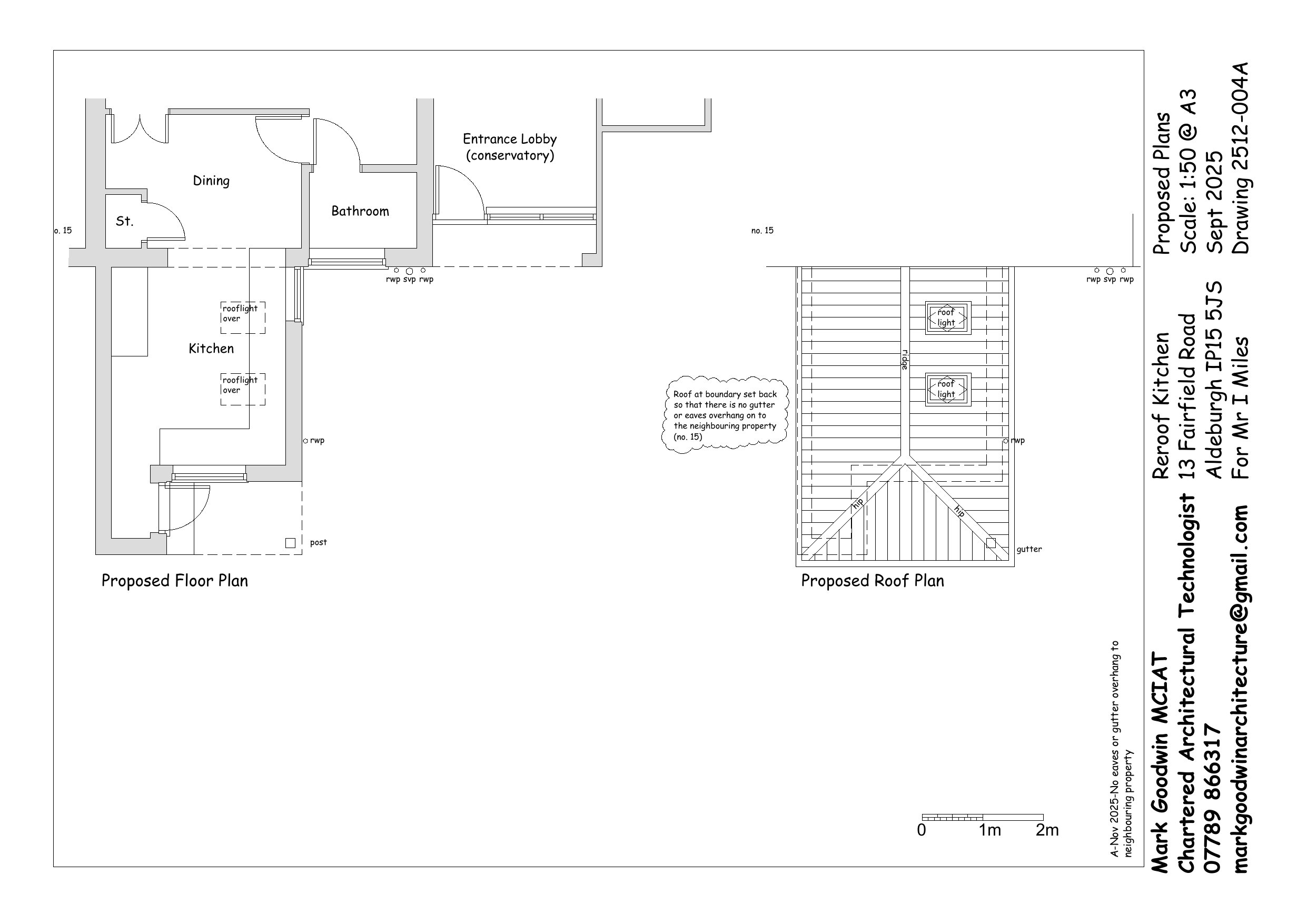
Removal of existing felt flat roof to existing kitchen extension. Build up existing walls and re-roof with replacement pitched roof.

Documents

ALDEBURGH TOWN COUNCIL
Consultee Comment
Not archived · Council Link
APPLICATIONFORMREDACTED
Application Form
Not archived · Council Link
APPROVE - FULL APPLICATION
Decision Notice
Not archived · Council Link
EXISTING ELEVATIONS
Drawing
Not archived · Council Link
EXISTING PLAN
Drawing
Not archived · Council Link
Officer / Committee Report
Officer / Committee Report
Not archived · Council Link
PERKINS - 15 FAIRFIELD ROAD
Public Comment
Not archived · Council Link
PERKINS - 15 FAIRFIELD ROAD
Public Comment
Not archived · Council Link
PERKINS - 15 FAIRFIELD ROAD
Public Comment
Not archived · Council Link
PERKINS - 15 FAIRFIELD ROAD
Public Comment
Not archived · Council Link
PROPOSED ELEVATIONS
Revised Drawing
Not archived · Council Link
Revised Drawing
Archived · Council Link
PROPOSED SECTIONS
Revised Drawing
Not archived · Council Link
Drawing
Archived · Council Link
SUPERSEDED PROPOSED ELEVATIONS
Drawing
Not archived · Council Link
SUPERSEDED PROPOSED SECTIONS
Drawing
Not archived · Council Link

Take Action

Make your voice heard. Authorities need to hear from people who support new homes.

✉️ Write Email in Support View on Council Portal