← Back to East Suffolk Council

Status

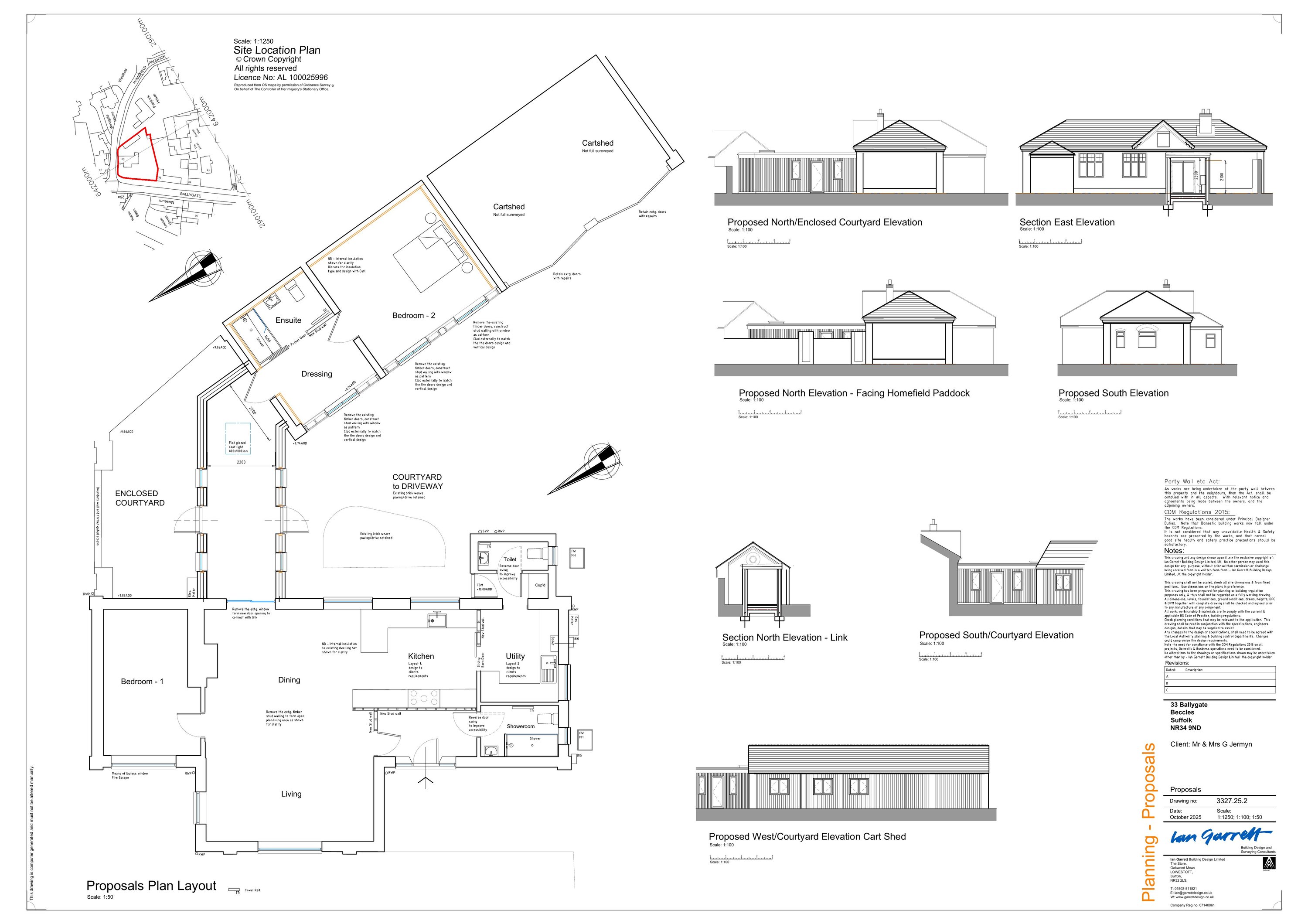
Permitted House extension
Received
28 Oct 2025
New dwellings
0

Full Proposal

Link extension, conversion of cart shed to bedroom/ensuite, pitch existing flat roof, and additional car parking/turning

Documents

Application Form
Application Form
Not archived · Council Link
APPROVE - FULL APPLICATION
Decision Notice
Not archived · Council Link
BECCLES TOWN COUNCIL
Consultee Comment
Not archived · Council Link
DESIGN & ACCESS STATEMENT AND HERITAGE IMPACT ASSESSMENT
Supporting Documents
Not archived · Council Link
EAST SUFFOLK DESIGN AND HERITAGE
Consultee Comment
Not archived · Council Link
INFO SHEET
Neighbour Notification List
Not archived · Council Link
Officer / Committee Report
Officer / Committee Report
Not archived · Council Link

Take Action

Make your voice heard. Authorities need to hear from people who support new homes.

✉️ Write Email in Support View on Council Portal