← Back to East Suffolk Council

Status

Awaiting decision House extension
Received
03 Nov 2025
New dwellings
0

Full Proposal

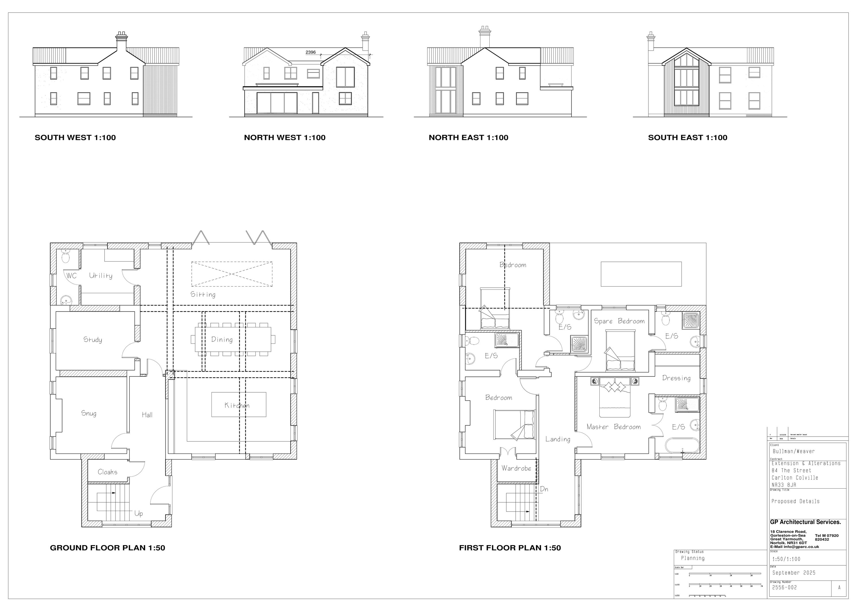
Two storey side extension to main section of dwelling with re-roof over. Two storey front and rear extension and single storey rear and side wrap-around extension.

Documents

CARLTON COLVILLE TOWN COUNCIL
Consultee Comment
Not archived · Council Link
ESC ECOLOGY
Consultee Comment
Not archived · Council Link
ESC ENVIRONMENTAL PROTECTION
Consultee Comment
Not archived · Council Link
EXISTING FLOOR & ELEVATIONS
Drawing
Not archived · Council Link
INFO SHEET
Neighbour Notification List
Not archived · Council Link
Drawing
Archived · Council Link
REDACTED APPLICATION FORM
Application Form
Not archived · Council Link
SCC LOCAL HIGHWAY AUTHORITY
Consultee Comment
Not archived · Council Link
Site Plan
Archived · Council Link

Take Action

Make your voice heard. Authorities need to hear from people who support new homes.

✉️ Write Email in Support View on Council Portal