← Back to East Suffolk Council

Status

Permitted House extension
Received
13 Nov 2025
New dwellings
0

Full Proposal

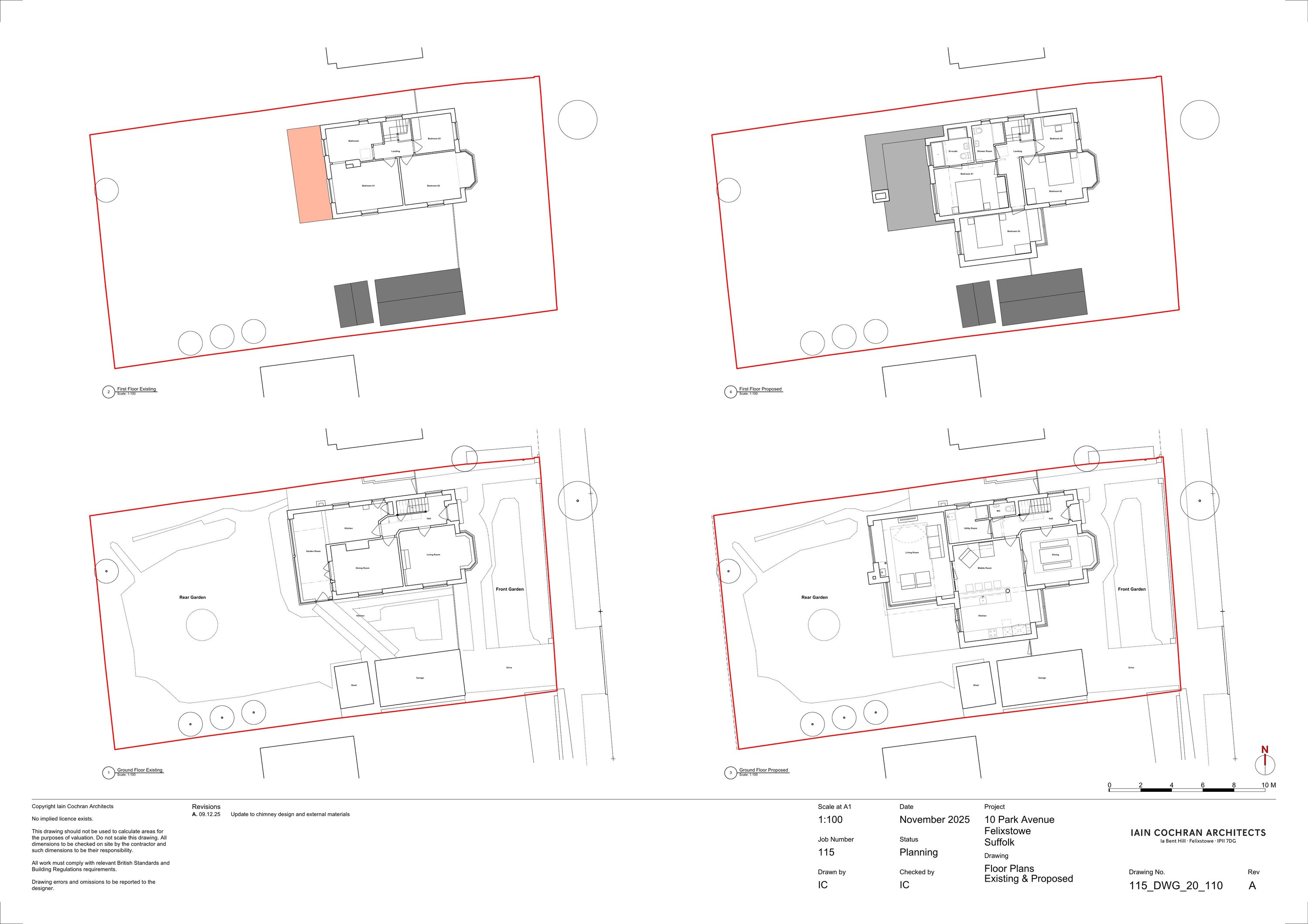
Rear and side extension to an existing house

Documents

**SUPERSEDED** EXISTING/PROPOSED ELEVATION
Drawing
Not archived · Council Link
**SUPERSEDED** EXISTING/PROPOSED FLOOR
Drawing
Not archived · Council Link
Application Form
Application Form
Not archived · Council Link
APPROVE - FULL APPLICATION
Decision Notice
Not archived · Council Link
EXISTING/PROPOSED BLOCK
Drawing
Not archived · Council Link
EXISTING/PROPOSED ELEVATIONS
Revised Drawing
Not archived · Council Link
EXISTING/PROPOSED FLOOR
Revised Drawing
Not archived · Council Link
FELIXSTOWE TOWN COUNCIL
Consultee Comment
Not archived · Council Link
INFO SHEET
Neighbour Notification List
Not archived · Council Link
Officer / Committee Report
Officer / Committee Report
Not archived · Council Link
Site Plan
Archived · Council Link
SUPERSEDED - EXISTING & PROPOSED ELEVATIONS
Drawing
Not archived · Council Link

Take Action

Make your voice heard. Authorities need to hear from people who support new homes.

✉️ Write Email in Support View on Council Portal