← Back to East Suffolk Council

Status

Awaiting decision New housing
Received
09 Dec 2025
New dwellings
1

Full Proposal

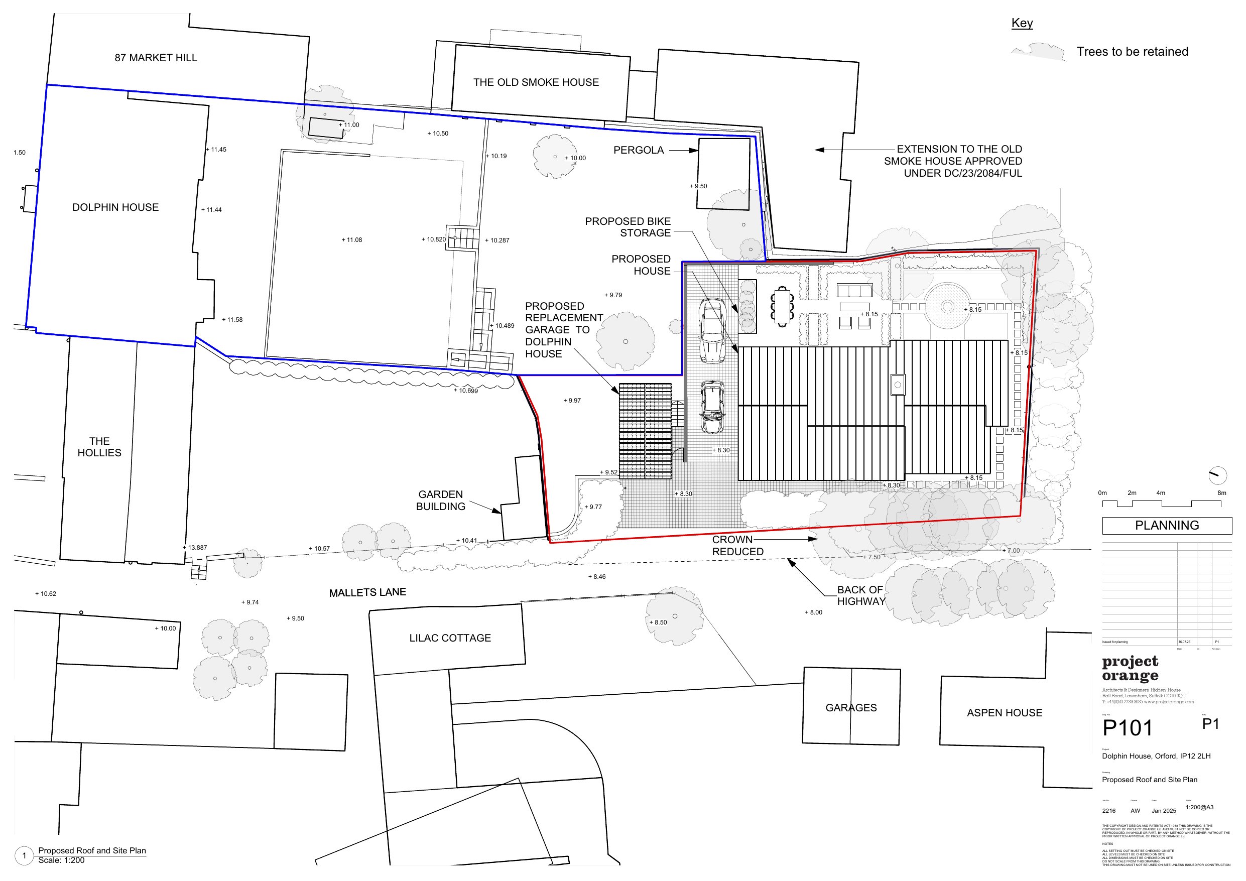
A replacement single garage to Dolphin House and below it, to the south, and parallel to Mallets Lane, a new single storey dwelling with 2 tandem parking spaces.

Documents

2216 DRAWING ISSUE SHEET
Supporting Documents
Not archived · Council Link
APPLICATION FORM REDACTED
Application Form
Not archived · Council Link
BIODIVERSITY NET GAIN (STATUTORY METRIC) DESIGN STAGE REPORT
Biodiversity Net Gain
Not archived · Council Link
BIODIVERSITY NET GAIN ASSESSMENT
Biodiversity Net Gain
Not archived · Council Link
BIODIVERSITY NET GAIN CALCULATION METRIC
Biodiversity Net Gain
Not archived · Council Link
CONTAMINATED LAND REPORT
Supporting Documents
Not archived · Council Link
DESIGN AND ACCESS STATEMENT
Supporting Documents
Not archived · Council Link
DEVELOPMENT MANAGEMENT DOMESTIC VEHICULAR ACCESS LAYOUTNO EXISTING FOOTWAY OR KE
Drawing
Not archived · Council Link
DRIVEWAY MATERIALS SPECIFICATION
Supporting Documents
Not archived · Council Link
ECOLOGY REPORT
Supporting Documents
Not archived · Council Link
ESC DESIGN AND HERITAGE
Consultee Comment
Not archived · Council Link
ESC ECOLOGY
Consultee Comment
Not archived · Council Link
ESC ENVIRONMENTAL PROTECTION
Consultee Comment
Not archived · Council Link
EXISTING ELEVATIONS
Drawing
Not archived · Council Link
EXISTING GROUND FLOOR PLAN
Drawing
Not archived · Council Link
EXISTING ROOF PLAN
Drawing
Not archived · Council Link
Drawing
Archived · Council Link
EXISTING SITE SECTION
Drawing
Not archived · Council Link
HERITAGE IMPACT ASSESSMENT
Supporting Documents
Not archived · Council Link
HIGHWAY ACCESS STATEMENT INGENT
Supporting Documents
Not archived · Council Link
INFO SHEET
Neighbour Notification List
Not archived · Council Link
LAND-CONTAMINATION-QUESTIONNAIRE
Supporting Documents
Not archived · Council Link
MR EDWARD PLATT-THE HOLLIES 85 MARKET HILL ORFORD WOODBRIDGE SUFFOLK(FULL)
Public Comment
Not archived · Council Link
ORFORD PARISH COUNCIL
Consultee Comment
Not archived · Council Link
PLANTING SCHEDULE
Supporting Documents
Not archived · Council Link
PROPOSED GROUND FLOOR PLAN
Drawing
Not archived · Council Link
PROPOSED LONG ELEVATIONS
Drawing
Not archived · Council Link
PROPOSED PLANTING PLAN
Drawing
Not archived · Council Link
PROPOSED ROOF PLAN
Drawing
Not archived · Council Link
PROPOSED SECTION
Drawing
Not archived · Council Link
PROPOSED SHORT ELEVATION & SECTION A-A
Drawing
Not archived · Council Link
PROPOSED SITE SECTION
Drawing
Not archived · Council Link
S278 VEHICULAR CROSSOVER GENERAL ARRANGEMENT
Drawing
Not archived · Council Link
SCC ARCHAEOLOGICAL UNIT
Consultee Comment
Not archived · Council Link
SCC RIGHTS OF WAY
Consultee Comment
Not archived · Council Link
TRAFFIC SURVEY MALLETS LANE
Supporting Documents
Not archived · Council Link
TREE - EAST SUFFOLK LANDSCAPE TEAM
Consultee Comment
Not archived · Council Link
TREE SURVEY AND PROTECTION PLAN
Drawing
Not archived · Council Link

Take Action

Make your voice heard. Authorities need to hear from people who support new homes.

✉️ Write Email in Support View on Council Portal