← Back to East Suffolk Council

Status

Awaiting decision Change of use
Received
Last month
New dwellings
0

Full Proposal

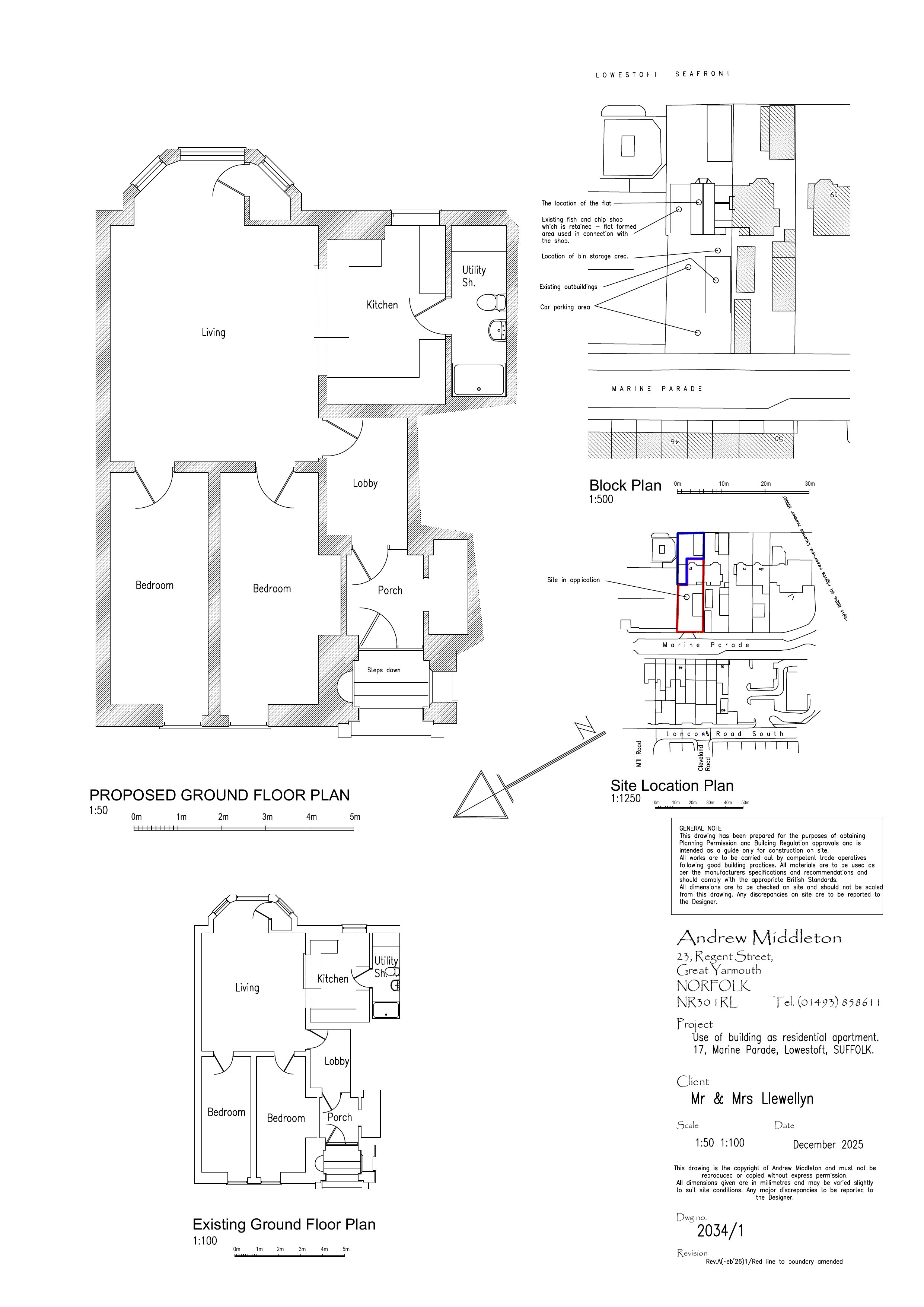
Retrospective Application - Change of use of ground floor storage (previously used in connection with adjoining fish and chip shop) to residential flat.

Documents

APPLICATIONFORMREDACTED
Application Form
Not archived · Council Link
ENVIRONMENT AGENCY
Consultee Comment
Not archived · Council Link
ENVIRONMENTAL PROTECTION
Consultee Comment
Not archived · Council Link
ESC ECOLOGY
Consultee Comment
Not archived · Council Link
FLOOD RISK ASSESSMENT
Supporting Documents
Not archived · Council Link
LOWESTOFT TOWN COUNCIL
Consultee Comment
Not archived · Council Link
MR BRANDON TAYLOR-19 - 21 STATION SQUARE LOWESTOFT SUFFOLK(FULL)
Public Comment
Not archived · Council Link
PLANNING AND HERITAGE STATEMENT
Supporting Documents
Not archived · Council Link
SCC HIGHWAYS DEPARTMENT
Consultee Comment
Not archived · Council Link
SUFFOLK FIRE & RESCUE
Consultee Comment
Not archived · Council Link
SUFFOLK FIRE & RESCUE
Consultee Comment
Not archived · Council Link

Take Action

Make your voice heard. Authorities need to hear from people who support new homes.

✉️ Write Email in Support View on Council Portal