← Back to East Suffolk Council

Status

Awaiting decision New housing
Received
Last month
New dwellings
2

Full Proposal

Construction of two houses, car ports, vehicular and pedestrian accesses, landscape planting, and ancillary development.

Documents

APPLICATION FORM REDACTED
Application Form
Not archived · Council Link
BNG ASSESSMENT
Biodiversity Net Gain
Not archived · Council Link
DESIGN & ACCESS & HERITAGE STATEMENT
Supporting Documents
Not archived · Council Link
ESC ENVIRONMENTAL PROTECTION
Consultee Comment
Not archived · Council Link
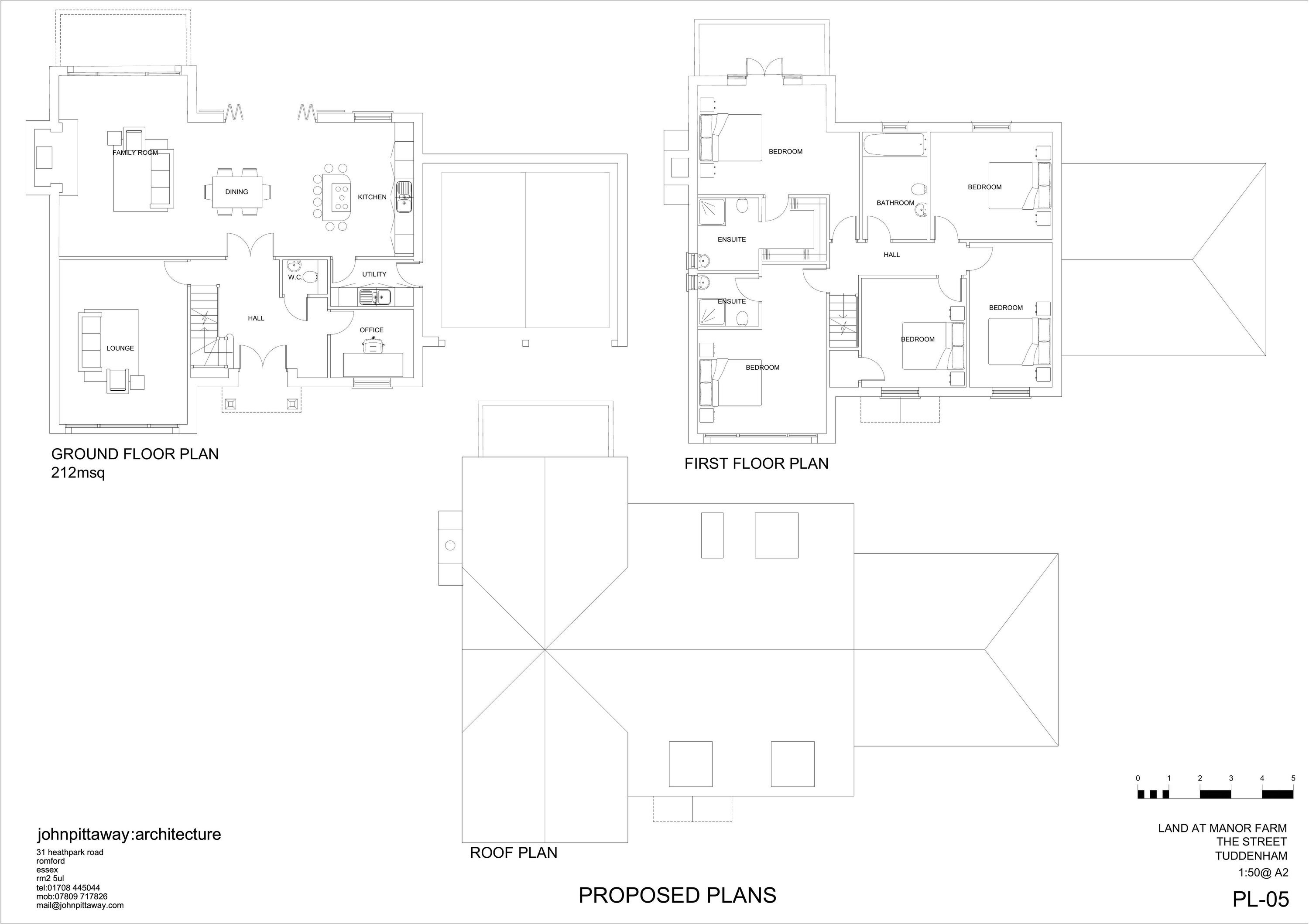
Drawing
Archived · Council Link
GARAGE PLANS & ELEVATION
Drawing
Not archived · Council Link
INFO SHEET
Neighbour Notification List
Not archived · Council Link
LAND CONTAMINATION QUESTIONNAIRE
Supporting Documents
Not archived · Council Link
PHASE 1 SITE ASSESSMENT
Supporting Documents
Not archived · Council Link
PRELIMINARY ECOLOGICAL APPRAISAL
Supporting Documents
Not archived · Council Link
PROPOSED ELEVATIONS
Drawing
Not archived · Council Link
PROPOSED ELEVATIONS
Drawing
Not archived · Council Link
Drawing
Archived · Council Link
PROPOSED LANDSCAPING PLAN
Drawing
Not archived · Council Link
Drawing
Archived · Council Link
PROPOSED SITE ACCESS
Drawing
Not archived · Council Link
Drawing
Archived · Council Link
Drawing
Archived · Council Link
Site Plan
Archived · Council Link
STATUTORY BIODIVERSITY METRIC
Biodiversity Net Gain
Not archived · Council Link

Take Action

Make your voice heard. Authorities need to hear from people who support new homes.

✉️ Write Email in Support View on Council Portal