← Back to East Suffolk Council

Status

Awaiting decision New housing
Received
26 days ago
New dwellings
6

Full Proposal

Proposal for 6 dwellings with garages and associated access

Documents

APPLICATION FORM REDACTED
Application Form
Not archived · Council Link
DESIGN AND ACCESS STATEMENT
Supporting Documents
Not archived · Council Link
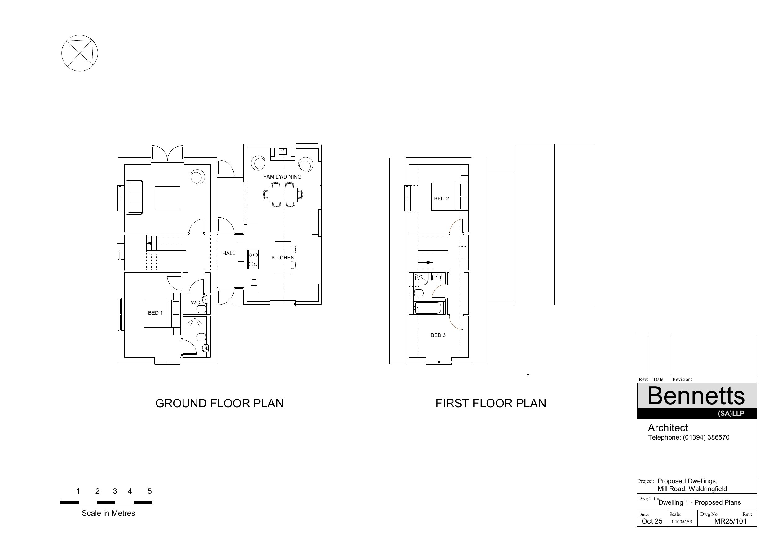
DWELLING 1 - PROPOSED ELEVATIONS
Drawing
Not archived · Council Link
DWELLING 2 - PROPOSED ELEVATIONS
Drawing
Not archived · Council Link
DWELLING 2 - PROPOSED PLAN
Drawing
Not archived · Council Link
DWELLING 3 - PROPOSED ELEVATIONS
Drawing
Not archived · Council Link
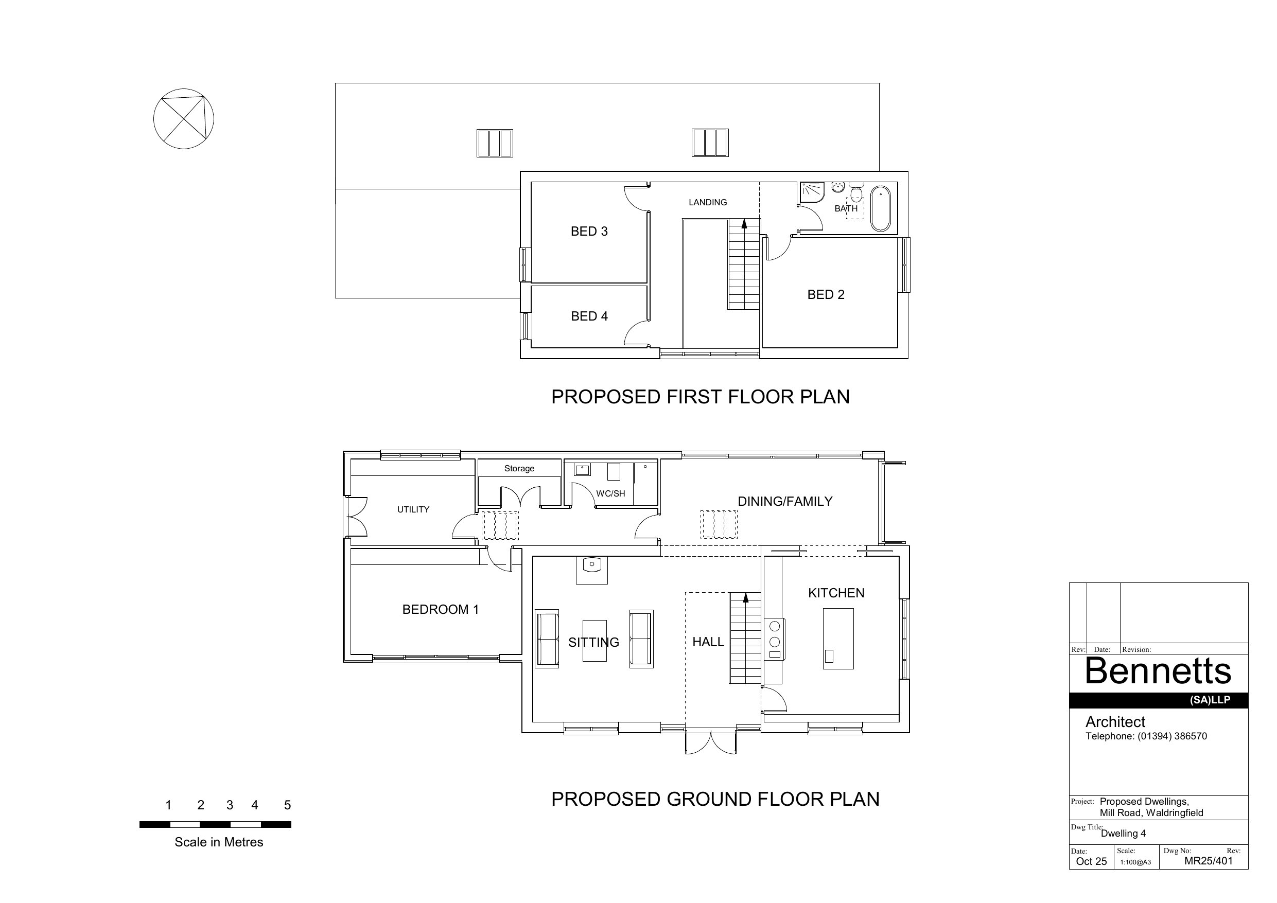
DWELLING 4 - PROPOSED ELEVATIONS
Drawing
Not archived · Council Link
DWELLING 5 - PROPOSED ELEVATIONS
Drawing
Not archived · Council Link
DWELLING 6 - PROPOSED ELEVATIONS
Drawing
Not archived · Council Link
EA SURFACE WATER FLOOD MAPPING
Supporting Documents
Not archived · Council Link
EA-FLOOD-MAP-PLANNING-MILL-ROAD
Supporting Documents
Not archived · Council Link
ECOLOGY REPORT
Supporting Documents
Not archived · Council Link
EXISTING BLOCK PLAN
Drawing
Not archived · Council Link
GARAGE TO PLOT 1
Drawing
Not archived · Council Link
GARAGE TO PLOT 3
Drawing
Not archived · Council Link
GARAGE TO PLOT 4
Drawing
Not archived · Council Link
GARAGE TO PLOT 6
Drawing
Not archived · Council Link
HIGHWAY VISIBILITY SPLAY PLAN
Drawing
Not archived · Council Link
INFO SHEET
Neighbour Notification List
Not archived · Council Link
LANDSCAPE APPRAISAL
Supporting Documents
Not archived · Council Link
PHASE 1 - DESK STUDY AND PRELIMINARY RISK ASSESSMENT PART 1 OF 2
Supporting Documents
Not archived · Council Link
PHASE 1 - DESK STUDY AND PRELIMINARY RISK ASSESSMENT PART 2 OF 2
Supporting Documents
Not archived · Council Link
PLOT 2 - PROPOSED GARAGE
Drawing
Not archived · Council Link
PROPOSED BLOCK PLAN
Drawing
Not archived · Council Link
SCHEDULE OF APPLICATION DOCUMENTS
Supporting Documents
Not archived · Council Link
Site Plan
Archived · Council Link
THE SMALL SITES METRIC
Biodiversity Net Gain
Not archived · Council Link
TREE PROTECTION PLAN (FOR OFFSITE TREES)
Drawing
Not archived · Council Link

Take Action

Make your voice heard. Authorities need to hear from people who support new homes.

✉️ Write Email in Support View on Council Portal