← Back to Enfield

Status

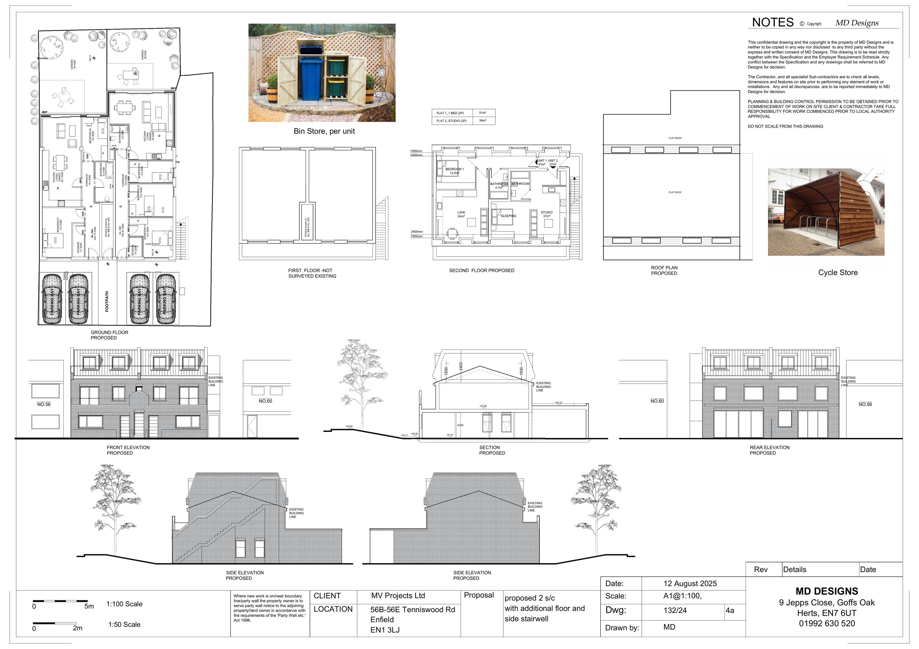
Application Withdrawn New housing
Received
05 Aug 2025
New dwellings
2

Summary

Add additional storey and side extension to form two self-contained flats.

Full Proposal

Erection of an additional storey to provide 2 self contained flats together with side extension.

Documents

Application Form - Without Personal Data
Application Form - Without Personal Data
Not archived · Council Link
Block Plan
Block Plan
Not archived · Council Link
Community Infrastructure Levy - Completed Form
Community Infrastructure Levy ? Completed Form
Not archived · Council Link
Decision Notice
Decision Notice
Not archived · Council Link
Energy Statement
Energy Statement
Not archived · Council Link
existing plans
Drawing
Not archived · Council Link
Highway Safety Impact Assessment
Supporting Information
Not archived · Council Link
OS Extract
Archived · Council Link
Drawing
Archived · Council Link
SuDS Pro forma
Sustainable Drainage
Not archived · Council Link
Surface Water and SuDS Assessment
Sustainable Drainage
Not archived · Council Link

Take Action

Make your voice heard. Authorities need to hear from people who support new homes.

✉️ Write Email in Support View on Council Portal