← Back to Fenland District Council

Status

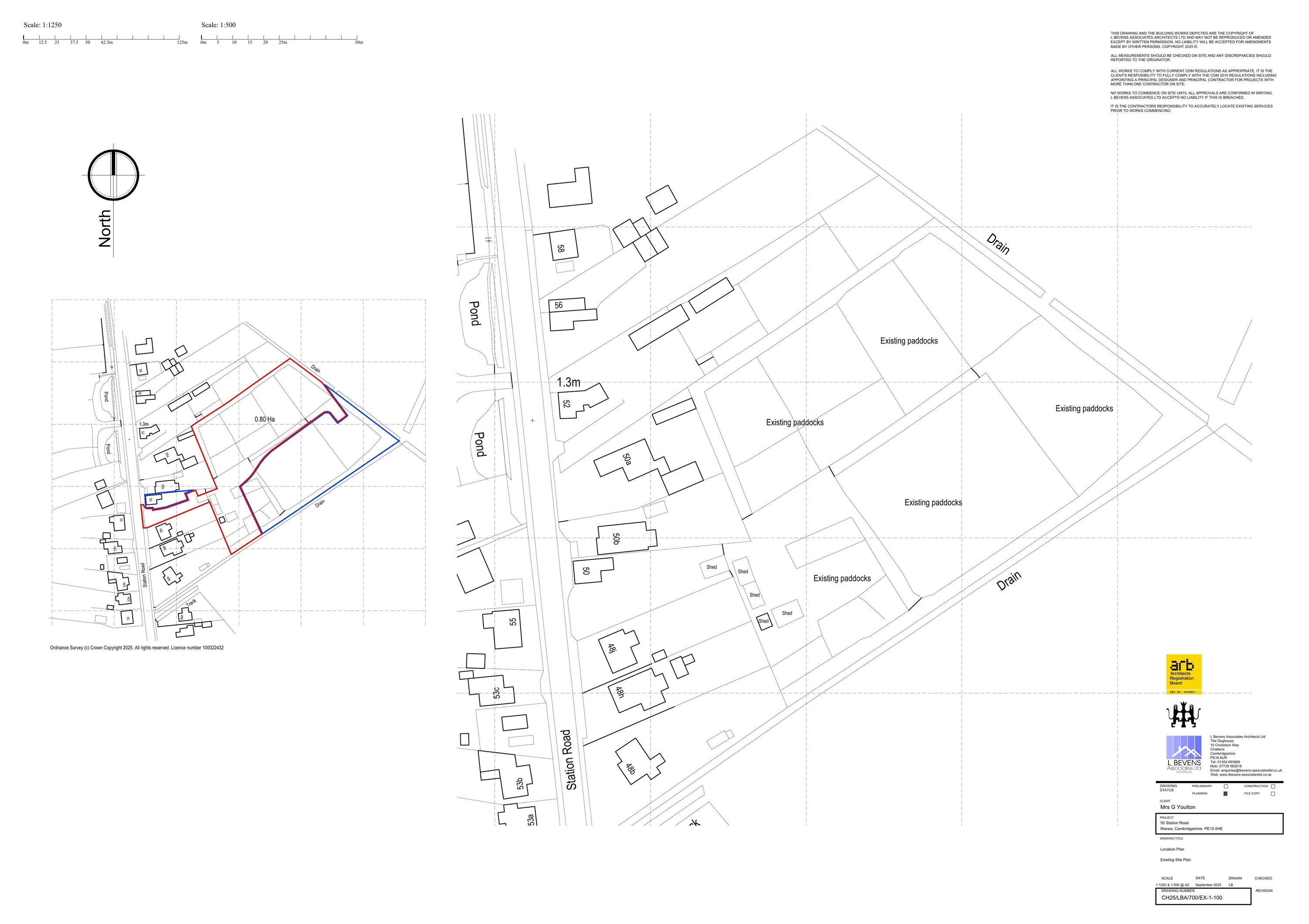
Refused New housing
Received
13 Oct 2025
New dwellings
7

Summary

Permission in principle to build up to seven dwellings.

Full Proposal

Permission in principle to erect up to 7 x dwellings

Documents

1 PINGLE WOOD ROW
Public Comment
Not archived · Council Link
10 GLEBE CLOSE MANEA
Public Comment
Not archived · Council Link
10 GLEBE CLOSE MARCH
Public Comment
Not archived · Council Link
11 PINGLE WOOD ROW MANEA
Public Comment
Not archived · Council Link
12 PINGLE WOOD ROW STATION ROAD MANEA
Public Comment
Not archived · Council Link
16A STATION ROAD MANEA MARCH
Public Comment
Not archived · Council Link
2 BANKS END RAMSEY
Public Comment
Not archived · Council Link
2 BANKS END RAMSEY HUNTINGDON
Public Comment
Not archived · Council Link
2 FROST WAY RAMSEY RAMSEY
Public Comment
Not archived · Council Link
2 PARK RD, CHANDLER'S FORD, EASTLEIGH, SO53 2EU
Neighbour Response
Not archived · Council Link
2 PARK ROAD CHANDLER'S FORD EASTLEIGH
Public Comment
Not archived · Council Link
23 STATION ROAD MANEA
Public Comment
Not archived · Council Link
23 STATION ROAD MANEA
Public Comment
Not archived · Council Link
25A NEWGATE STREET DODDINGTON
Public Comment
Not archived · Council Link
34C WESTFIELD ROAD
Neighbour Response
Not archived · Council Link
48 J STATION ROAD MANEA
Public Comment
Not archived · Council Link
48H STATION ROAD MANEA
Public Comment
Not archived · Council Link
48J STATION ROAD MANEA
Public Comment
Not archived · Council Link
48J STATION ROAD MANEA
Public Comment
Not archived · Council Link
50A STATION ROAD MANEA
Public Comment
Not archived · Council Link
50A STATION ROAD MANEA
Public Comment
Not archived · Council Link
50B STATION ROAD MANEA
Public Comment
Not archived · Council Link
52 STATION ROAD MANEA
Public Comment
Not archived · Council Link
52 STATION ROAD MANEA
Public Comment
Not archived · Council Link
53C STATION ROAD MANEA
Public Comment
Not archived · Council Link
55-57 STATION ROAD MANEA
Returned Post
Not archived · Council Link
58 BURROWMOOR ROAD MARCH
Public Comment
Not archived · Council Link
58 HERON WAY BENWICK
Public Comment
Not archived · Council Link
74-76 CHARLEMONT DRIVE MANEA
Public Comment
Not archived · Council Link
88A STATION ROAD MANEA
Public Comment
Not archived · Council Link
ADDRESS OUTSIDE OF DISTRICT
Public Comment
Not archived · Council Link
ANGLIAN WATER
Consultee Comment
Not archived · Council Link
APPLICATION FORM
Application Form
Not archived · Council Link
CONSULTANT TREE OFFICER
Consultee Comment
Not archived · Council Link
Decision Notice
Decision Notice
Not archived · Council Link
DELVE FARM CHATTERIS
Public Comment
Not archived · Council Link
ENVIRONMENT AGENCY
Consultee Comment
Not archived · Council Link
ENVIRONMENT AGENCY
Consultee Comment
Not archived · Council Link
ENVIRONMENT AGENCY
Consultee Comment
Not archived · Council Link
ENVIRONMENTAL HEALTH
Consultee Comment
Not archived · Council Link
ENVIRONMENTAL HEALTH
Consultee Comment
Not archived · Council Link
ENVIRONMENTAL SERVICES
Consultee Comment
Not archived · Council Link
ENVIRONMENTAL SERVICES
Consultee Comment
Not archived · Council Link
FDC ECOLOGIST
Consultee Comment
Not archived · Council Link
Further Consultation Sheet
Further Consultation Sheet
Not archived · Council Link
GREENACRE WISBECH ROAD MANEA
Public Comment
Not archived · Council Link
GREENACRE WISBECH ROAD MANEA
Public Comment
Not archived · Council Link
HALL FARM7C DODDINGTON ROAD CHATTERIS
Public Comment
Not archived · Council Link
HIGHWAYS
Consultee Comment
Not archived · Council Link
HIGHWAYS
Consultee Comment
Not archived · Council Link
HIGHWAYS
Consultee Comment
Not archived · Council Link
MANEA PARISH COUNCIL
Consultee Comment
Not archived · Council Link
MANEA PARISH COUNCIL
Consultee Comment
Not archived · Council Link
NATURAL ENGLAND
Consultee Comment
Not archived · Council Link
NATURAL ENGLAND
Consultee Comment
Not archived · Council Link
NATURAL ENGLAND
Consultee Comment
Not archived · Council Link
Neighbour Consultee List
Neighbour Consultee List
Not archived · Council Link
Officer Report
Officer Report
Not archived · Council Link
Reconsultation Sheet
Reconsultation Sheet
Not archived · Council Link
Reconsultation Sheet
Reconsultation Sheet
Not archived · Council Link
SEQUENTIAL AND EXCEPTION TEST INCLUDING FLOOD RISK ASSESSMENT
Flood Risk Assessment
Not archived · Council Link
SEQUENTIAL AND EXCEPTION TEST INCLUDING FLOOD RISK ASSESSMENT
CANCELLED
Not archived · Council Link
SEQUENTIAL AND EXCEPTION TEST INCLUDING FLOOD RISK ASSESSMENT
CANCELLED
Not archived · Council Link
Standard Consultee List
Standard Consultee List
Not archived · Council Link
SUPPORTING STATEMENT
Statement
Not archived · Council Link
TROTTERS LODGE, OLD DAIRY YARD WESTFIELD ROAD MANEA
Public Comment
Not archived · Council Link

Take Action

Make your voice heard. Authorities need to hear from people who support new homes.

✉️ Write Email in Support View on Council Portal