← Back to Flintshire County Council

Status

Re-consultation open New housing
Received
31 Jan 2025
New dwellings
1

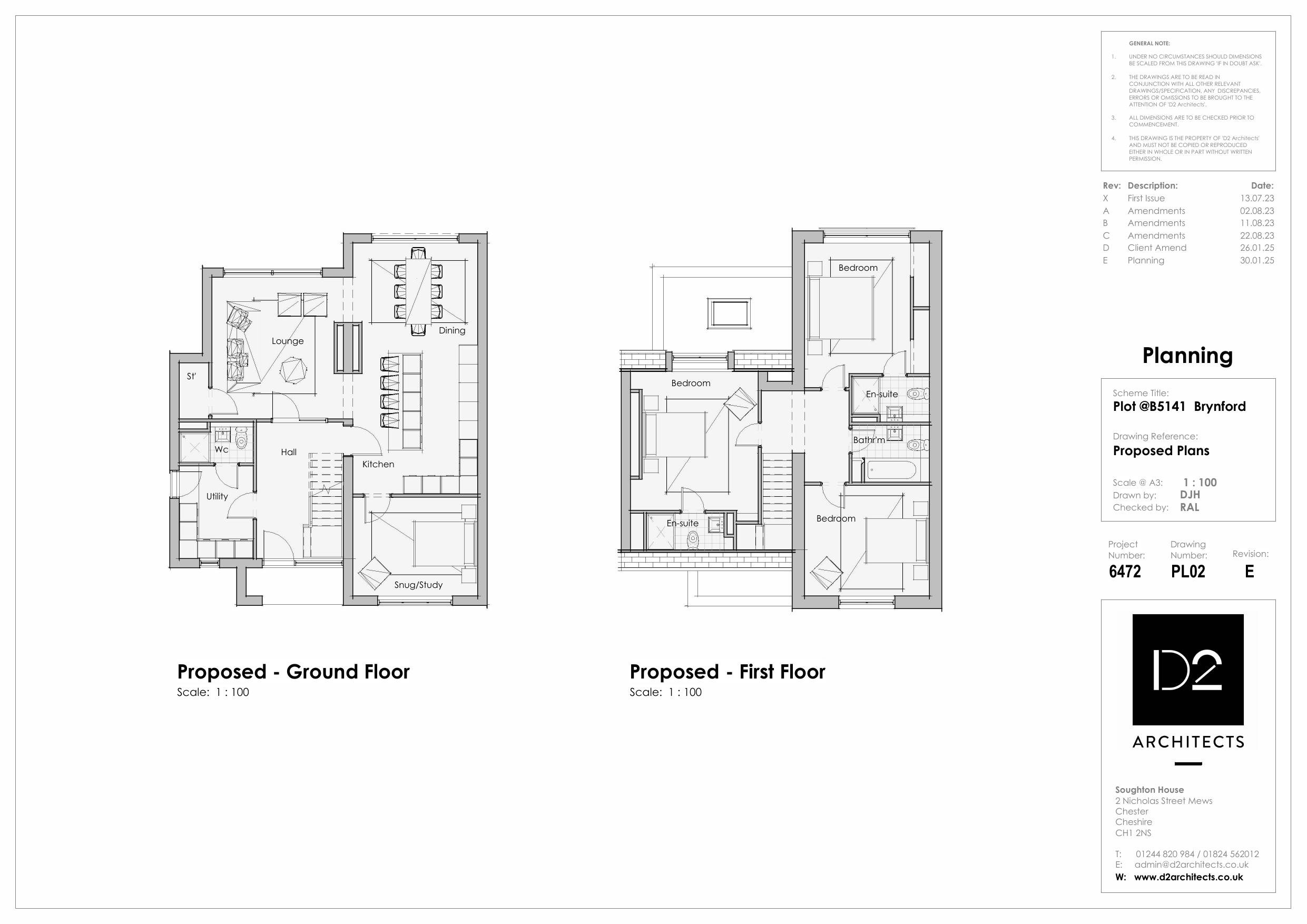
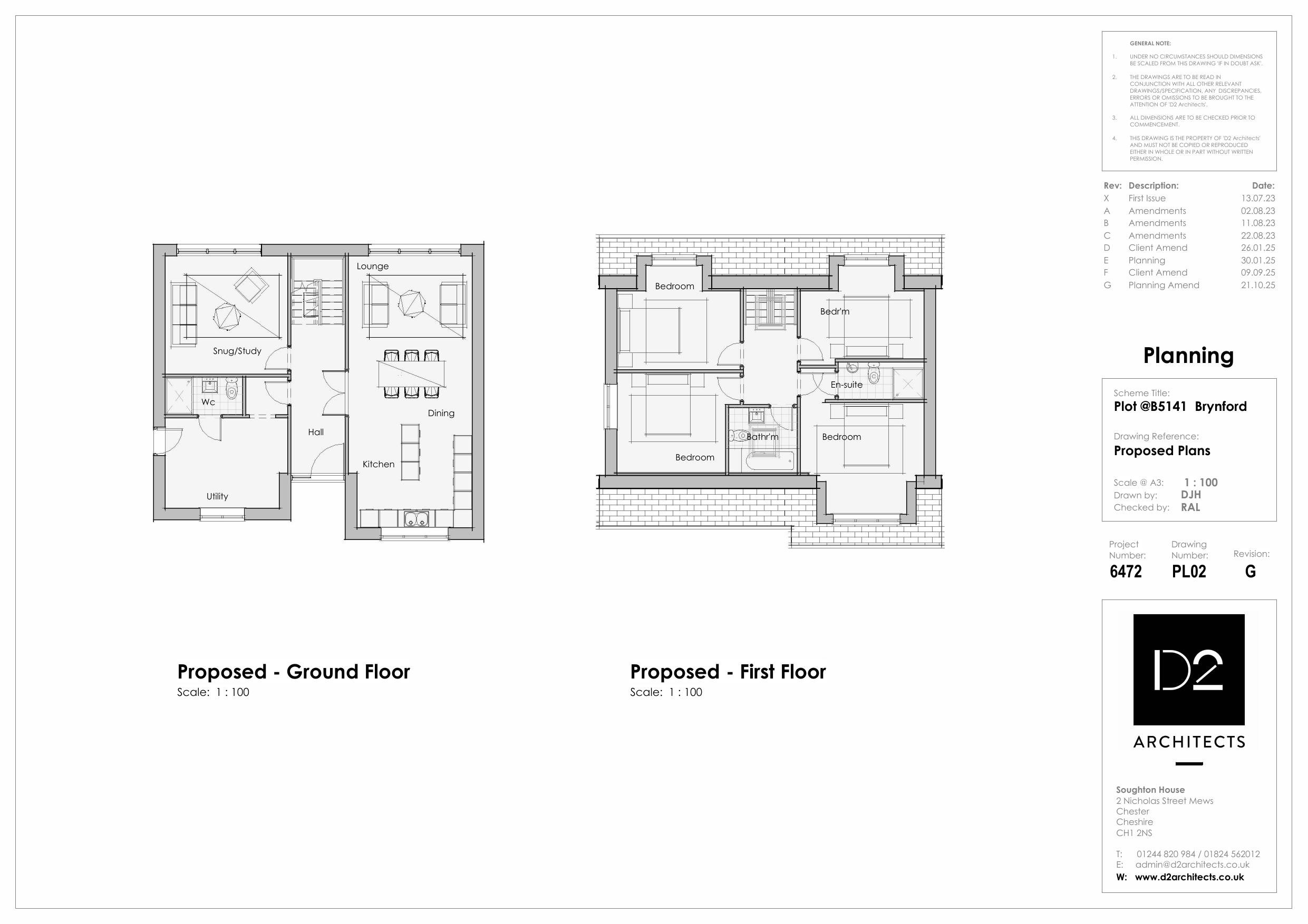
Summary

Erection of one new dwelling with retention and alteration of existing garage.

Full Proposal

Erection of one new dwelling with retention and alteration to existing garage

Documents

AMENDED 10.11.25 - Proposed Rear Elevations - Dwg PL04 - Rev H
Amended
Not archived · Council Link
AMENDED 10.11.25 - Proposed Front & Side Elevations - Dwg PL03 - Rev H
Amended
Not archived · Council Link
AMENDED 28.10.25 - Location Plan - Dwg EX01 - Rev A
Amended
Not archived · Council Link
AMENDED 28.10.25 - Proposed Street Elevations - Dwg PL05 - Rev G
Amended
Not archived · Council Link
Application Form - Redacted
Application Form
Not archived · Council Link
Phase 1 & 2 Ground Investigation - Redacted
Report
Not archived · Council Link
Planning Statement - Redacted
Statement
Not archived · Council Link
SUPERSEDED 10.11.25 - AMENDED 28.10.25 - Proposed Front & Side Elevations - Dwg PL03 - Rev G
Superseded
Not archived · Council Link
SUPERSEDED 10.11.25 - AMENDED 28.10.25 - Proposed Rear Elevations - Dwg PL04 - Rev G
Superseded
Not archived · Council Link
SUPERSEDED 28.10.25 - Location Plan
Superseded
Not archived · Council Link
SUPERSEDED 28.10.25 - Proposed Front & Side Elevations - Dwg PL03 - Rev E
Superseded
Not archived · Council Link
SUPERSEDED 28.10.25 - Proposed Rear Elevations - Dwg PL04 - Rev E
Superseded
Not archived · Council Link
SUPERSEDED 28.10.25 - Proposed Street Elevations - Dwg PL05-Rev E
Superseded
Not archived · Council Link

Take Action

Make your voice heard. Authorities need to hear from people who support new homes.

✉️ Write Email in Support View on Council Portal