← Back to Flintshire County Council

Status

Withdrawn New housing
Received
31 Jan 2025
New dwellings
2

Summary

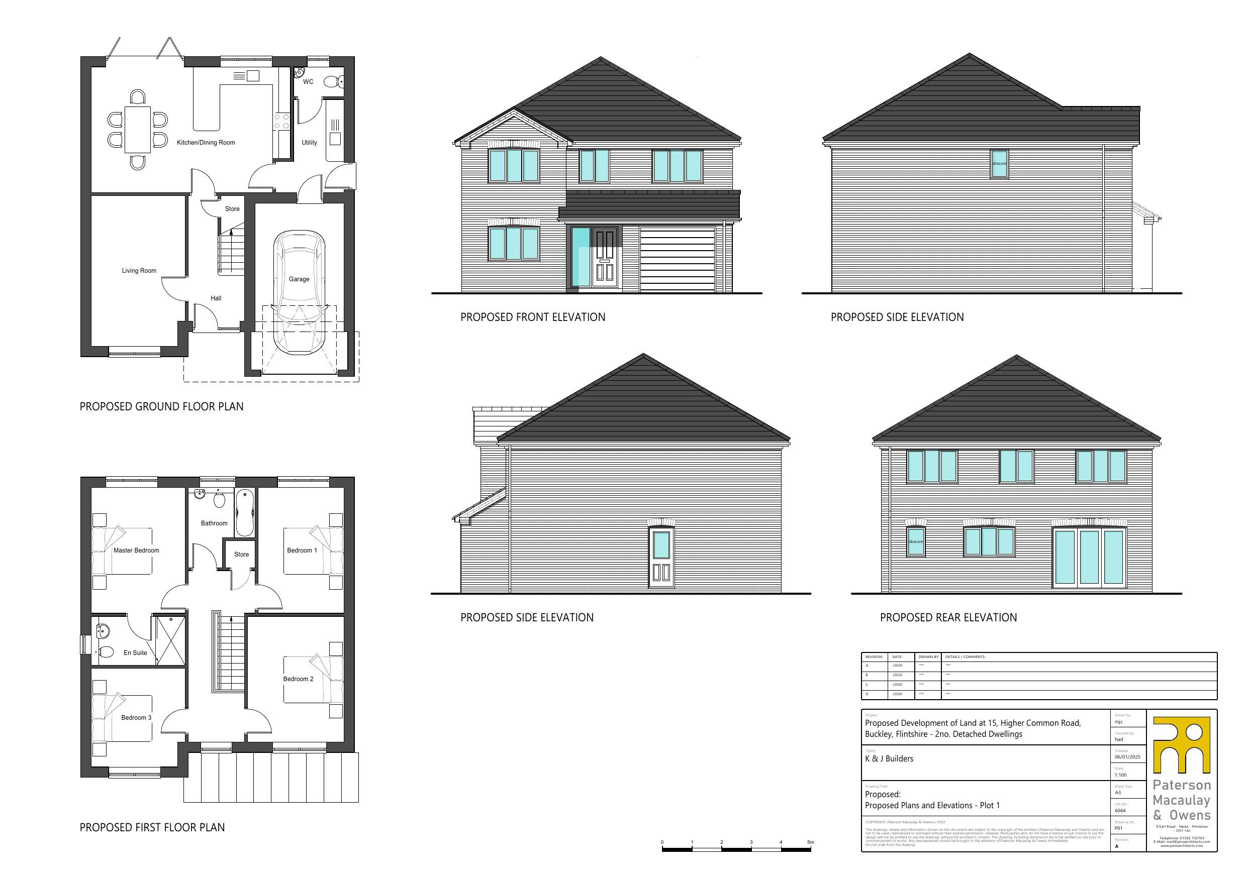
Demolition of existing dwelling and construction of two detached dwellings.

Full Proposal

Proposed demolition of existing dwelling and construction of 2no. detached dwellings

Documents

Application Form -Redacted
Application Form
Not archived · Council Link
Design & Access Statement - Redacted
Statement
Not archived · Council Link
Existing Floor Plans & Elevations - Dwg S01
Plan
Not archived · Council Link
Location & Block Plans
Location Plan
Not archived · Council Link
Proposed Block Plan - Dwg L02 -Rev A
Plan
Not archived · Council Link

Take Action

Make your voice heard. Authorities need to hear from people who support new homes.

✉️ Write Email in Support View on Council Portal