← Back to Flintshire County Council

Status

Notice of Decision Issued House extension
Received
02 Jul 2025
New dwellings
0

Summary

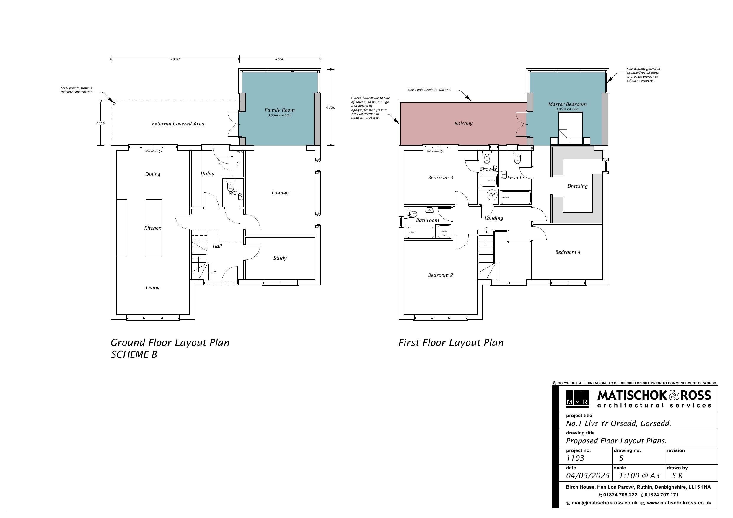
Two-storey rear extension with balcony and associated works to existing dwelling.

Full Proposal

Proposed erection of a two-storey extension to rear of the existing dwelling, incorporating a balcony area to the rear, and associated works.

Documents

ADDITIONAL INFO 13.08.25 - Remediation Strategy Statement - Redacted
Additional Information
Not archived · Council Link
Application Form - Redacted
Application Form
Not archived · Council Link
Decision Notice
Decision
Not archived · Council Link
Existing Elevations - Dwg 3
Elevation
Not archived · Council Link
Existing Floor Plans - Dwg 2
Plan
Not archived · Council Link
Green Infrastructure Statement
Statement
Not archived · Council Link
Location Plan
Location Plan
Not archived · Council Link
Officers Report
Decision
Not archived · Council Link
Proposed Elevations - Dwg 6
Elevation
Not archived · Council Link

Take Action

Make your voice heard. Authorities need to hear from people who support new homes.

✉️ Write Email in Support View on Council Portal