← Back to Flintshire County Council

Status

Notice of Decision Issued House extension
Received
05 Sep 2025
New dwellings
0

Full Proposal

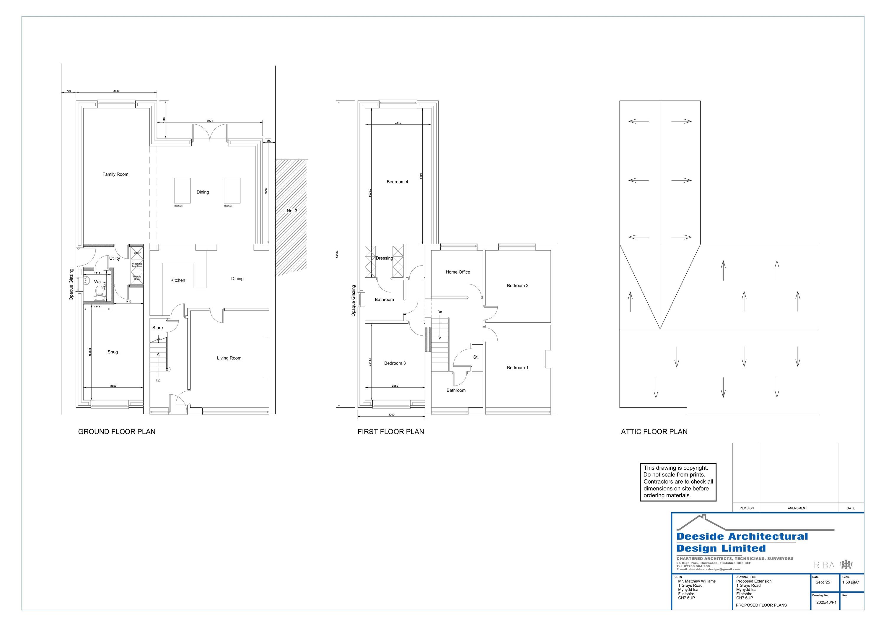
Demolition of a small garage and to erect a two and one storey, side and rear extension to provide modern open-plan living accommodation with the additions of one extra bedroom, home office, snug, Wc, utility room and additional bathroom.

Documents

AMENDED 21.10.25 - Proposed Elevations - Dwg 2025/40/P2 - Rev A
Amended
Not archived · Council Link
AMENDED 22.10.25 - Proposed Block Plan - Dwg 2025/40/PBP -Rev C
Amended
Not archived · Council Link
Application Form - Redacted
Application Form
Not archived · Council Link
Decision Notice
Decision
Not archived · Council Link
Existing Block Plan - Dwg 2025/40/EBP
Plan
Not archived · Council Link
Existing Floor Plans & Elevations - Dwg 2025/40/E
Plan
Not archived · Council Link
Green Infrastructure Statement
Statement
Not archived · Council Link
Location Plan - Dwg 2025/40/SLP
Location Plan
Not archived · Council Link
Officers Report
Decision
Not archived · Council Link
Planning Statement
Statement
Not archived · Council Link
SUPERSEDED 17.08.25 Proposed Block Plan - Dwg 2025/40/PBP
Superseded
Not archived · Council Link
SUPERSEDED 21.10.25 - Proposed Elevations - Dwg 2025/40/P2
Superseded
Not archived · Council Link
SUPERSEDED 22.10.25 - AMENDED 30.09.25 -Proposed Block Plan - Dwg 2025/40/PBP -Rev B
Superseded
Not archived · Council Link
SUPERSEDED 30.09.25 -AMENDED 17.09.25 - Proposed Block Plan - Dwg 2025/40/PBP -Rev A
Superseded
Not archived · Council Link

Take Action

Make your voice heard. Authorities need to hear from people who support new homes.

✉️ Write Email in Support View on Council Portal