← Back to Flintshire County Council

Status

Closed New housing
Received
26 Sep 2025
New dwellings
0

Full Proposal

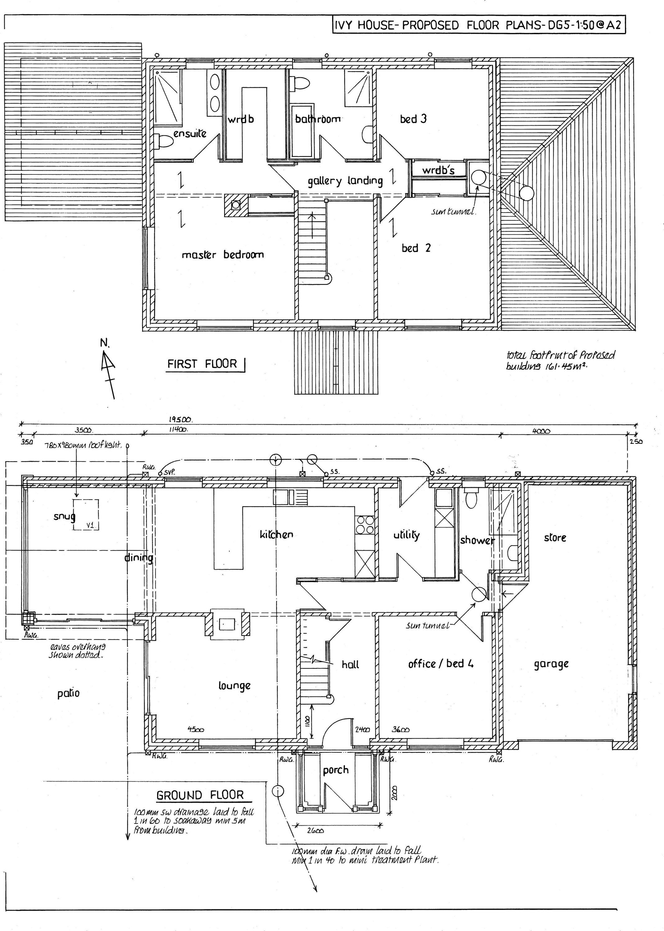
Construction of replacement dwelling and associated works in lieu of existing dwelling and ancillary structures

Documents

ADD INFO 13.11.25 - Contaminated Land Assessment
Additional Information
Not archived · Council Link
ADD INFO 13.11.25 - Protected Species Survey - Redacted
Additional Information
Not archived · Council Link
AMENDED 13.11.25 - Green Infrastructure Statement
Amended
Not archived · Council Link
AMENDED 13.11.25 - Landscaping Schedule
Amended
Not archived · Council Link
Application Form - Redacted
Application Form
Not archived · Council Link
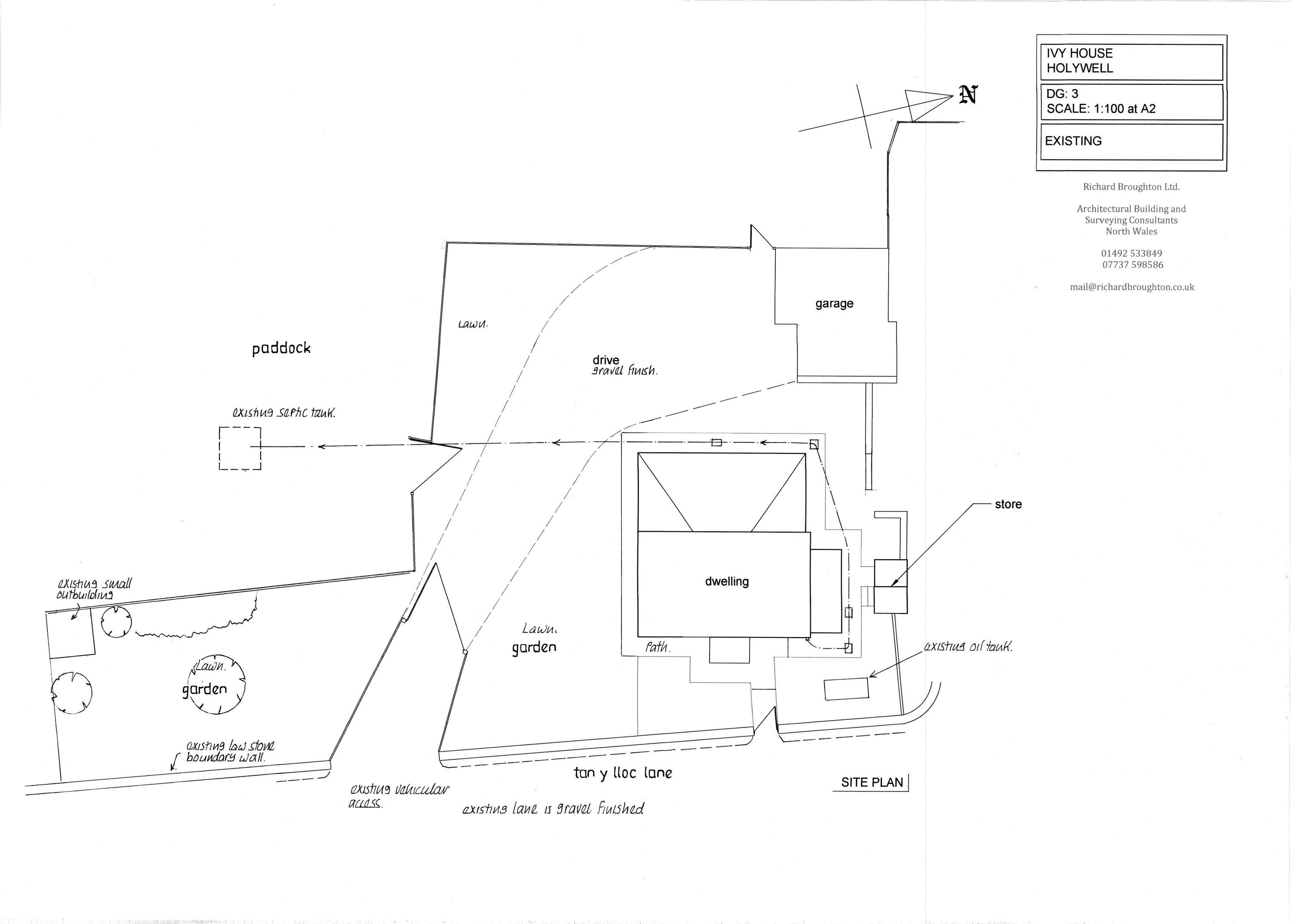
Existing Block Plan - Dwg 7
Plan
Not archived · Council Link
Existing First Floor Plan & Section A-A - Dwg 2
Plan
Not archived · Council Link
Existing Ground Floor Plan - Dwg 1
Report
Not archived · Council Link
Justification Statement
Statement
Not archived · Council Link
Location Plan
Location Plan
Not archived · Council Link
Proposed Block Plan - Dwg 8
Plan
Not archived · Council Link
Proposed Elevations - Dwg 4
Elevation
Not archived · Council Link
Structural Survey - Redacted
Survey
Not archived · Council Link
SUPERSEDED 13.11.25 - Green Infrastructure Statement
Superseded
Not archived · Council Link
SUPERSEDED 13.11.25 - Landscaping Schedule
Superseded
Not archived · Council Link
Wastewater Treatment Details
Paperwork
Not archived · Council Link

Take Action

Make your voice heard. Authorities need to hear from people who support new homes.

✉️ Write Email in Support View on Council Portal