← Back to Flintshire County Council

Status

Consultation Period Open Industrial
Received
09 Dec 2025
New dwellings
0

Summary

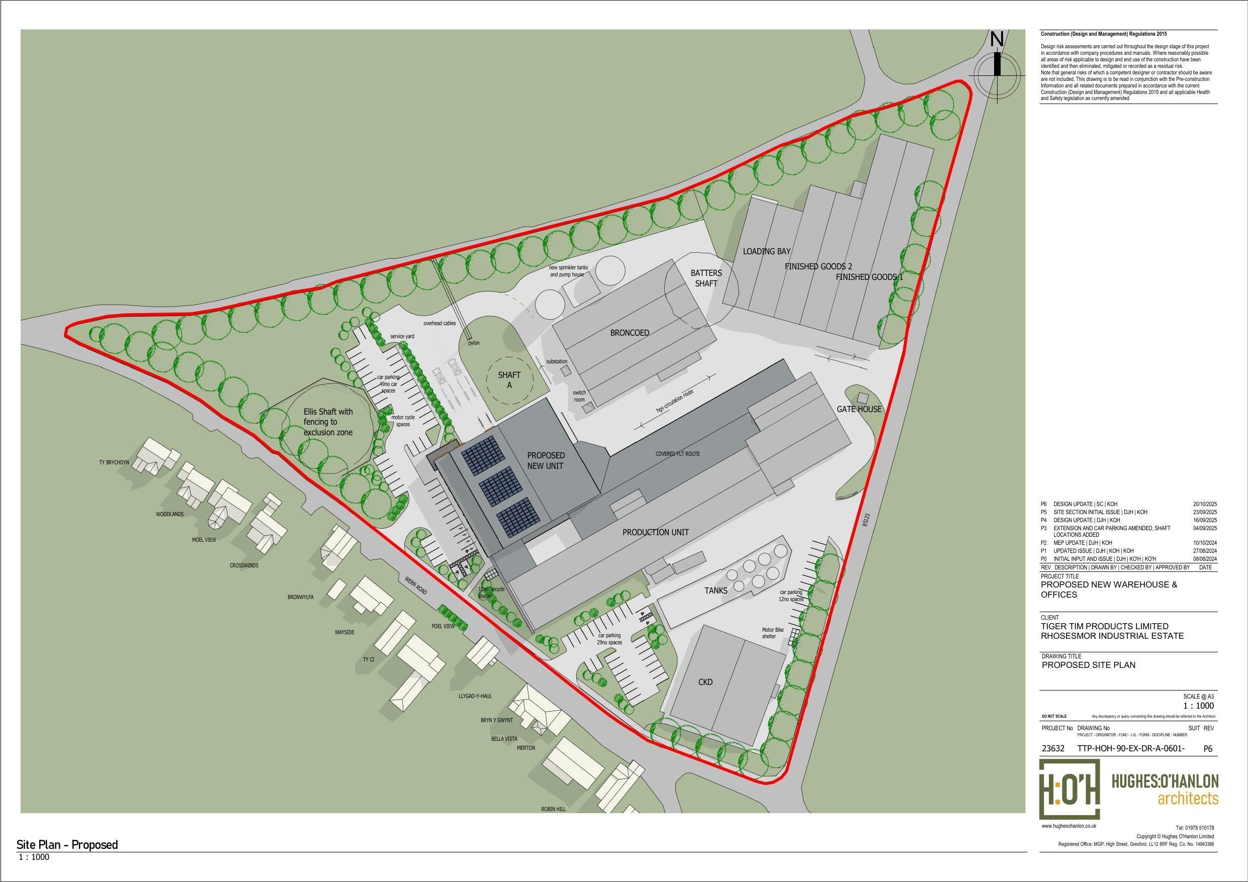
Demolish warehouse/office and erect new storage facility with ancillary offices and pump house.

Full Proposal

Full planning permission for the Demolition of existing warehouse and office building and erection of new storage facility with ancillary office space, reconfiguration/provision of parking, landscaping, alterations to internal road layout, installation of new pump house & sprinkler tanks and capping of mine shaft (retrospective element).

Documents

Application Form - Redacted
Application Form
Not archived · Council Link
Arboricultural Assessment
Report
Not archived · Council Link
Drainage Strategy Report - Redacted
Report
Not archived · Council Link
Ecological Appraisal - Redacted
Report
Not archived · Council Link
Existing Elevations - Dwg TTP-HOH-03-XX-DR-A-0501 Rev P01
Elevation
Not archived · Council Link
Flood Consequence Assessment
Report
Not archived · Council Link
Green Infrastructure Statement - Redacted
Report
Not archived · Council Link
Landscape & Visual Appraisal - Redacted
Report
Not archived · Council Link
Location Plan
Location Plan
Not archived · Council Link
Noise Impact Assessment - Redacted
Report
Not archived · Council Link
Odour Assessment - Redacted
Report
Not archived · Council Link
PAC Report - Redacted
Report
Not archived · Council Link
Phase 1 Desk Study - Redacted
Report
Not archived · Council Link
Planning, Design & Access Statement - Redacted
Report
Not archived · Council Link
Proposed 3D East View - Dwg TTP-HOH-06-XX-DR-A-0607 Rev P6
Plan
Not archived · Council Link
Proposed 3D West View - Dwg TTP-HOH-06-XX-DR-A-0606 Rev P5
Plan
Not archived · Council Link
Proposed Elevations Visualisation - Dwg TTP-HOH-06-XX-DR-A-0608 Rev P6
Visualisation
Not archived · Council Link
Proposed External Works - Dwg 5249-CAU-XX-XX-DR-C-1500 Rev P04
Plan
Not archived · Council Link
Proposed First Floor Plan - Dwg TTP-HOH-03-01-DR-A-0602 Rev P5
Plan
Not archived · Council Link
Proposed Ground Floor Plan - Dwg TTP-HOH-03-00-DR-A-0601 Rev P5
Plan
Not archived · Council Link
Proposed North East & South East Elevations - Dwg TTP-HOH-03-XX-DR-A-0605 Rev P6
Elevation
Not archived · Council Link
Proposed North West & South West Elevations - Dwg TTP-HOH-03-XX-DR-A-0604 Rev P6
Elevation
Not archived · Council Link
Proposed Shaft Cap Section & Installation - Dwg GS 02692_102_C1 Rev C1
Plan
Not archived · Council Link
Proposed Unnamed Shaft Cap - Dwg GS 02692_101_C1 Rev C1
Plan
Not archived · Council Link
Proposed Visualisation - Dwg TTP-HOH-XX-XX-SK-001-P0
Visualisation
Not archived · Council Link
Transport Assessment
Statement
Not archived · Council Link

Take Action

Make your voice heard. Authorities need to hear from people who support new homes.

✉️ Write Email in Support View on Council Portal