← Back to Flintshire County Council

Status

Under Consideration House extension
Received
09 Dec 2025
New dwellings
0

Full Proposal

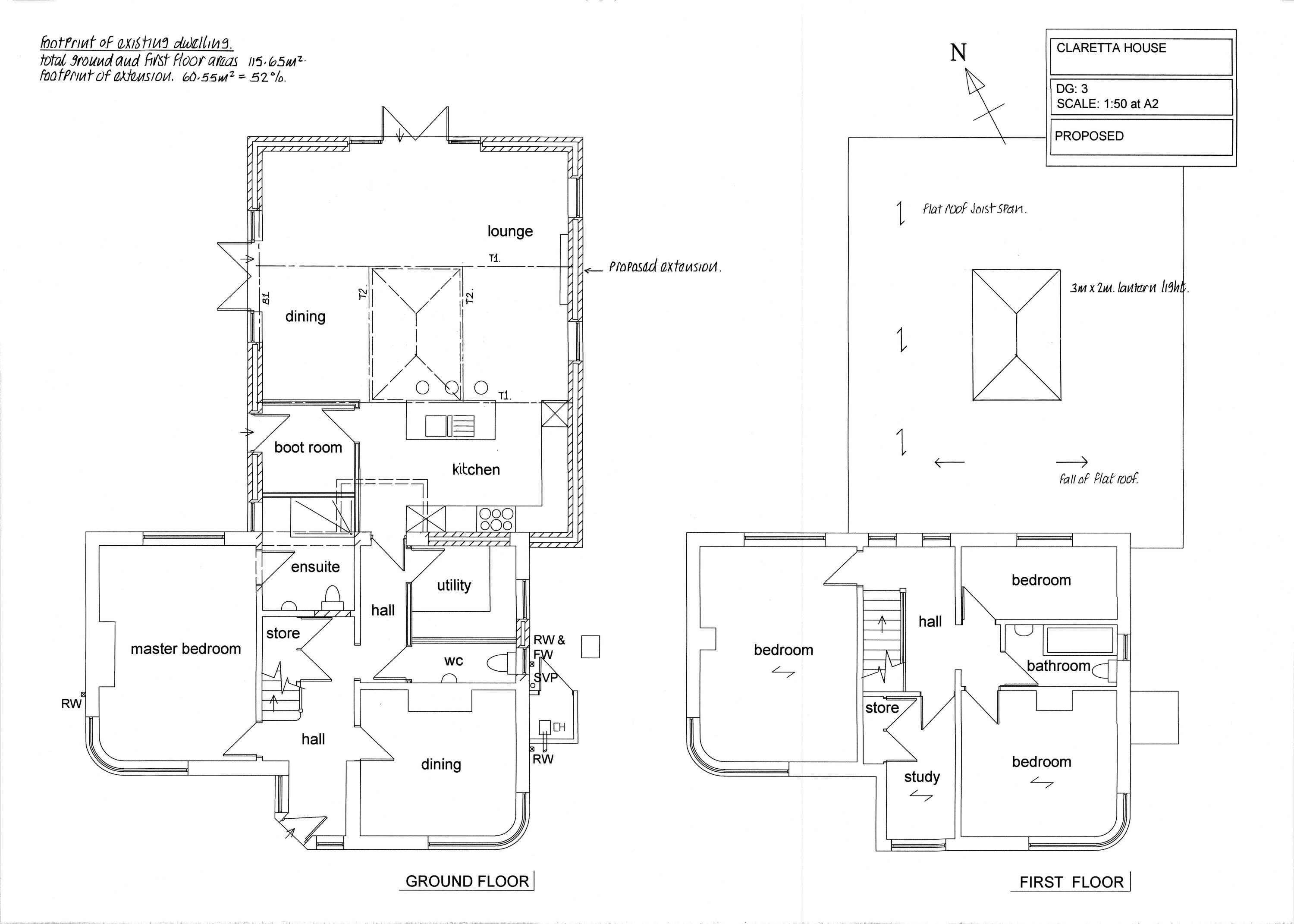
Single storey extension to rear of existing dwelling

Documents

AMENDED 24.12.25 - Proposed Elevations - Dwg 4 - Rev A
Amended
Not archived · Council Link
Application Form - Redacted
Application Form
Not archived · Council Link
Existing Elevations - Dwg 2
Elevation
Not archived · Council Link
Existing Floor Plans - Dwg 1
Plan
Not archived · Council Link
Green Infrastructure Statement
Statement
Not archived · Council Link
Landscaping Scheme
Report
Not archived · Council Link
Location Plan
Location Plan
Not archived · Council Link
SUPERSEDED 24.12.25 - Proposed Elevations - Dwg 4
Superseded
Not archived · Council Link

Take Action

Make your voice heard. Authorities need to hear from people who support new homes.

✉️ Write Email in Support View on Council Portal