← Back to Folkestone & Hythe District Council

Status

Unknown status Other
Received
n/a
New dwellings
0

Summary

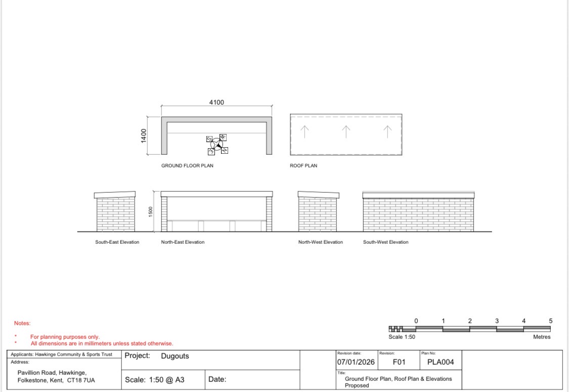
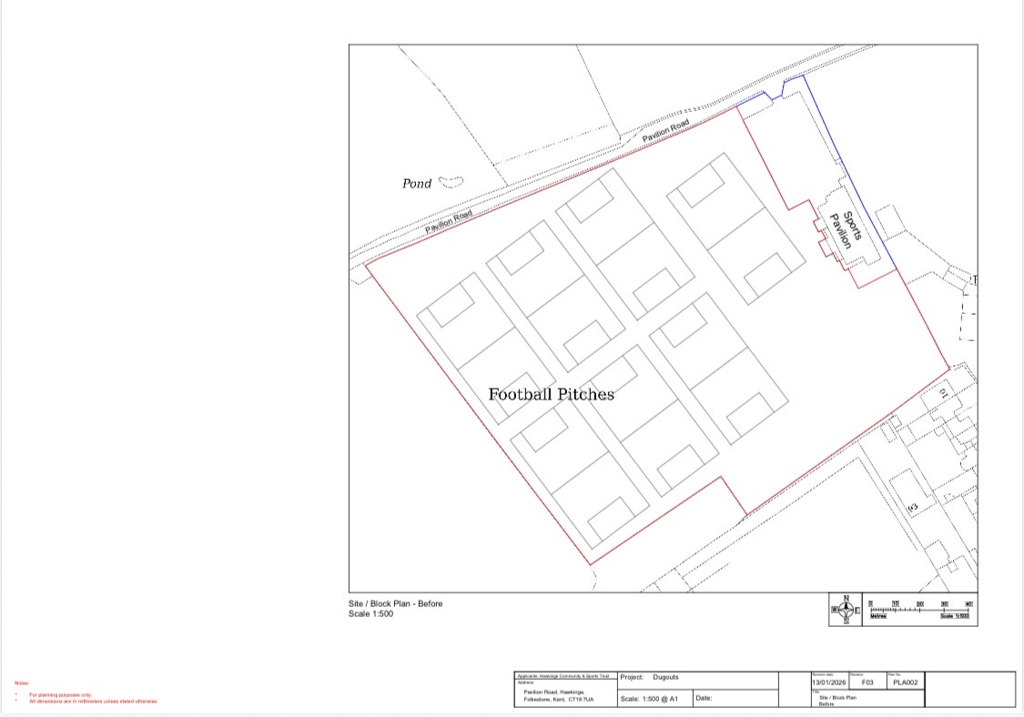
Erection of two sports dugouts.

Full Proposal

Reference 26/0033/FH Site address THE PAVILION, PAVILION ROAD, HAWKINGE, FOLKESTONE, CT18 7UA Proposal Erection of two dugouts Date valid 16/1/2026 Status Under Consultation Decision Consultation deadline date 16/2/2026

Documents

Download (JPEG, 101.54KB)
Uncategorized
Not archived · Council Link
Download (JPEG, 127.74KB)
Uncategorized
Not archived · Council Link
Download (JPEG, 135.47KB)
Uncategorized
Not archived · Council Link
Download (JPEG, 135.47KB)
Uncategorized
Not archived · Council Link
Download (JPEG, 194.51KB)
Uncategorized
Not archived · Council Link
Download (JPEG, 226.43KB)
Uncategorized
Not archived · Council Link
Download (JPEG, 492.36KB)
Uncategorized
Not archived · Council Link
Download (JPEG, 76.85KB)
Uncategorized
Not archived · Council Link
Download (PDF, 24.91KB)
Uncategorized
Not archived · Council Link
Download (PDF, 371.18KB)
Uncategorized
Not archived · Council Link
Download (PDF, 39.65KB)
Uncategorized
Not archived · Council Link
Download (PDF, 434.38KB)
Uncategorized
Not archived · Council Link

Take Action

Make your voice heard. Authorities need to hear from people who support new homes.

✉️ Write Email in Support View on Council Portal