← Back to Forest of Dean District Council

Status

Pending Consideration New housing
Received
24 days ago
New dwellings
4

Full Proposal

Erection of 4no. infill dwellings, including replacement vicarage, with associated access and landscaping

Documents

ACCESS APPRAISAL/TRANSPORT ASSESSMENT
Report
Not archived · Council Link
APPLICATION FORM
Application Form
Not archived · Council Link
BIODIVERSITY NET GAIN ASSESSMENT
BNG Report
Not archived · Council Link
BIODIVERSITY NET GAIN STATEMENT FORM
BNG Statement
Not archived · Council Link
BIODIVERSITY NET GAIN STATUTORY METRIC
BNG Metric
Not archived · Council Link
COVERING LETTER
Agent letter
Not archived · Council Link
DC8
DC8
Not archived · Council Link
DESIGN AND ACCESS STATEMENT
Report
Not archived · Council Link
DUSK EMERGENCE SURVEY FOR BATS
Report
Not archived · Council Link
ECOLOGICAL IMPACT ASSESSMENT
Report
Not archived · Council Link
EXISTING ELEVATIONS
Drawing
Not archived · Council Link
EXISTING FLOOR PLANS
Drawing
Not archived · Council Link
EXISTING GARAGE ELEVATIONS
Drawing
Not archived · Council Link
Drawing
Archived · Council Link
LOCATION PLANS
Drawing
Not archived · Council Link
PLANNING STATEMENT
Report
Not archived · Council Link
PRELIMINARY ECOLOGICAL APPRAISAL
Report
Not archived · Council Link
PROPOSED DWELLINGS - PLOT 1 - PROPOSED ELEVATIONS
Drawing
Not archived · Council Link
PROPOSED DWELLINGS - PLOT 1 - PROPOSED GARAGE, ELEVATIONS & FLOOR PLANS
Drawing
Not archived · Council Link
PROPOSED DWELLINGS - PLOT 2 - PROPOSED ELEVATIONS
Drawing
Not archived · Council Link
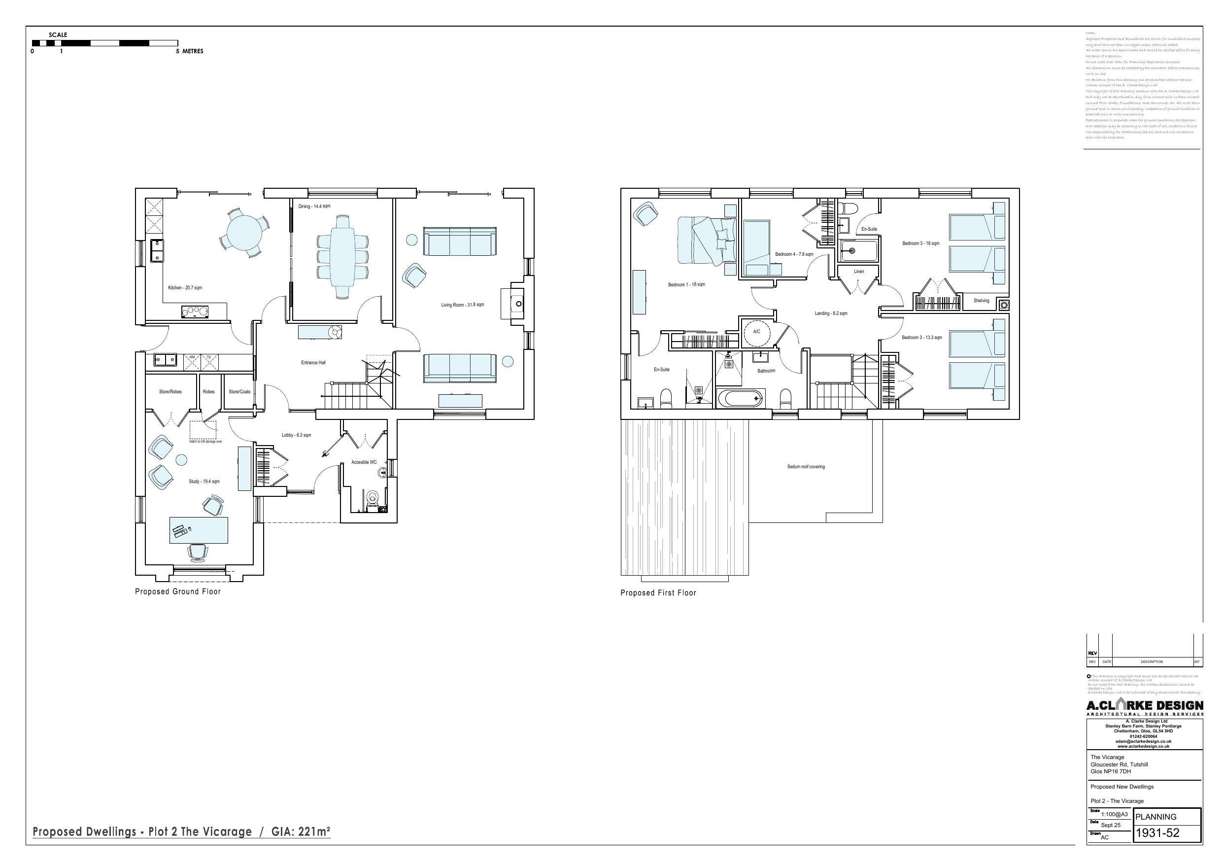
PROPOSED DWELLINGS - PLOT 2 THE VICARAGE - PROPOSED GARAGE PLOT & ELEVATIONS
Drawing
Not archived · Council Link
PROPOSED DWELLINGS - PLOT 3 - PROPOSED ELEVATIONS
Drawing
Not archived · Council Link
PROPOSED DWELLINGS - PLOT 3 - PROPOSED GARAGE, ELEVATIONS & FLOOR PLANS
Drawing
Not archived · Council Link
PROPOSED DWELLINGS - PLOT 4 - PROPOSED ELEVATIONS
Drawing
Not archived · Council Link
PROPOSED DWELLINGS - PLOT 4 - PROPOSED GARAGE, ELEVATIONS & FLOOR PLANS
Drawing
Not archived · Council Link
PROPOSED DWELLINGS - SITE SECTION BB
Drawing
Not archived · Council Link
PROPOSED DWELLNGS - SITE SECTION AA
Drawing
Not archived · Council Link
Drawing
Archived · Council Link
PROPOSED STREET SCENE
Drawing
Not archived · Council Link
PROPOSED VISIBILITY SPLAY
Drawing
Not archived · Council Link
TREE CONSTRAINTS, IMPACT ASSESSMENT & TREE PROTECTION METHOD STATEMENT
Report
Not archived · Council Link

Take Action

Make your voice heard. Authorities need to hear from people who support new homes.

✉️ Write Email in Support View on Council Portal