← Back to Forest of Dean District Council

Status

Pending Consideration New housing
Received
12 Sep 2024
New dwellings
5

Full Proposal

Erection of 5 no. dwellings with associated parking and landscaping, partial demolition of rear extension to main building, construction of lifeboat tug storage shed and associated works

Documents

APPLICATION FORM
Application Form
Not archived · Council Link
BAT SURVEY REPORT
Report
Not archived · Council Link
BIODIVERSITY NET GAIN STATEMENT FORM
Report
Not archived · Council Link
BNG Metric
BNG Metric
Not archived · Council Link
BNG Metric
BNG Metric
Not archived · Council Link
BNG Metric
BNG Metric
Not archived · Council Link
BNG MIXED SCRUB CONDITION SHEET
Additional information
Not archived · Council Link
BNG URBAN HABITAT TYPE CONDITION SHEET
Additional information
Not archived · Council Link
BNG URBAN TREE CONDITION SHEET
Additional information
Not archived · Council Link
CONSERVATION OFFICER
Consultee Comment
Not archived · Council Link
CONSERVATION OFFICER
Consultee Comment
Not archived · Council Link
DC8
DC8
Not archived · Council Link
ECOLOGICAL IMPACT ASSESSMENT
Additional information
Not archived · Council Link
ECOLOGICAL IMPACT ASSESSMENT
Additional information
Not archived · Council Link
ECOLOGICAL IMPACT ASSESSMENT AND BNG
Report
Not archived · Council Link
ECOLOGY
Consultee Comment
Not archived · Council Link
ECOLOGY - FURTHER COMMENTS
Consultee Comment
Not archived · Council Link
ECOLOGY - FURTHER COMMENTS
Consultee Comment
Not archived · Council Link
ECOLOGY TO OFFICER ATTACHING FURTHER COMMENTS
Correspondence
Not archived · Council Link
EHO - AIR QUALITY
Consultee Comment
Not archived · Council Link
EHO - NOISE & AMENITIES
Consultee Comment
Not archived · Council Link
EHO - TECH POLLUTION SERVICES/NOISE
Consultee Comment
Not archived · Council Link
EHO - TECH POLLUTION SERVICES/NOISE
Consultee Comment
Not archived · Council Link
ENVIRONMENT AGENCY
Consultee Comment
Not archived · Council Link
ENVIRONMENT AGENCY
Consultee Comment
Not archived · Council Link
ENVIRONMENTAL HEALTH
Consultee Comment
Not archived · Council Link
Drawing
Archived · Council Link
FLOOD RISK ASSESSMENT & SURFACE WATER DRAINAGE STRATEGY
Report
Not archived · Council Link
FLOOD RISK MANAGEMENT OFFICER
Consultee Comment
Not archived · Council Link
GCC HIGHWAYS
Consultee Comment
Not archived · Council Link
GLOUCESTER HARBOUR TRUSTEES
Consultee Comment
Not archived · Council Link
HERITAGE STATEMENT
Report
Not archived · Council Link
HISTORIC ENGLAND
Consultee Comment
Not archived · Council Link
LANDSCAPING/PLANTING PLAN
Drawing
Not archived · Council Link
LOCATION PLAN
Drawing
Not archived · Council Link
MAIN BUILDING - EXISTING ELEVATIONS
Drawing
Not archived · Council Link
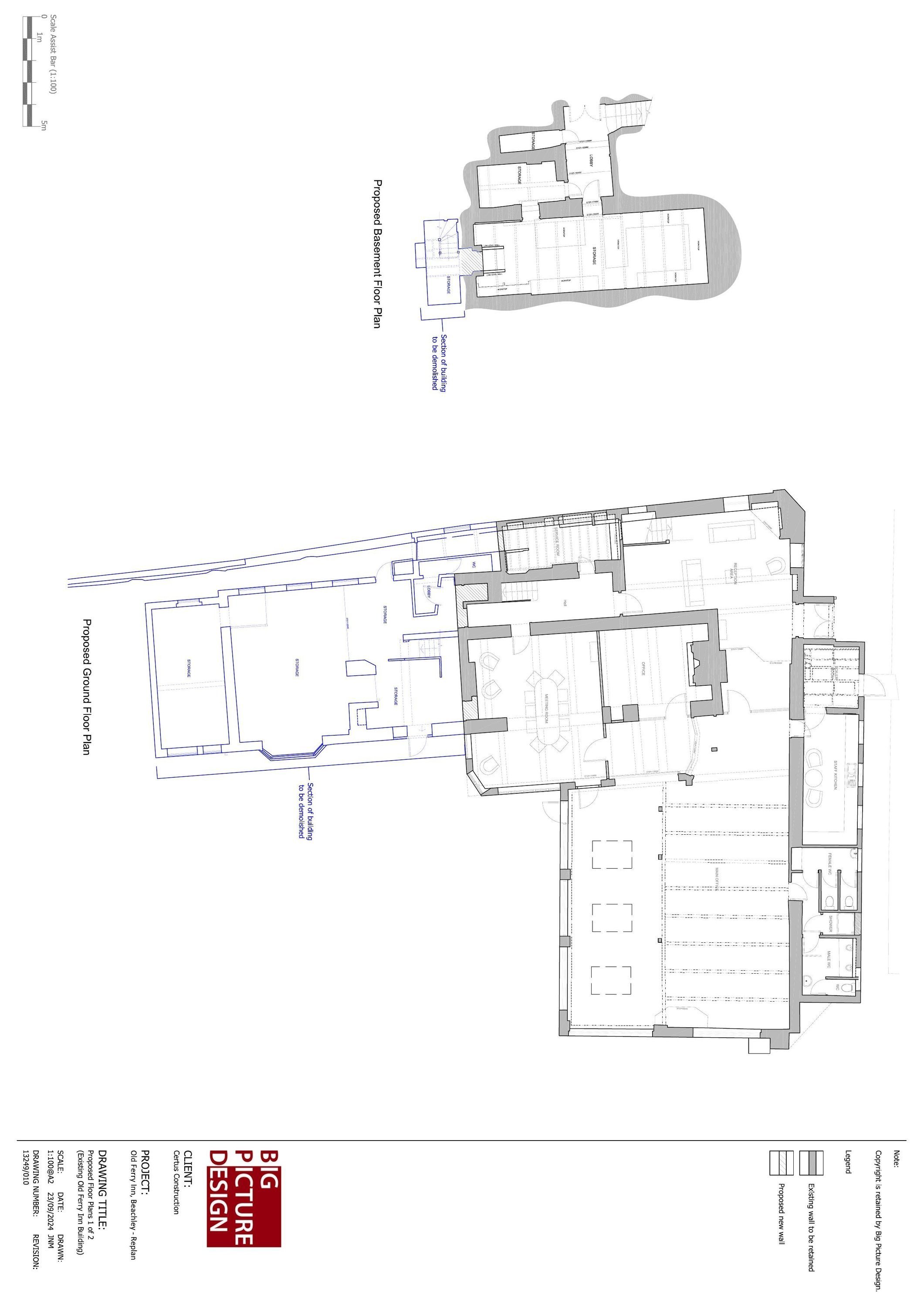
MAIN BUILDING - EXISTING FLOOR PLAN 1 OF 2
Drawing
Not archived · Council Link
MAIN BUILDING - EXISTING FLOOR PLANS 2 OF 2
Drawing
Not archived · Council Link
MAIN DWELLING - PROPOSED FLOOR PLAN 2 OF 2
Drawing
Not archived · Council Link
MAIN DWELLING - PROPOSED SOUTH ELEVATION
Drawing
Not archived · Council Link
NATURAL ENGLAND
Consultee Comment
Not archived · Council Link
NOISE IMPACT ASSESSMENT
Report
Not archived · Council Link
PARISH COUNCIL
Consultee Comment
Not archived · Council Link
PLANNING STATEMENT
Report
Not archived · Council Link
PROPOSED ELEVATIONS
Drawing
Not archived · Council Link
Drawing
Archived · Council Link
RE: ECOLOGIST RESPONSE TO SUSTAINABILITY TEAM
Additional information
Not archived · Council Link
RE: ECOLOGIST RESPONSE TO SUSTAINABILITY TEAM AND AGREEMENT TO CONDITION
Correspondence
Not archived · Council Link
RE: NOISE
Additional information
Not archived · Council Link
RE: PARISH REQUESTING EXTENSION OF TIME
Correspondence
Not archived · Council Link
RESPONSE TO BIODIVERSITY OFFICER COMMENTS
Additional information
Not archived · Council Link
REVISED EIA
Report
Not archived · Council Link
SHADOW HRA (BATS)
Additional information
Not archived · Council Link
SHADOW HRA (SEVERN ESTUARY)
Additional information
Not archived · Council Link
Site Notice
Site Notice
Not archived · Council Link
SUSTAINABILITY - ECOLOGY
Consultee Comment
Not archived · Council Link
SUSTAINABILITY - ECOLOGY
Consultee Comment
Not archived · Council Link
SUSTAINABILITY - LIKELY SIGNIFICANT EFFECTS
Consultee Comment
Not archived · Council Link
TECHNICAL NOTE
Report
Not archived · Council Link
TREE & PLANTING SCHEDULES
Report
Not archived · Council Link
TREE OFFICER
Consultee Comment
Not archived · Council Link
TUG BOAT BUILDING - PROPOSED ELEVATIONS & FLOOR PLANS
Drawing
Not archived · Council Link
WELSH WATER
Consultee Comment
Not archived · Council Link

Take Action

Make your voice heard. Authorities need to hear from people who support new homes.

✉️ Write Email in Support View on Council Portal