← Back to Forest of Dean District Council

Status

Pending Consideration New housing
Received
02 Oct 2025
New dwellings
8

Full Proposal

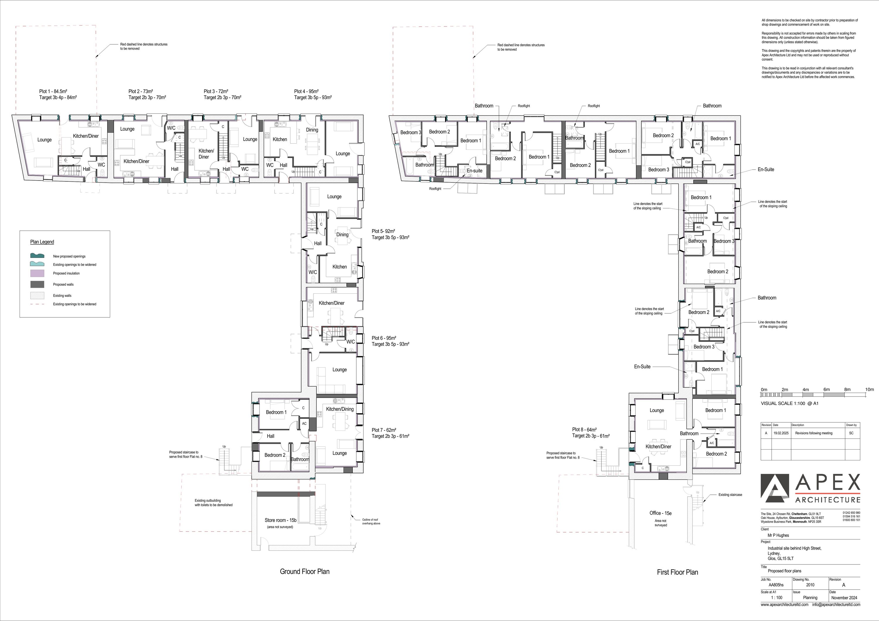
Conversion and alteration of stone building to create x4, 2 bed dwellings and x4, 3 bed dwellings with associated works. Demolition of existing commercial buildings.

Documents

AGENT AGREEMENT TO REVISED ADDRESS AND CONTAMINATION CONDITIONS?
Correspondence
Not archived · Council Link
APPLICATION FORM
Application Form
Not archived · Council Link
ARCHAEOLOGY COMMENTS
Consultee Comment
Not archived · Council Link
BIODIVERSITY NET GAIN FEASIBILITY REPORT
Report
Not archived · Council Link
BIODIVERSITY SELF-ASSESSMENT FORM
Report
Not archived · Council Link
BNG Metric
BNG Metric
Not archived · Council Link
BNG Report
BNG Report
Not archived · Council Link
BNG Report
BNG Report
Not archived · Council Link
CONSERVATION COMMENTS
Consultee Comment
Not archived · Council Link
DC8
DC8
Not archived · Council Link
ECOLOGY
Consultee Comment
Not archived · Council Link
ECOLOGY - LSE
Consultee Comment
Not archived · Council Link
EHO - CONTAMINATED LAND OFFICER
Consultee Comment
Not archived · Council Link
EHO AIR QUALITY
Consultee Comment
Not archived · Council Link
EXISTING BUILDINGS TO BE DEMOLISHED
Drawing
Not archived · Council Link
EXISTING ELEVATIONS
Drawing
Not archived · Council Link
EXISTING FLOOR PLANS
Drawing
Not archived · Council Link
EXTENSION OF TIME AGREEMENT
Correspondence
Not archived · Council Link
EXTENSION OF TIME AGREEMENT
Correspondence
Not archived · Council Link
FLOOD RISK COMMENTS
Consultee Comment
Not archived · Council Link
GCC HIGHWAYS
Consultee Comment
Not archived · Council Link
LAND CONTAMINATION ASSESSMENT
Report
Not archived · Council Link
LYDNEY TOWN COUNCIL
Consultee Comment
Not archived · Council Link
PEA
Report
Not archived · Council Link
PLANNING, DESIGN AND ACCESS STATEMENT
Report
Not archived · Council Link
PROPOSED ELEVATIONS
Drawing
Not archived · Council Link
Drawing
Archived · Council Link
Drawing
Archived · Council Link
SEVERN TRENT WATER
Consultee Comment
Not archived · Council Link
Site Notice
Site Notice
Not archived · Council Link
Site Notice
Site Notice
Not archived · Council Link
Site Notice
Site Notice
Not archived · Council Link
TRANSPORT STATEMENT
Report
Not archived · Council Link
WELSH WATER COMMENTS
Consultee Comment
Not archived · Council Link

Take Action

Make your voice heard. Authorities need to hear from people who support new homes.

✉️ Write Email in Support View on Council Portal