← Back to Forest of Dean District Council

Status

Pending Consideration New housing
Received
19 Nov 2025
New dwellings
1

Full Proposal

Erection of a dwelling with associated access from Chestnut Drive, private amenity space and associated works

Documents

AGENT TO OFFICER RE REVISED LOCATION PLAN
Correspondence
Not archived · Council Link
Application Form
Application Form
Not archived · Council Link
BIODIVERSITY NET GAIN ASSESSMENT
BNG Report
Not archived · Council Link
BIODIVERSITY NET GAIN STATEMENT FORM
BNG Statement
Not archived · Council Link
BIODIVERSITY NET GAIN STATUTORY METRIC
BNG Metric
Not archived · Council Link
CONSERVATION OFFICER
Consultee Comment
Not archived · Council Link
DC8
DC8
Not archived · Council Link
DESIGN AND ACCESS STATEMENT
Report
Not archived · Council Link
EXISTING BLOCK PLAN
Drawing
Not archived · Council Link
Drawing
Archived · Council Link
EXTENSION OF TIME AGREEMENT
Correspondence
Not archived · Council Link
FLOOD RISK COMMENTS
Consultee Comment
Not archived · Council Link
GCC HIGHWAYS
Consultee Comment
Not archived · Council Link
GENERAL - JOHN, O
Public Comment
Not archived · Council Link
HERITAGE IMPACT ASSESSMENT
Report
Not archived · Council Link
LOCATION PLAN
Drawing
Not archived · Council Link
NATURAL ENGLAND
Consultee Comment
Not archived · Council Link
NATURAL ENGLAND ANNEX A
Consultee Comment
Not archived · Council Link
PLANNING STATEMENT
Report
Not archived · Council Link
PRELIMINARY ECOLOGICAL ASSESSMENT
Report
Not archived · Council Link
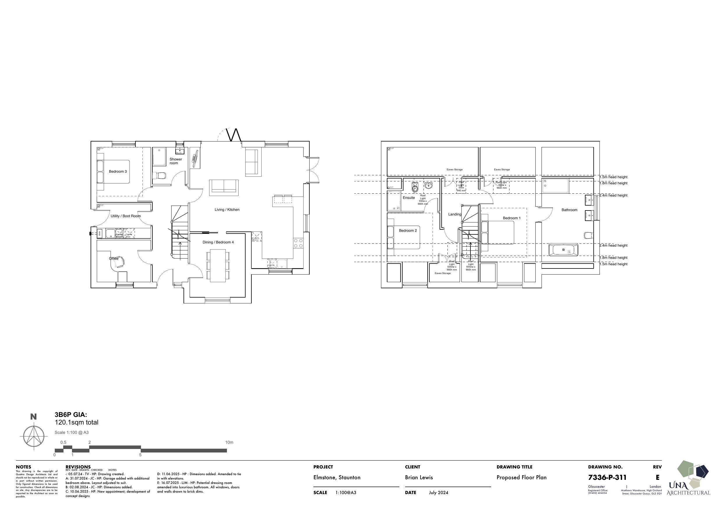
PROPOSED BLOCK PLAN
Drawing
Not archived · Council Link
PROPOSED ELEVATIONS
Drawing
Not archived · Council Link
Drawing
Archived · Council Link
PROPOSED GARAGE ELEVATIONS AND FLOOR PLANS
Drawing
Not archived · Council Link
Drawing
Archived · Council Link
Site Notice
Site Notice
Not archived · Council Link
STAUNTON PARISH COUNCIL
Consultee Comment
Not archived · Council Link
SUSTAINABILITY - ECOLOGY
Consultee Comment
Not archived · Council Link
TECHNICAL NOTE ON ACCESS
Report
Not archived · Council Link
TREE CONSULTEE RESPONSE
Consultee Comment
Not archived · Council Link

Take Action

Make your voice heard. Authorities need to hear from people who support new homes.

✉️ Write Email in Support View on Council Portal