← Back to Gloucester City Council

Status

Unknown New housing
Received
01 May 2024
New dwellings
1

Full Proposal

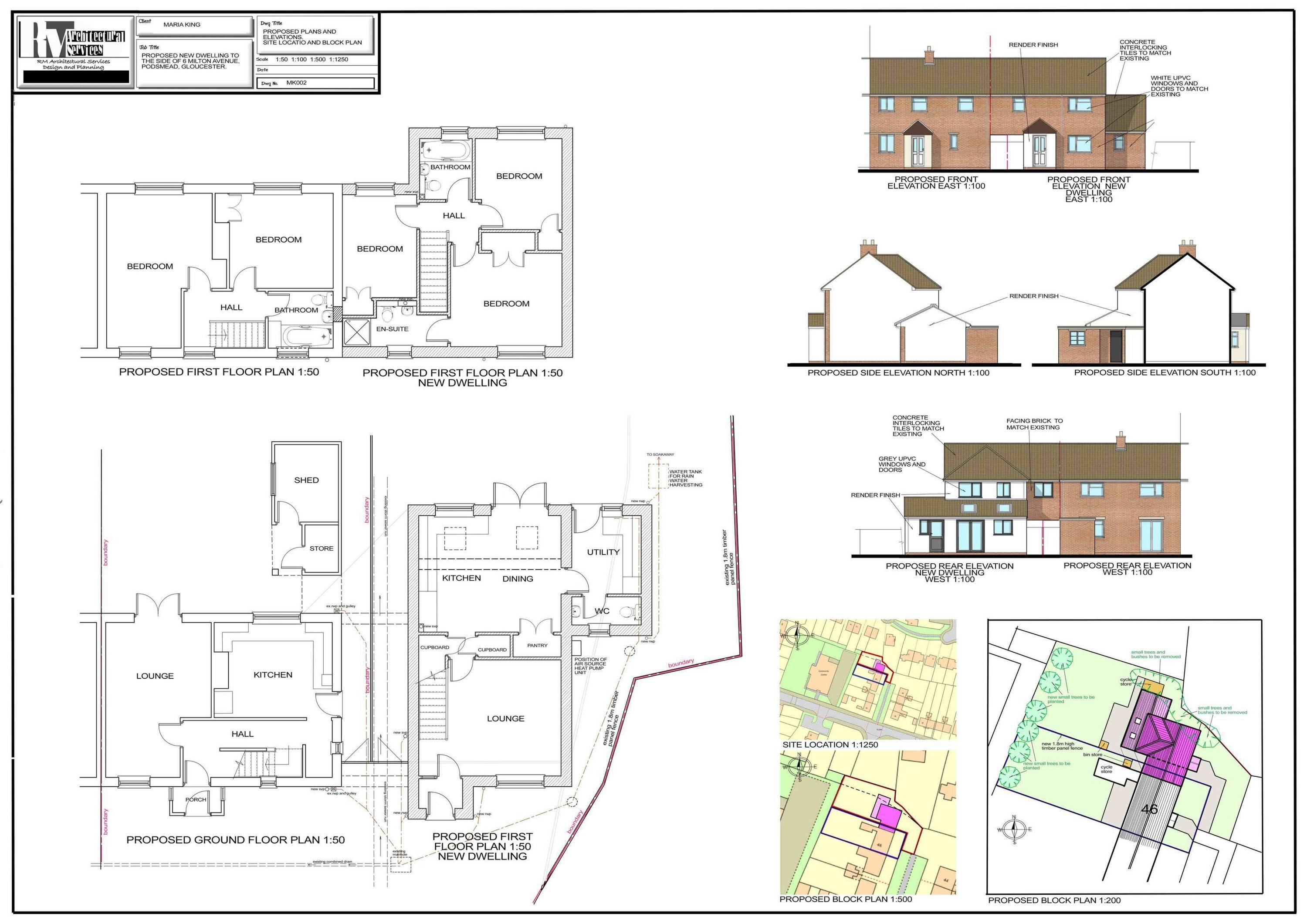
Proposed new 3 bed attached house to the side of No.46 Milton Avenue.

Documents

Application Form
Application Form
Not archived · Council Link
Design & Access Statement
Report
Not archived · Council Link
Design & Access Statement
Report
Not archived · Council Link
Design and Access Statement
Report
Not archived · Council Link
Ecology comments
Consultee Comment
Not archived · Council Link
Existing Plans and Elevations, Site Location and Block Plan
Plan
Not archived · Council Link
Flood Management comments
Consultee Comment
Not archived · Council Link
Highways comments
Consultee Comment
Not archived · Council Link
Neighbour comment 01
Comment
Not archived · Council Link
Neighbour comment 02
Comment
Not archived · Council Link
Noise comments
Consultee Comment
Not archived · Council Link
Preliminary Ecological Appraisal & Preliminary Roost Assessment
Report
Not archived · Council Link
Preliminary Ecological Appraisal & Preliminary Roost Assessment
Report
Not archived · Council Link
Severn Trent Water comments
Consultee Comment
Not archived · Council Link

Take Action

Make your voice heard. Authorities need to hear from people who support new homes.

✉️ Write Email in Support View on Council Portal