← Back to Gloucester City Council

Status

Decided House extension
Received
21 Jan 2025
New dwellings
0

Full Proposal

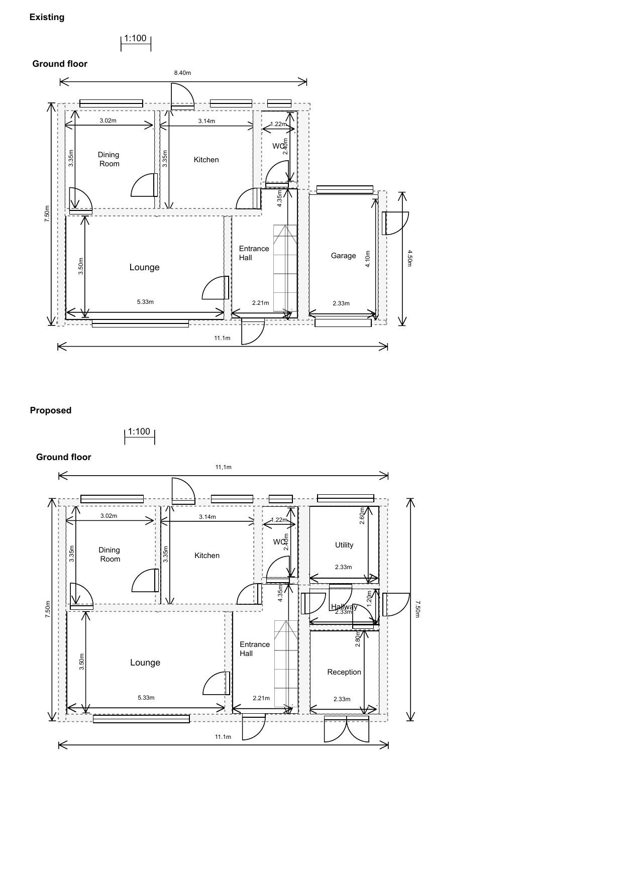
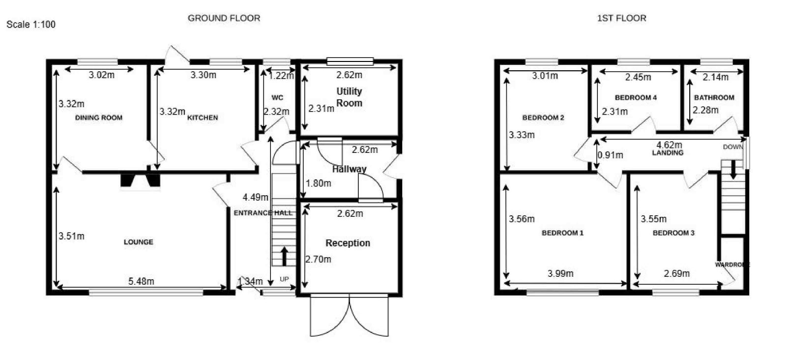
Conversion of existing, attached garage to a liveable area, including swapping current garage doors with french doors. Addition of new 3m x 2.6m extension at rear of garage, in-line with the existing house rear in garden. Raising existing garage height by 2 brick courses for regulation insulation and headspace in new room. Addition of small 'utility' hallway from converted garage space to join side entrance, new utility room, and converted liveable 'reception' area in the existing garage.

Documents

Application Form
Application Form
Not archived · Council Link
Decision Notice
Decision
Not archived · Council Link
Delegated Report
Delegated Report
Not archived · Council Link
Elevations - Existing - Back
Superseded Plan
Not archived · Council Link
Elevations - Existing - Front
Superseded Plan
Not archived · Council Link
Elevations - Existing - Left
Superseded Plan
Not archived · Council Link
Elevations - Existing - Right
Superseded Plan
Not archived · Council Link
Elevations - Proposed - Back
Superseded Plan
Not archived · Council Link
Elevations - Proposed - Front
Superseded Plan
Not archived · Council Link
Elevations - Proposed - Left
Superseded Plan
Not archived · Council Link
Elevations - Proposed - Right
Superseded Plan
Not archived · Council Link
Elevations Revision Grid
Superseded Plan
Not archived · Council Link
Elevations Revision No Grid
Superseded Plan
Not archived · Council Link
Existing and Proposed Elevations
Superseded Plan
Not archived · Council Link
Existing and Proposed Elevations (no grid)
Superseded Plan
Not archived · Council Link
Existing and Proposed Elevations Rev 1504
Amended Plan
Not archived · Council Link
Existing and Proposed Garage Extension Floor Plans
Superseded Plan
Not archived · Council Link
Superseded Plan
Archived · Council Link
Existing Elevations
Superseded Plan
Not archived · Council Link
Existing Floor Plans
Superseded Plan
Not archived · Council Link
Existing Floor Plans
Superseded Plan
Not archived · Council Link
Existing Site Block Plan
Superseded Plan
Not archived · Council Link
Proposed Block Plan
Amended Plan
Not archived · Council Link
Proposed Elevations
Superseded Plan
Not archived · Council Link
Superseded Plan
Archived · Council Link
Superseded Plan
Archived · Council Link
Proposed Site Block Plan
Superseded Plan
Not archived · Council Link
Plan
Archived · Council Link

Take Action

Make your voice heard. Authorities need to hear from people who support new homes.

✉️ Write Email in Support View on Council Portal