← Back to Gloucester City Council

Status

Decided House extension
Received
12 Dec 2025
New dwellings
0

Full Proposal

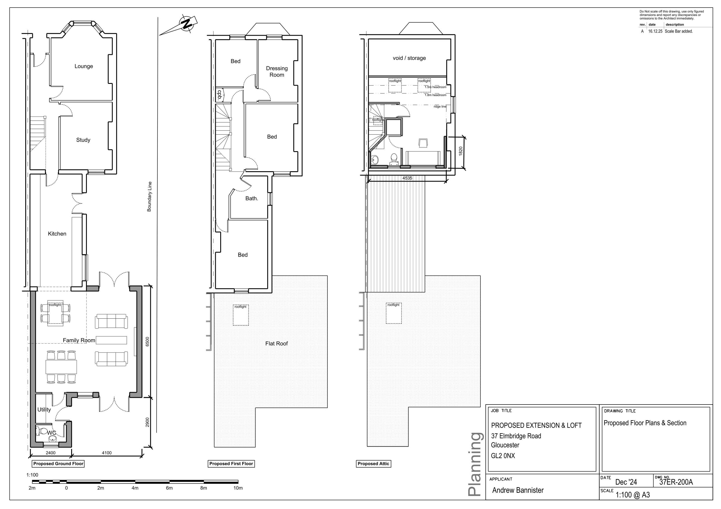
Proposed single storey rear extension and loft conversion to dwelling

Documents

Application Form
Application Form
Not archived · Council Link
Decision Notice
Decision
Not archived · Council Link
Delegated Report
Delegated Report
Not archived · Council Link
Existing & Proposed Block Plans
Plan
Not archived · Council Link
Existing Elevations & Floor Plans
Plan
Not archived · Council Link
Neighbour comment 01
Comment
Not archived · Council Link
Proposed Elevations & Section
Plan
Not archived · Council Link
Plan
Archived · Council Link

Take Action

Make your voice heard. Authorities need to hear from people who support new homes.

✉️ Write Email in Support View on Council Portal