← Back to Gloucester City Council

Status

Unknown Change of use
Received
22 Dec 2025
New dwellings
0

Full Proposal

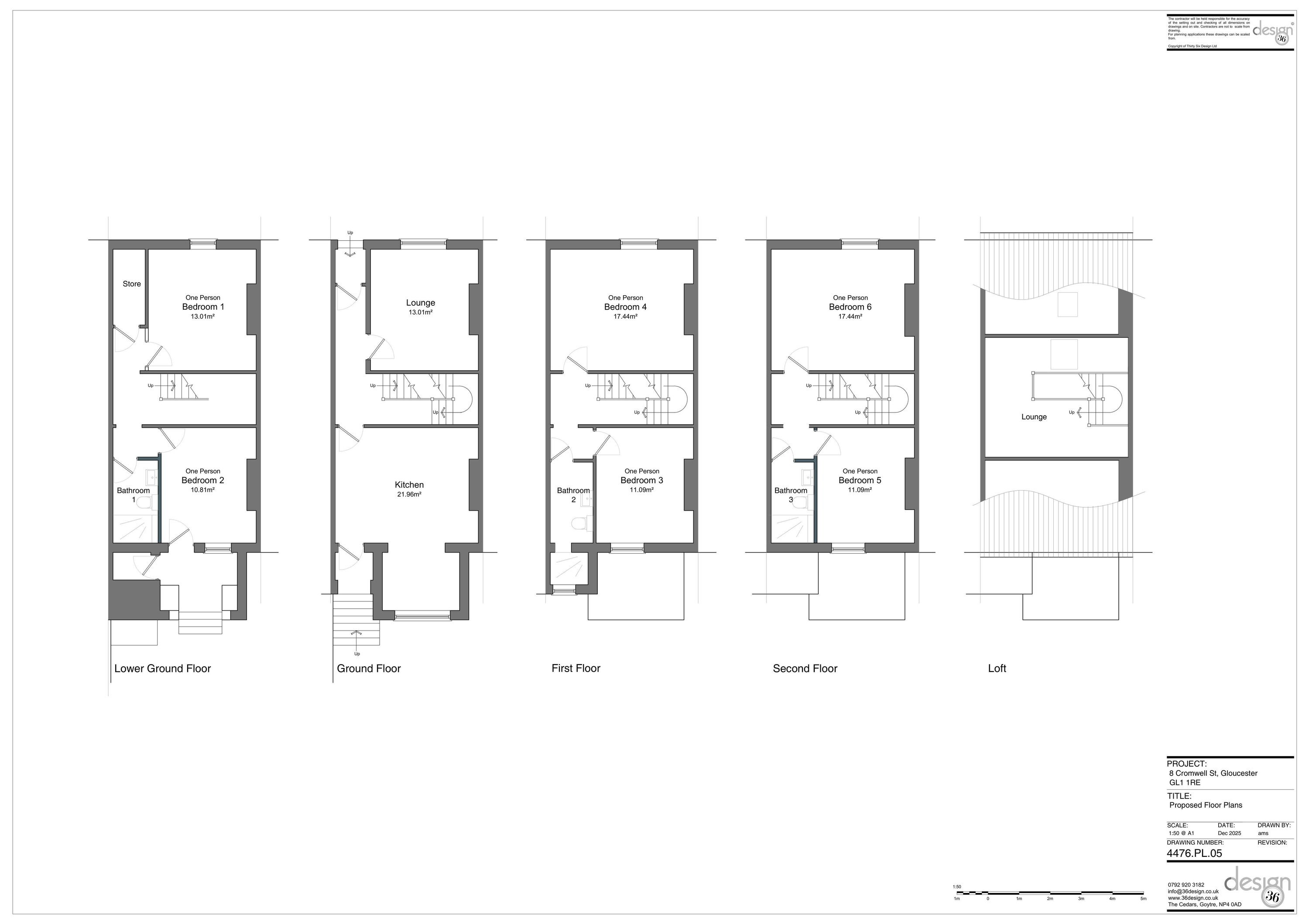
Full planning application for the conversion of a dwelling house (Use Class C3) to a large HMO (Use Class Sui Generis)

Documents

Application Form
Application Form
Not archived · Council Link
Existing & Proposed Block Plans
Plan
Not archived · Council Link
Existing Floor Plans
Superseded Plan
Not archived · Council Link
Existing Floor Plans & Elevations
Amended Plan
Not archived · Council Link
Flood Risk and Drainage Strategy Statement
Report
Not archived · Council Link
Heritage Appraisal
Report
Not archived · Council Link
Neighbour comment 01
Comment
Not archived · Council Link
Planning, Design & Access Statement
Superseded Document
Not archived · Council Link
Planning, Design & Access Statement
Amended Document
Not archived · Council Link
Amended Plan
Archived · Council Link
Superseded Plan
Archived · Council Link
Plan
Archived · Council Link

Take Action

Make your voice heard. Authorities need to hear from people who support new homes.

✉️ Write Email in Support View on Council Portal