← Back to Gosport Borough Council

Status

Grant Permission Change of use
Received
25 Sep 2024
New dwellings
12

Full Proposal

CHANGE OF USE OF PART OF GROUND FLOOR AND UPPER FLOORS, INCLUDING LOFT CONVERSION, FROM COMMERCIAL (CLASS E) TO 12 ROOM HOUSE IN MULTIPLE OCCUPATION (HMO) (SUI-GENERIS), ERECTION OF EXTENSION TO THE EXISTING ROOF, AND OTHER ASSOCIATED EXTERNAL ALTERATIONS (CONSERVATION AREA) (ALTERNATIVE PROPOSALS TO PLANNING PERMISSION 23/00217/FULL) (as amended by plans received 20.12.24) (amend plans and description)

Documents

APPLICATION FORM - WITHOUT PERSONAL DATA
Application Form
Not archived · Council Link
BIODIVERSITY SURVEY AND REPORT
Supporting Document
Not archived · Council Link
BUILDING CONTROL
Consultee Comment
Not archived · Council Link
BUILDING CONTROL
Consultee Comment
Not archived · Council Link
CONSERVATION & DESIGN
Consultee Comment
Not archived · Council Link
CONSERVATION AND DESIGN
Consultee Comment
Not archived · Council Link
Decision Notice
Decision Notice
Not archived · Council Link
DESIGN AND HERITAGE STATEMENT
Supporting Document
Not archived · Council Link
DIO SAFEGUARDING
Consultee Comment
Not archived · Council Link
EIA SCREENING
Supporting Document
Not archived · Council Link
ENVIRONMENTAL HEALTH
Consultee Comment
Not archived · Council Link
EXISTING AND PROPOSED SECTIONS
Approved Plans
Not archived · Council Link
EXISTING ELEVATIONS
Plans
Not archived · Council Link
FLOOD RISK ASSESSMENT
Supporting Document
Not archived · Council Link
GOSPORT SOCIETY
Consultee Comment
Not archived · Council Link
HAMPSHIRE HIGHWAYS
Consultee Comment
Not archived · Council Link
LOCATION PLAN
Approved Plans
Not archived · Council Link
MOD
Consultee Comment
Not archived · Council Link
NATURAL ENGLAND
Consultee Comment
Not archived · Council Link
Officer Report
Officer Report
Not archived · Council Link
PROPOSED ELEVATIONS
Approved Plans
Not archived · Council Link
PROPOSED ELEVATIONS/SECTIONS
Superseded Plans
Not archived · Council Link
Superseded Plans
Archived · Council Link
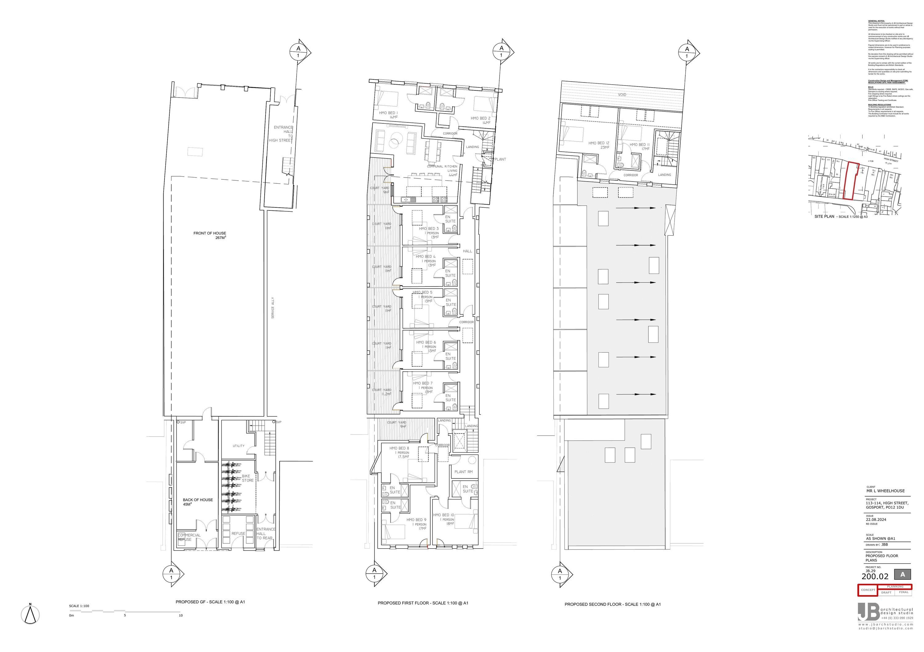
PROPOSED FLOORPLANS
Approved Plans
Not archived · Council Link
PROPOSED ROOF DETAIL
Approved Plans
Not archived · Council Link
STREETSCENE
Consultee Comment
Not archived · Council Link
THE GOSPORT SOCIETY
Consultee Comment
Not archived · Council Link

Take Action

Make your voice heard. Authorities need to hear from people who support new homes.

✉️ Write Email in Support View on Council Portal