← Back to Gosport Borough Council

Status

Registered Change of use
Received
13 Nov 2024
New dwellings
2

Full Proposal

ERECTION OF SINGLE STOREY, TWO STOREY EXTENSIONS AND FRONT AND REAR DORMERS TO FACILITATE CONVERSION OF DWELLINGHOUSE TO 2NO. TWO BEDROOM FLATS

Documents

APPLICATION FORM
Application Form
Not archived · Council Link
BIODIVERSITY CHECKLIST
Supporting Document
Not archived · Council Link
BLOCK PLAN
Plans
Not archived · Council Link
BUILDING CONTROL
Consultee Comment
Not archived · Council Link
D&A
Design and Access Statement
Not archived · Council Link
EXISTING ELEVATIONS
Plans
Not archived · Council Link
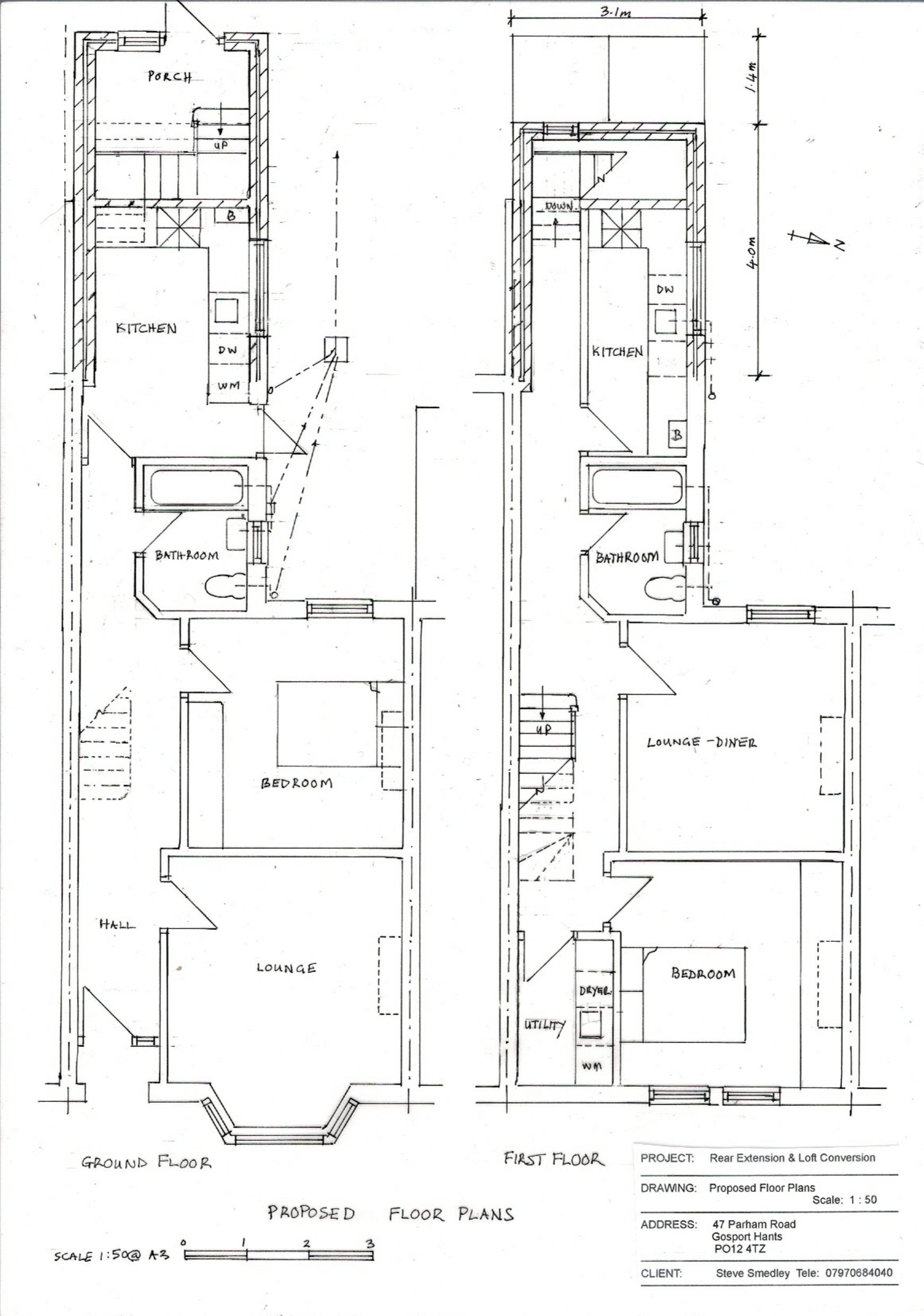
EXISTING FLOOR PLANS
Plans
Not archived · Council Link
EXISTING ROOF & SECOND FLOOR PLANS
Superseded Plans
Not archived · Council Link
HAMPSHIRE HIGHWAYS
Consultee Comment
Not archived · Council Link
HCC ECOLOGY
Consultee Comment
Not archived · Council Link
HIWFRS
Consultee Comment
Not archived · Council Link
MOD
Consultee Comment
Not archived · Council Link
NATURAL ENGLAND
Consultee Comment
Not archived · Council Link
PROPOSED ELEVATIONS
Superseded Plans
Not archived · Council Link
PROPOSED ELEVATIONS
Amended Plans
Not archived · Council Link
ROOF AND SECOND FLOOR PLANS - EXISTING AND PROPOSED
Amended Plans
Not archived · Council Link
Site Location Plan
Archived · Council Link
Plans
Archived · Council Link

Take Action

Make your voice heard. Authorities need to hear from people who support new homes.

✉️ Write Email in Support View on Council Portal