← Back to Gravesham Borough Council

Status

Pending Consideration New housing
Received
03 Nov 2025
New dwellings
1

Full Proposal

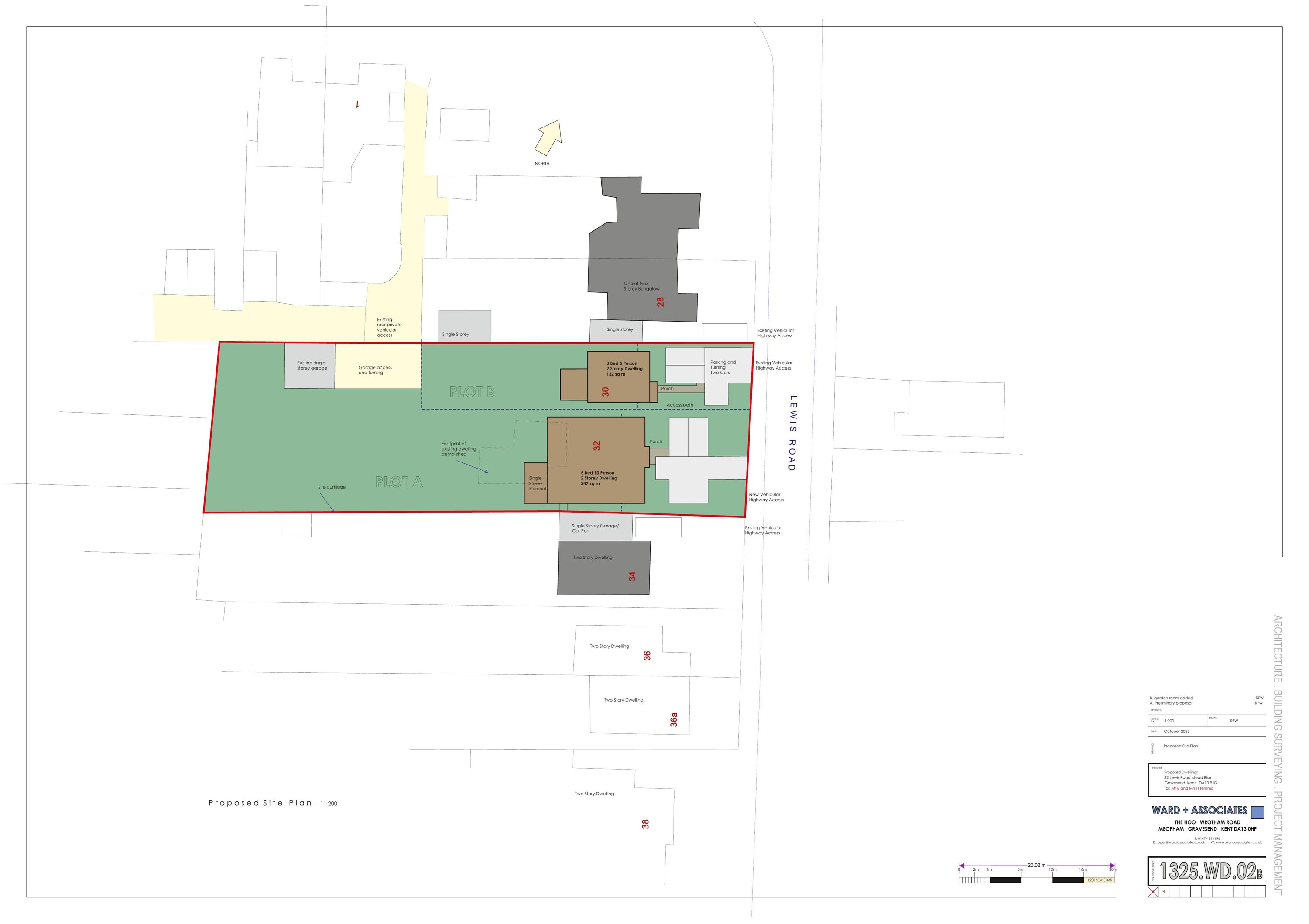
Demolition of existing two storey detached dwelling known as No 32 and the erection of a replacement two storey dwelling and an additional two storey dwelling to be known as No 30.

Documents

Application Form
Application Form
Not archived · Council Link
Floor Plans (Dwelling A) - Proposed
Plan/Drawing
Not archived · Council Link
Floor Plans (Dwelling B) - Proposed
Plan/Drawing
Not archived · Council Link
Front and Rear Elevations (Plot A)- Proposed
Plan/Drawing
Not archived · Council Link
Front and Rear Elevations (Plot B) - Proposed
Plan/Drawing
Not archived · Council Link
Object
Neighbour Comment
Not archived · Council Link
Object
Neighbour Comment
Not archived · Council Link
Object
Neighbour Comment
Not archived · Council Link
object
Neighbour Comment
Not archived · Council Link
Side Elevations (Dwelling A) - Proposed
Plan/Drawing
Not archived · Council Link
Side Elevations (Dwelling B) - Proposed
Plan/Drawing
Not archived · Council Link
Plan/Drawing
Archived · Council Link
Site Topographical Plan - Existing
Plan/Drawing
Not archived · Council Link
Streetscapes - Proposed
Plan/Drawing
Not archived · Council Link

Take Action

Make your voice heard. Authorities need to hear from people who support new homes.

✉️ Write Email in Support View on Council Portal