← Back to Greenwich

Status

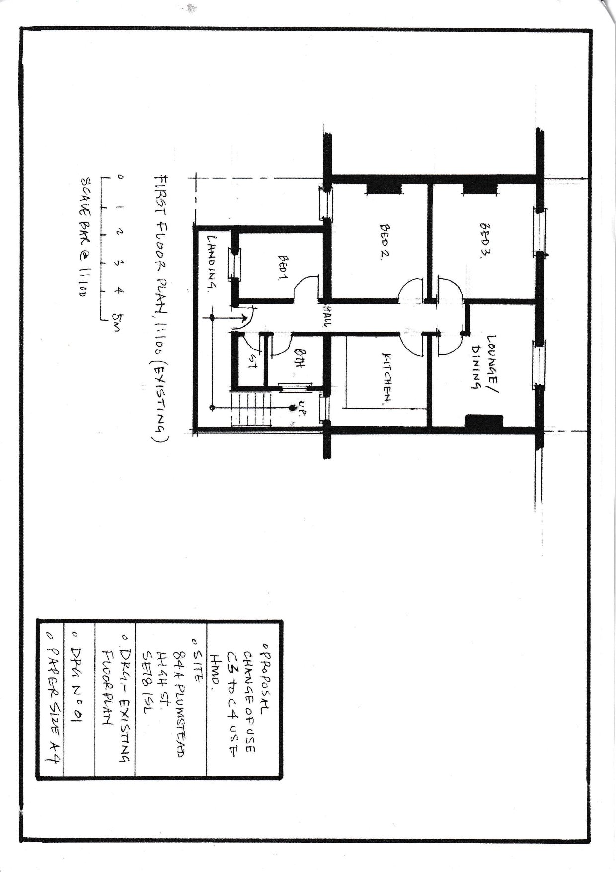
Registered Change of use
Received
05 Aug 2025
New dwellings
0

Full Proposal

Change of use from existing dwelling (Use Class C3) to a 4-bed, 7-person HMO (Use Class Sui Generis) all other associated alterations.

Documents

Acknowledgement letter
Correspondence
Not archived · Council Link
Application form redacted
Application Form
Not archived · Council Link
Drawing pack
Drawing
Not archived · Council Link
Existing and proposed elevations and sections
Drawing
Not archived · Council Link
Fire safty statement
Document
Not archived · Council Link
Planning statement
Document
Not archived · Council Link

Take Action

Make your voice heard. Authorities need to hear from people who support new homes.

✉️ Write Email in Support View on Council Portal