← Back to Greenwich

Status

Decided New housing
Received
29 Aug 2025
New dwellings
1

Summary

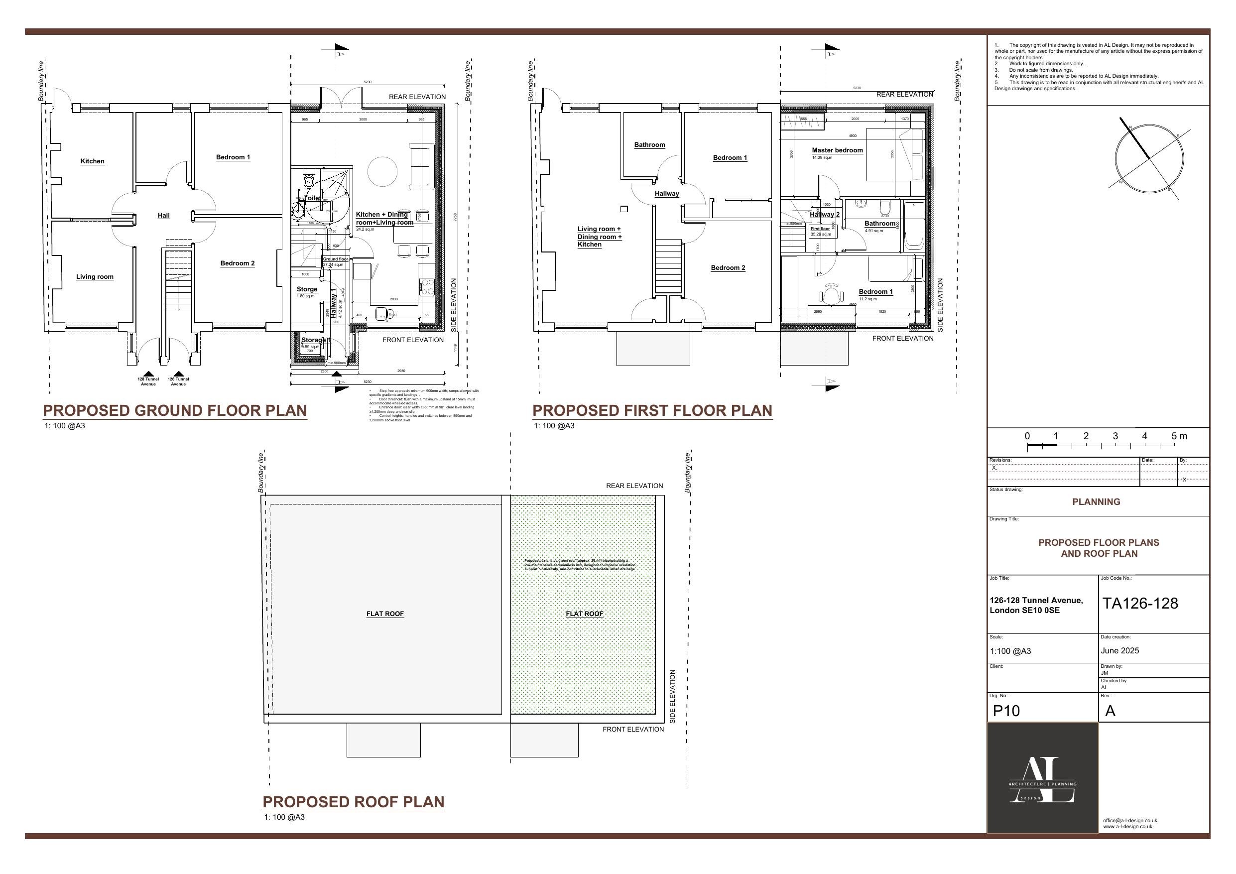
Subdivision and erection of one two‑storey dwelling with landscaping and storage.

Full Proposal

Subdivision of land at 126-128 Tunnel Avenue, demolition of existing garage and the erection of a new two storey residential dwellinghouse (Use Class C3), with associated landscaping, waste and cycle storage, and associated external alterations.

Documents

Acknowledgement letter
Correspondence
Not archived · Council Link
Additional archaeological survey
Document
Not archived · Council Link
Application form redacted
Application Form
Not archived · Council Link
Arboricultural impact assessment
Drawing
Not archived · Council Link
Arboricultural method statement
Document
Not archived · Council Link
Arboricultural survey
Document
Not archived · Council Link
Biodiversity net gain assessment
Document
Not archived · Council Link
Bng metric
Document
Not archived · Council Link
Daylight assessment
Document
Not archived · Council Link
Decision notice
Decision Notice
Not archived · Council Link
Design and access statement
Document
Not archived · Council Link
Existing elevations
Drawing
Not archived · Council Link
Existing floor plans
Drawing
Not archived · Council Link
Flood risk assessment and suds strategy 1
Document
Not archived · Council Link
Flood risk assessment and suds strategy 2
Document
Not archived · Council Link
Flood risk assessment and suds strategy 3
Document
Not archived · Council Link
Planning statement
Document
Not archived · Council Link
Proposed elevations
Drawing
Not archived · Council Link
Drawing
Archived · Council Link
Drawing
Archived · Council Link
Reports
Report
Not archived · Council Link
Revised proposed plan drawings
Drawing
Not archived · Council Link
Drawing
Archived · Council Link
Tree protection plan
Drawing
Not archived · Council Link

Take Action

Make your voice heard. Authorities need to hear from people who support new homes.

✉️ Write Email in Support View on Council Portal