← Back to Greenwich

Status

Registered New housing
Received
16 Sep 2025
New dwellings
2

Full Proposal

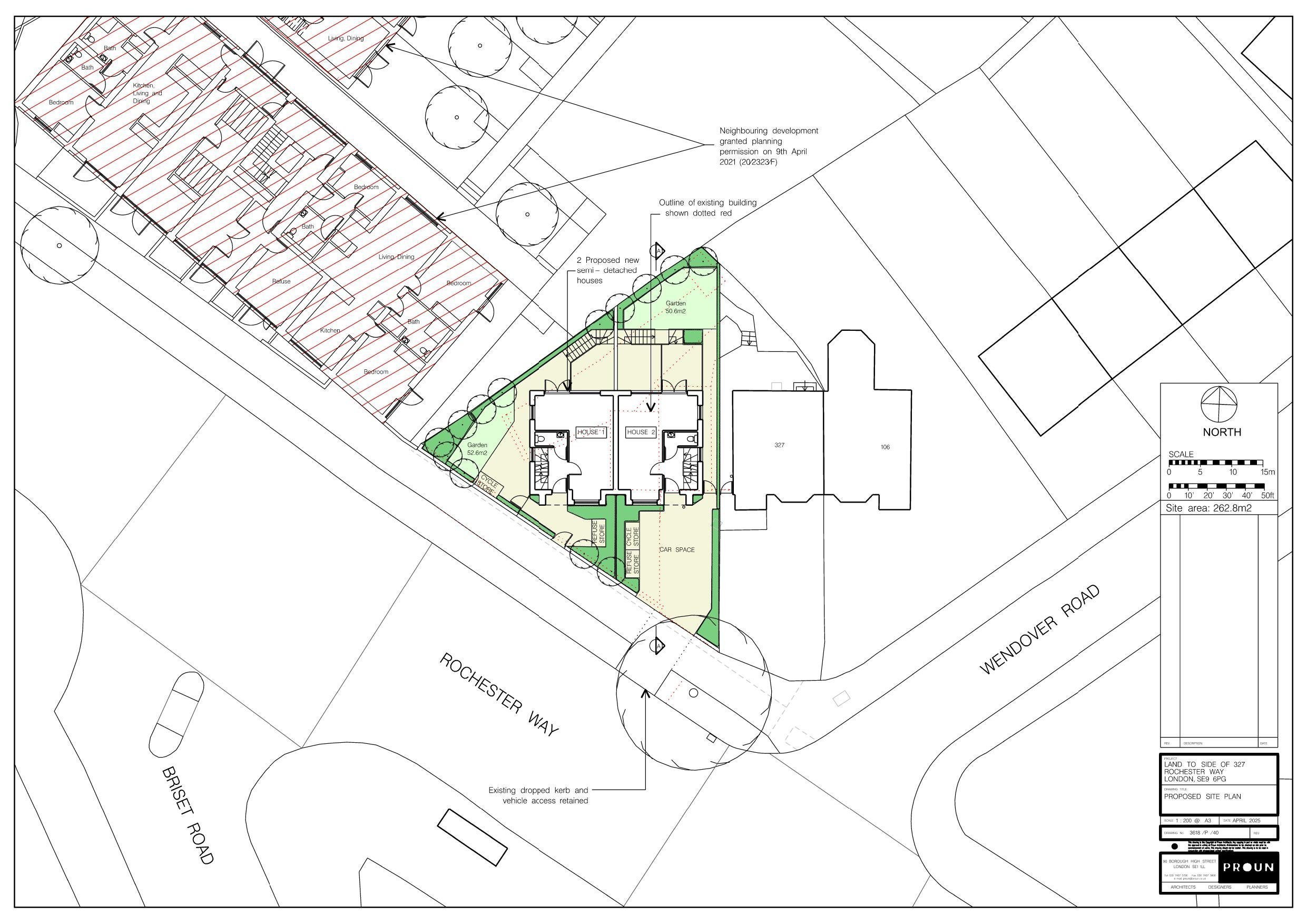
Demolition of the existing ancillary buildings and construction of 2 x 3bedroom 4-person semi-detached houses with associated car parking, cycle parking, refuse storage and outdoor amenity space.

Documents

Acknowledgement letter
Correspondence
Not archived · Council Link
Application form redacted
Application Form
Not archived · Council Link
Bng report
Document
Not archived · Council Link
Daylight and sunlight assessment
Document
Not archived · Council Link
Demolition and construction management plan
Document
Not archived · Council Link
Design and access statement
Document
Not archived · Council Link
Existing and proposed street scene elevations
Drawing
Not archived · Council Link
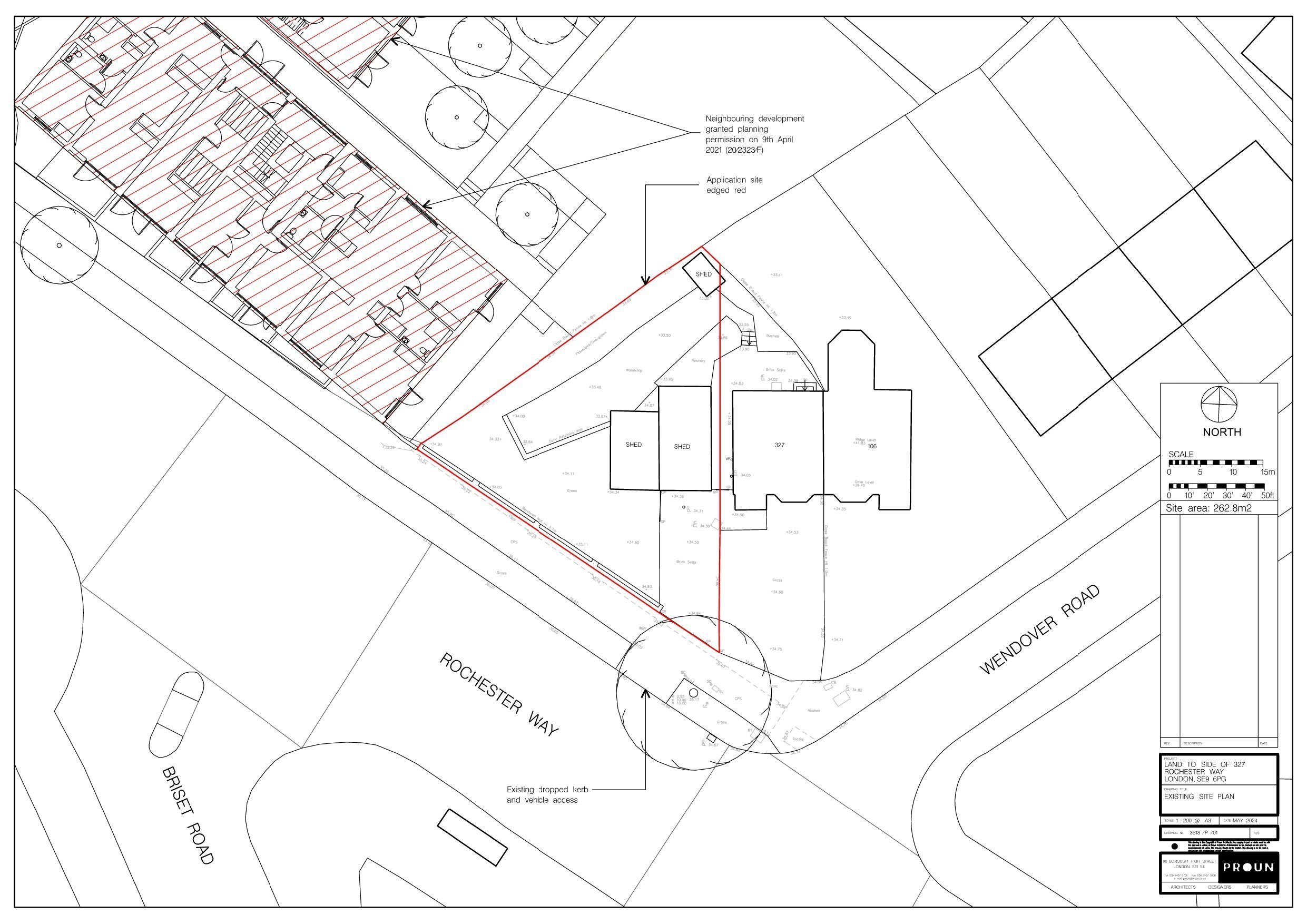
Existing block plan
Drawing
Not archived · Council Link
Existing elevations
Drawing
Not archived · Council Link
Existing location plan
Drawing
Not archived · Council Link
Drawing
Archived · Council Link
Fire statement
Document
Not archived · Council Link
Preliminary ecological appraisal
Document
Not archived · Council Link
Proposed block plan
Drawing
Not archived · Council Link
Proposed elevations and section
Drawing
Not archived · Council Link
Proposed elevations and section
Drawing
Not archived · Council Link
Drawing
Archived · Council Link
Drawing
Archived · Council Link
Sustainability statement
Document
Not archived · Council Link
The statutory metric macroenabled1.0.4 (3)
Document
Not archived · Council Link
The_statutory_metric_macro_enabled
Document
Not archived · Council Link
Tree survey, arboriculturassment & method statemen
Document
Not archived · Council Link
Unknown
Document
Not archived · Council Link
Unknown
Document
Not archived · Council Link

Take Action

Make your voice heard. Authorities need to hear from people who support new homes.

✉️ Write Email in Support View on Council Portal