← Back to Greenwich

Status

Decided Change of use
Received
22 Sep 2025
New dwellings
0

Summary

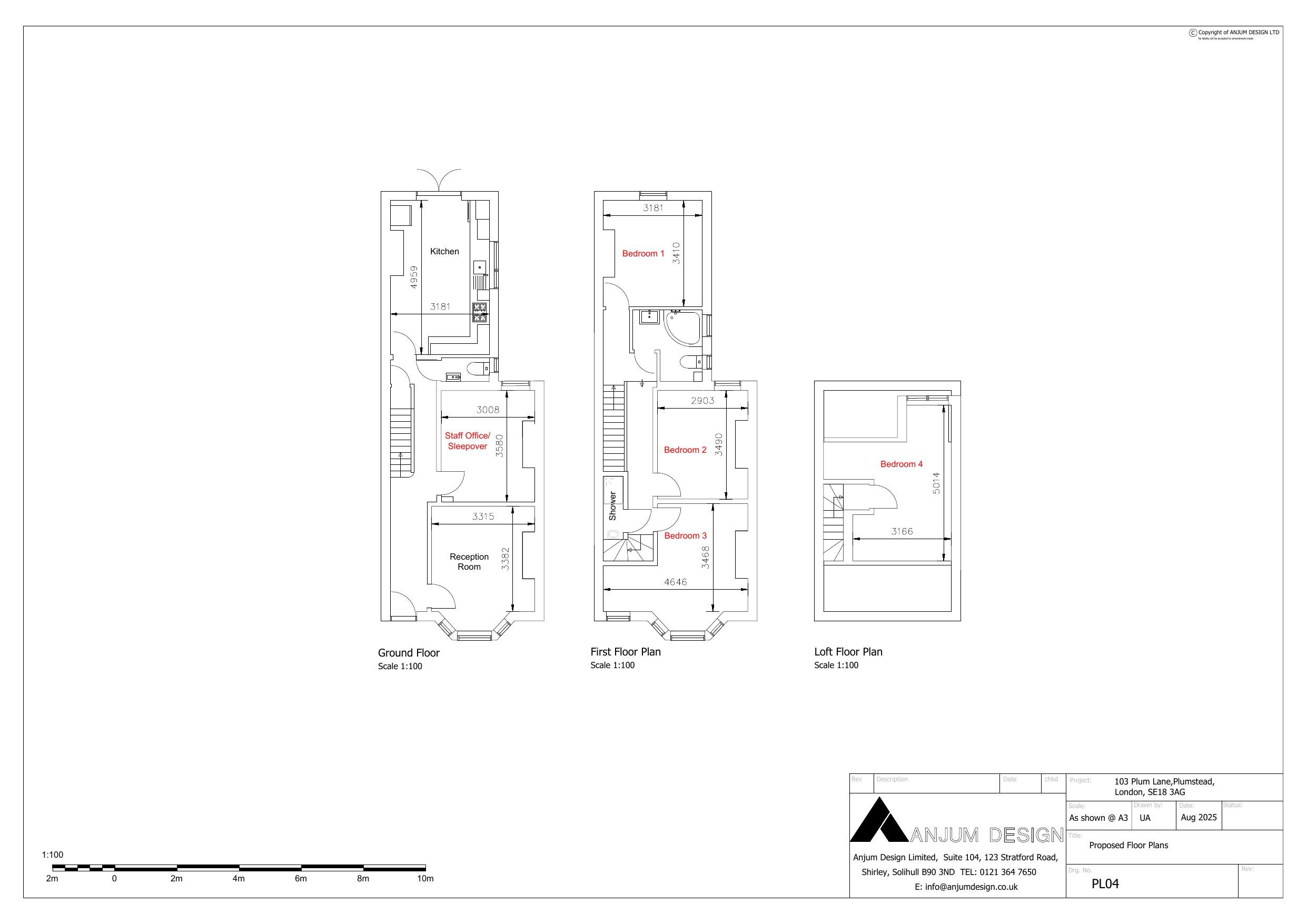
Convert dwelling (C3) to residential care home (C2) for young people aged 16–18 with associated works.

Full Proposal

Change of use from an existing dwelling (Use Class C3) to a residential care home (Use Class C2) for young people between the age of 16 to 18 years old and all other works

Documents

Application form redacted
Application Form
Not archived · Council Link
Correspondance
Correspondence
Not archived · Council Link
Decision notice
Decision Notice
Not archived · Council Link
Existing floor plan
Drawing
Not archived · Council Link
Fire safety statement
Document
Not archived · Council Link
Location plan
Drawing
Not archived · Council Link
Planning statement
Document
Not archived · Council Link
Drawing
Archived · Council Link
Reports
Report
Not archived · Council Link
Section
Drawing
Not archived · Council Link
Drawing
Archived · Council Link
Staff and operation arrangements
Document
Not archived · Council Link

Take Action

Make your voice heard. Authorities need to hear from people who support new homes.

✉️ Write Email in Support View on Council Portal