← Back to Greenwich

Status

Registered New housing
Received
01 Dec 2025
New dwellings
1

Full Proposal

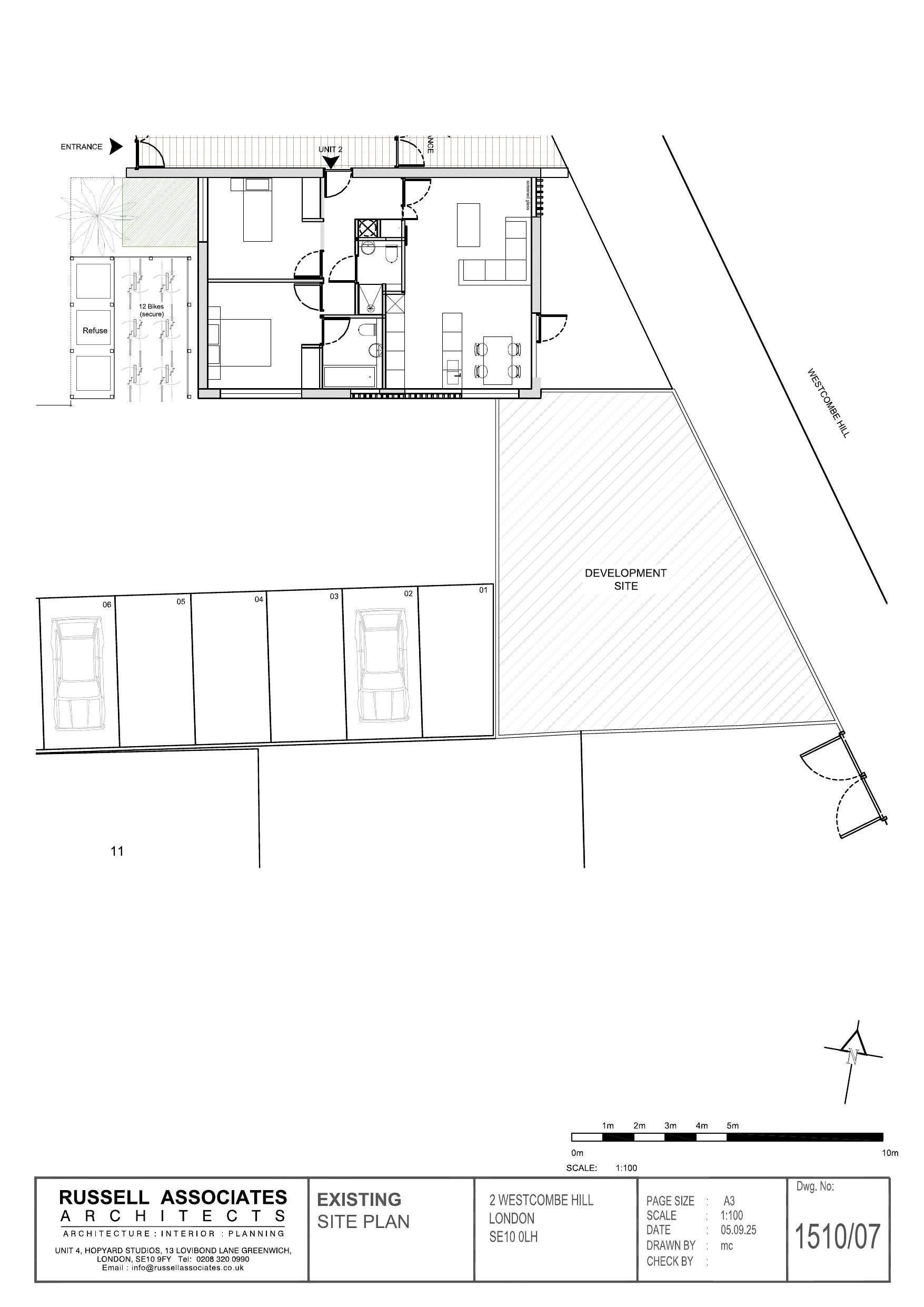
Construction of a two-storey two bedroom house to the land to the side of Old Pound Apartments 2 Westcombe Hill and associated alterations.

Documents

Acknowledgement letter
Correspondence
Not archived · Council Link
Air quality assessment
Document
Not archived · Council Link
Application form redacted
Application Form
Not archived · Council Link
Approved block plan
Drawing
Not archived · Council Link
Approved drawings
Drawing
Not archived · Council Link
Approved site layout
Drawing
Not archived · Council Link
Arboricultural impact assessment and method statement
Document
Not archived · Council Link
Certificate b
Document
Not archived · Council Link
Cover letter for re-submission
Document
Not archived · Council Link
Daylight and sunlight assessment
Document
Not archived · Council Link
Decision notice approval
Document
Not archived · Council Link
Existing block plan
Drawing
Not archived · Council Link
Existing east elevation
Drawing
Not archived · Council Link
Drawing
Archived · Council Link
Existing west elevation
Drawing
Not archived · Council Link
Flood constraints assessment
Document
Not archived · Council Link
Flood risk assessment
Document
Not archived · Council Link
Noise impact assesment report
Document
Not archived · Council Link
Proposed block plan
Drawing
Not archived · Council Link
Proposed drawings
Drawing
Not archived · Council Link
Proposed drawings
Drawing
Not archived · Council Link
Drawing
Archived · Council Link
Proposed front elevation
Drawing
Not archived · Council Link
Proposed rear elevation
Drawing
Not archived · Council Link
Proposed side elevation (north)
Drawing
Not archived · Council Link
Ptal report and map
Document
Not archived · Council Link
Revised side area elevation
Drawing
Not archived · Council Link
Revised side area plan
Drawing
Not archived · Council Link
Drawing
Archived · Council Link
Site photographs
Document
Not archived · Council Link
Supporting statement
Document
Not archived · Council Link
Unknown
Document
Not archived · Council Link

Take Action

Make your voice heard. Authorities need to hear from people who support new homes.

✉️ Write Email in Support View on Council Portal