← Back to Greenwich

Status

Registered Other
Received
08 Dec 2025
New dwellings
0

Full Proposal

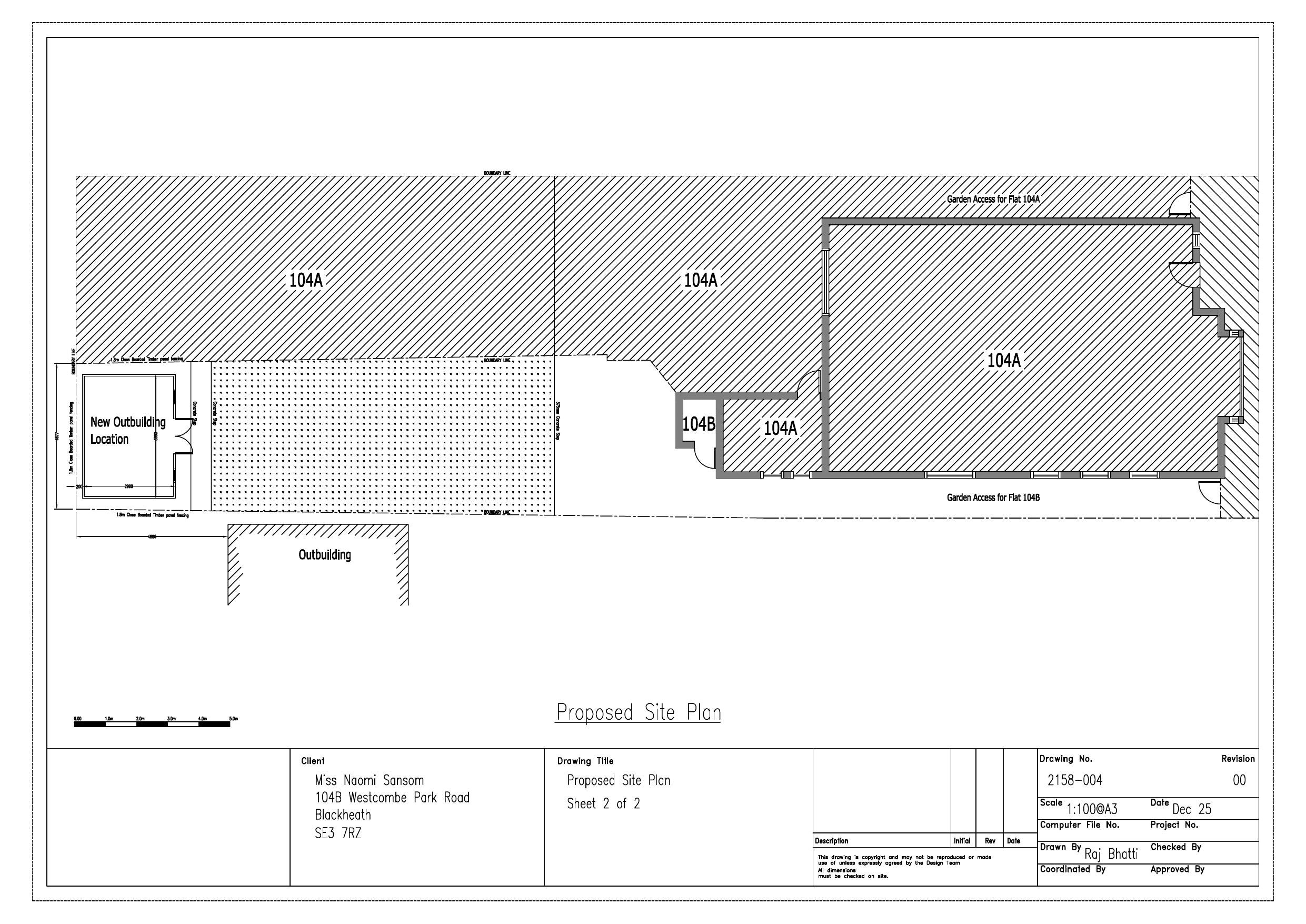
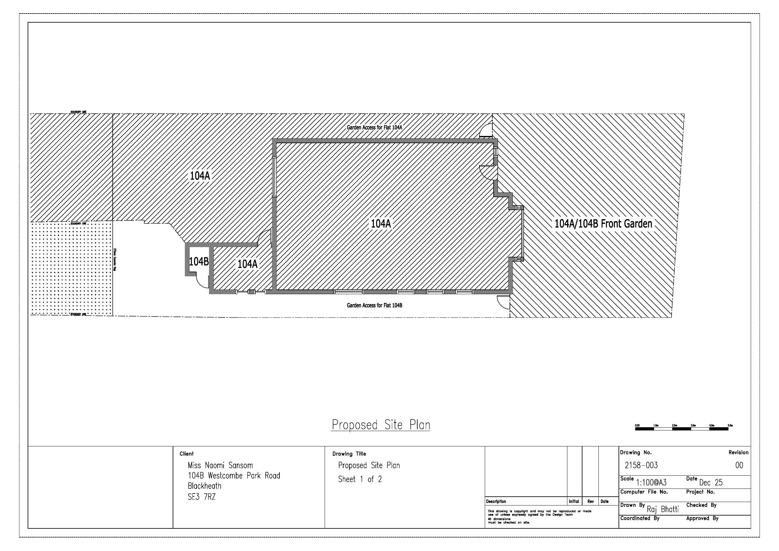
Construction of a garden office at the end of the garden for occasional recreational use.

Documents

Acknowledgement letter
Correspondence
Not archived · Council Link
Application form redacted
Application Form
Not archived · Council Link
Block plan
Drawing
Not archived · Council Link
Certificate b signed
Application Form
Not archived · Council Link
Existing & proposed rear elevations
Drawing
Not archived · Council Link
Existing & proposed side elevations
Drawing
Not archived · Council Link
Existing & proposed side elevations 2
Drawing
Not archived · Council Link
Drawing
Archived · Council Link
Drawing
Archived · Council Link
Fire statement
Document
Not archived · Council Link
Heritage statement
Document
Not archived · Council Link
Outbuilding rear elevation & section
Drawing
Not archived · Council Link
Proposed roof plan
Drawing
Not archived · Council Link
Drawing
Archived · Council Link
Drawing
Archived · Council Link
Drawing
Archived · Council Link
Drawing
Archived · Council Link
Terminator insulated log cabin specifications
Document
Not archived · Council Link

Take Action

Make your voice heard. Authorities need to hear from people who support new homes.

✉️ Write Email in Support View on Council Portal