← Back to Greenwich

Status

Registered House extension
Received
Last month
New dwellings
0

Full Proposal

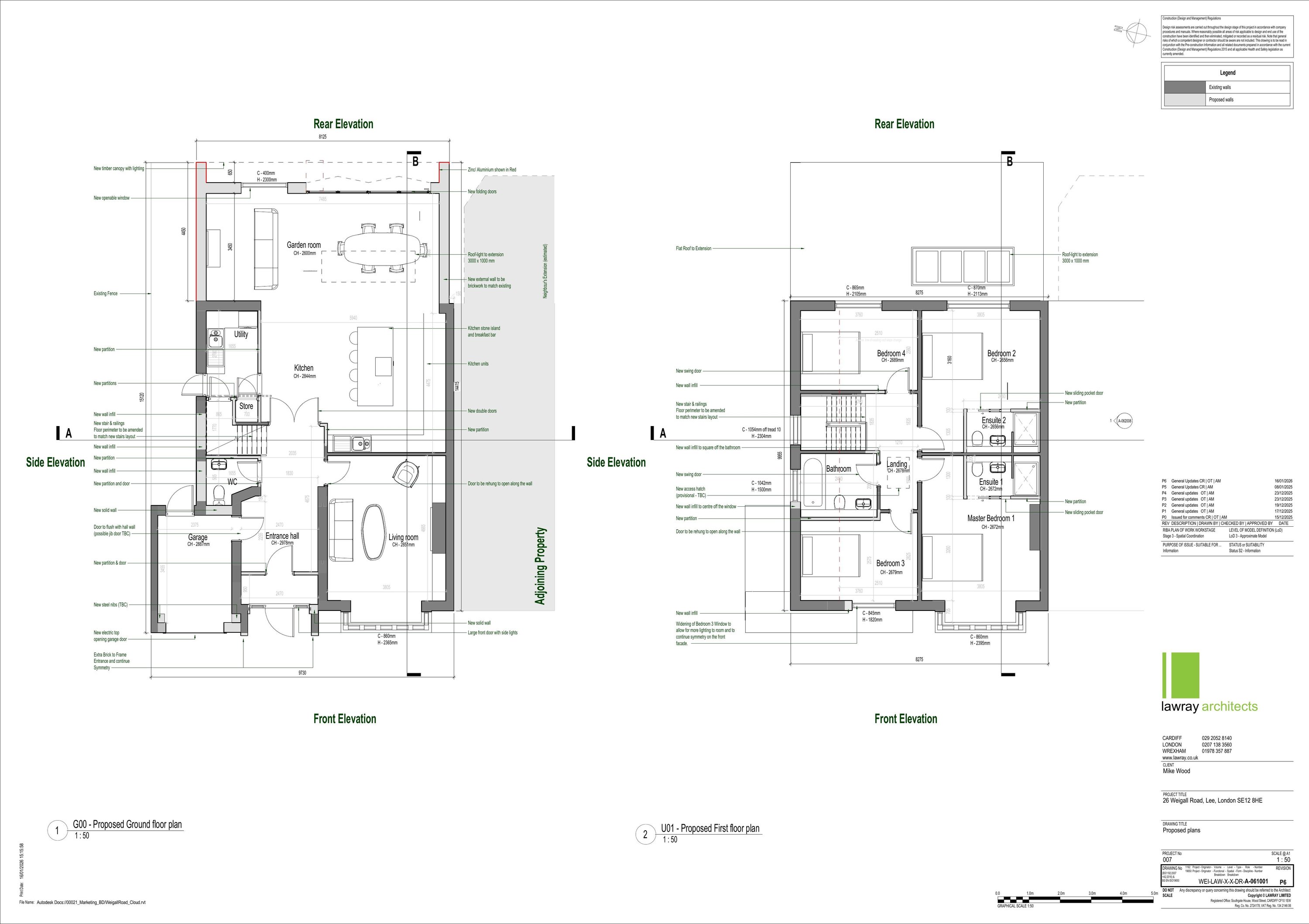
Demolition and construction of a single-storey rear extension; installation of a new garage door to the front and repositioning of the front entrance along with roof alterations to the side and front wrap-around extension; alteration and replacement of existing windows and doors of the dwelling; application of a new sand and cement render finish to the exterior of the dwelling and all associated works.

Documents

Acknowledgement letter
Correspondence
Not archived · Council Link
Application form redacted
Application Form
Not archived · Council Link
Cover letter
Document
Not archived · Council Link
Design and access statement
Document
Not archived · Council Link
Existing block plan
Drawing
Not archived · Council Link
Existing elevations
Drawing
Not archived · Council Link
Existing plans
Drawing
Not archived · Council Link
Existing roof plan
Drawing
Not archived · Council Link
Existing sections
Drawing
Not archived · Council Link
Flood risk assessment
Document
Not archived · Council Link
Proposed block plan
Drawing
Not archived · Council Link
Proposed elevations
Drawing
Not archived · Council Link
Drawing
Archived · Council Link
Proposed sections
Drawing
Not archived · Council Link
Drawing
Archived · Council Link

Take Action

Make your voice heard. Authorities need to hear from people who support new homes.

✉️ Write Email in Support View on Council Portal