← Back to Guildford Borough Council
Status
Registered
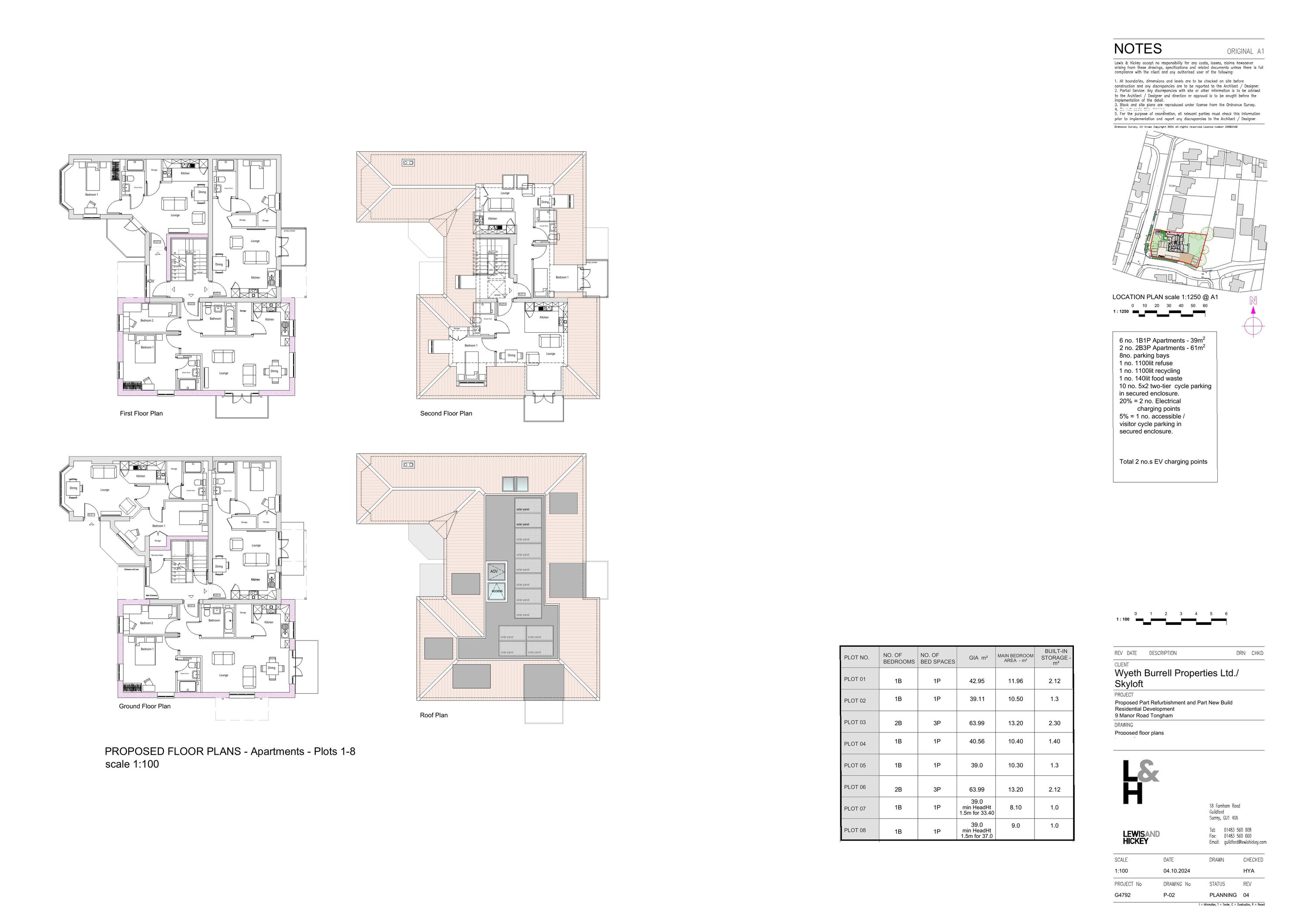
New housing
Summary
Two-storey extension and conversion to eight flats with parking, following demolition of veterinary building.
Full Proposal
Erection of a two-storey extension and conversion of an existing dwellinghouse to 8 flats, with accommodation in the roof; and the provision of parking and ancillary facilities, following demolition of veterinary practice building
Documents
Application form
Application Form
Application form redacted
Application Form
Arboricultural report
Application Document
Bat survey report
Application Document
Biodiversity net gain metric part 1
Application Document
Biodiversity net gain metric part 2
Application Document
Biodiversity net gain metric part 3
Application Document
Biodiversity net gain metric part 4
Application Document
Decision notice 25/w/00015
Application Document
Design statement
Application Document
Energy statement
Application Document
Existing a-a & b-b section
Drawing
Existing c-c & d-d sections
Drawing
Existing front & rear elevations
Drawing
Existing ground and first floor plans
Drawing
Existing loft & roof plan
Drawing
Existing side elevations
Drawing
Existing street scenes & site sections
Drawing
Photographic record of building works may 2025
Application Document
Planning & heritage statement
Application Document
Preliminary ecological appraisal report
Application Document
Proposed block plan
Drawing
Proposed elevations
Drawing
Proposed refuse & recycling cycle enclosure plans & elevations
Drawing
Proposed street elevations and site sections
Drawing
Superseded biodiversity metric tool
Application Document
Superseded proposed block plan
Drawing
Superseded proposed plots 1-9 elevations & sections
Drawing
Superseded proposed plots 1-9 floor & roof plans
Drawing
Superseded proposed street scenes & site sections
Drawing
Surrey highways - comment
Correspondence
Surrey highways - comment
Correspondence
Surrey wildlife trust
Correspondence
Surrey wildlife trust - comment
Correspondence
Surrey wildlife trust response
Correspondence
Tree landscape plan
Drawing
Updated bng metric
Application Document
Take Action
Make your voice heard. Authorities need to hear from people who support new homes.