← Back to Guildford Borough Council

Status

Registered New housing
Received
12 Sep 2025
New dwellings
2

Summary

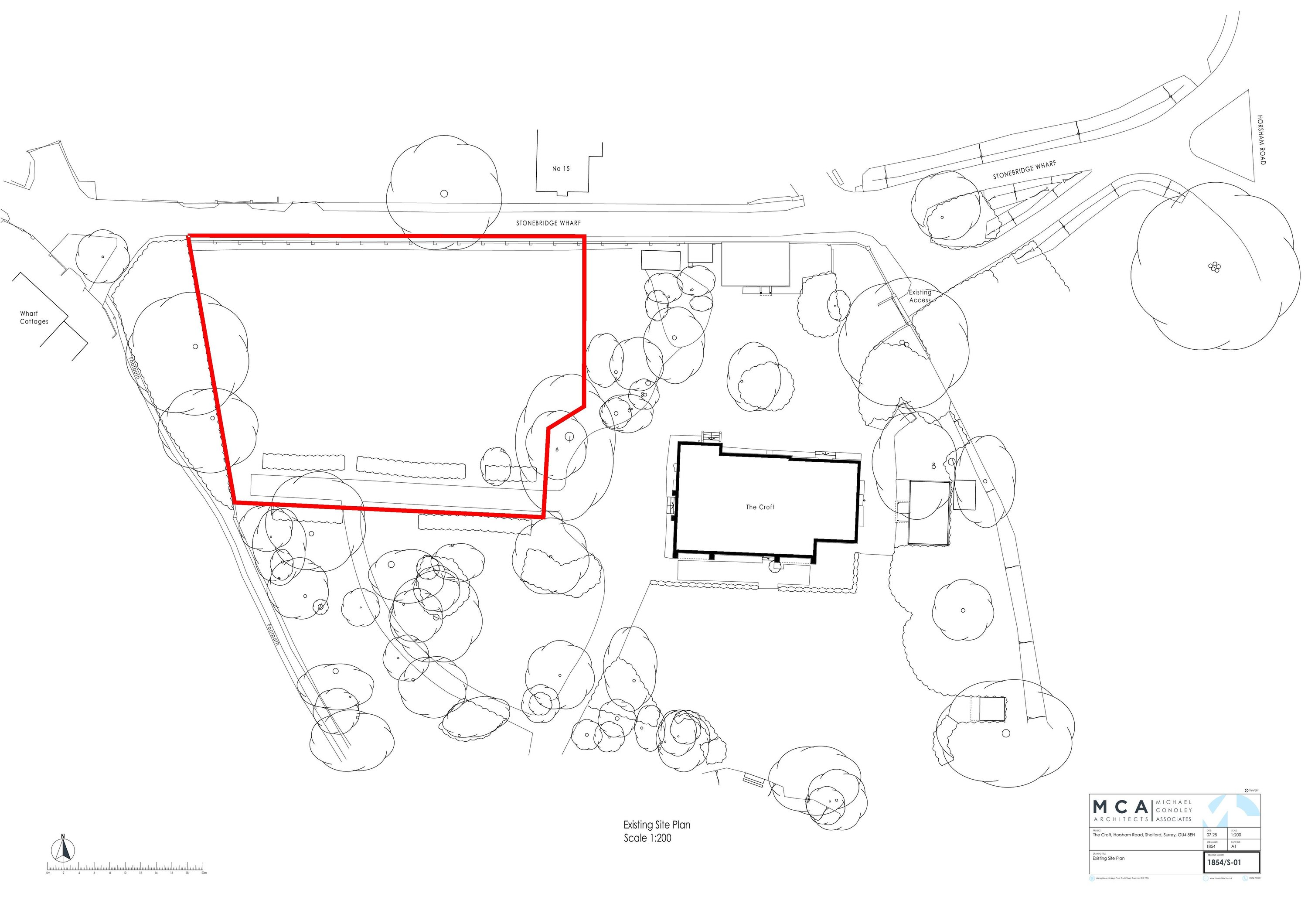
Erection of two detached dwellings.

Full Proposal

Erection of two detached dwellings.

Documents

Application form redacted
Application Form
Not archived · Council Link
Arboricultural report
Application Document
Not archived · Council Link
Biodiversity impact calculation
Application Document
Not archived · Council Link
Biodiversity metric calculation tool
Application Document
Not archived · Council Link
Climate change questionnaire
Application Document
Not archived · Council Link
Design and access statement
Application Document
Not archived · Council Link
Energy demand & sustainability statement
Application Document
Not archived · Council Link
Drawing
Archived · Council Link
Location plan
Drawing
Not archived · Council Link
Mr matthew harwood - supports
Correspondence
Not archived · Council Link
Paula & steve nutbeam - object
Correspondence
Not archived · Council Link
Preliminary ecological appraisal
Application Document
Not archived · Council Link
Proposed street scene from stonebridge wharf
Drawing
Not archived · Council Link
Sap calculations - unit 1
Application Document
Not archived · Council Link
Sap calculations - unit 2
Application Document
Not archived · Council Link
Scc highways response
Correspondence
Not archived · Council Link
Shalford parish council comments
Correspondence
Not archived · Council Link
Space standard matrix
Application Document
Not archived · Council Link
Surrey wildlife trust comments
Correspondence
Not archived · Council Link

Take Action

Make your voice heard. Authorities need to hear from people who support new homes.

✉️ Write Email in Support View on Council Portal