← Back to Guildford Borough Council

Status

Registered New housing
Received
15 Sep 2025
New dwellings
2

Summary

Erection of two detached dwellings with parking and landscaping after demolition of existing dwelling.

Full Proposal

Proposed erection of two detached dwellings with associated parking and landscaping following demolition of the existing dwelling.

Documents

Amended arboricultural assessment
Application Document
Not archived · Council Link
Application form redacted
Application Form
Not archived · Council Link
Arboricultural officer
Correspondence
Not archived · Council Link
Bat emergence and re-entry surveys
Application Document
Not archived · Council Link
Biodiversity metric calculation tool
Application Document
Not archived · Council Link
Biodiversity net gain assessment
Application Document
Not archived · Council Link
Caroline wheeler - object
Correspondence
Not archived · Council Link
Climate change questionaire
Application Document
Not archived · Council Link
Design & access statement
Application Document
Not archived · Council Link
Existing block plan
Drawing
Not archived · Council Link
Existing elevations e01 & e02
Drawing
Not archived · Council Link
Existing floor & roof plans
Drawing
Not archived · Council Link
Phillip christian - object
Correspondence
Not archived · Council Link
Planning policy comments
Correspondence
Not archived · Council Link
Planning statement
Application Document
Not archived · Council Link
Preliminary ecological appraisal and roost assessment
Application Document
Not archived · Council Link
Proposed block plan
Drawing
Not archived · Council Link
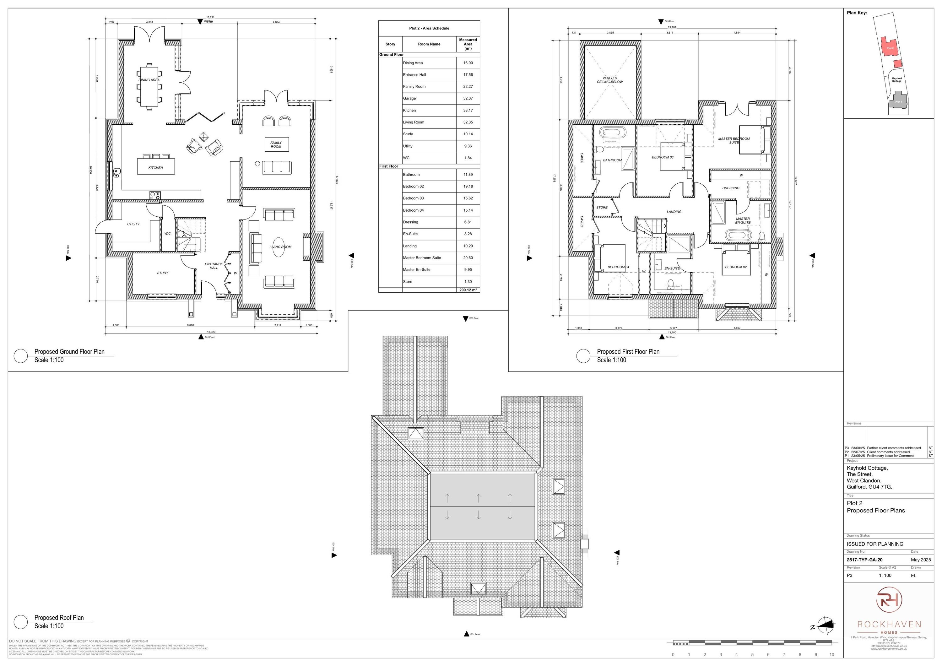
Proposed garage plot 2 e05-8 plans & elevations
Drawing
Not archived · Council Link
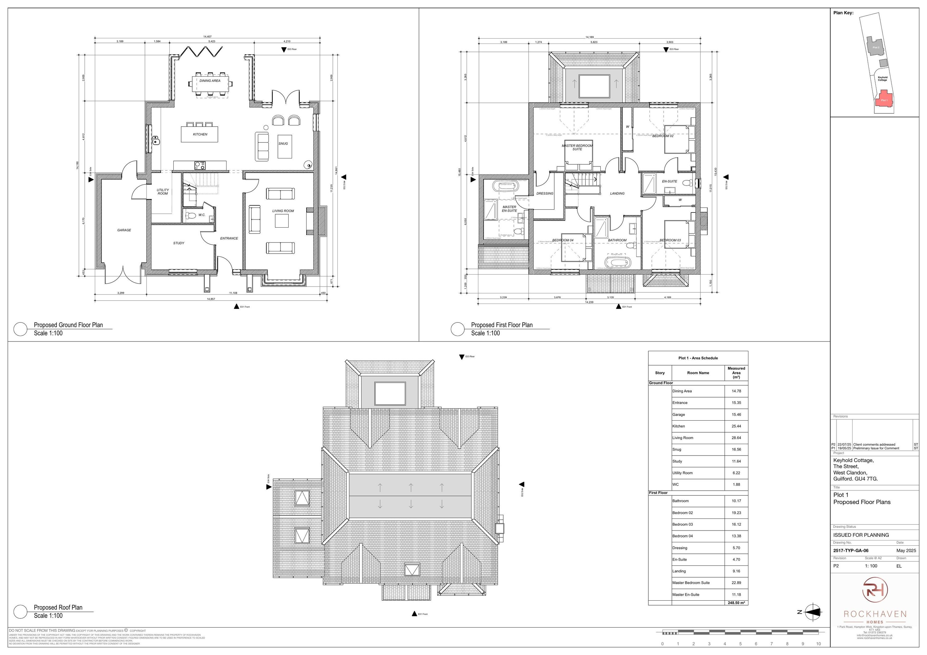
Proposed plot 1 e01 & e02 elevations
Drawing
Not archived · Council Link
Proposed plot 1 e03 & e04 elevations
Drawing
Not archived · Council Link
Proposed plot 2 e01 & e02 elevations
Drawing
Not archived · Council Link
Proposed plot 2 e03 & e04 elevations
Drawing
Not archived · Council Link
Drawing
Archived · Council Link
Sap calculation - plot 1
Application Document
Not archived · Council Link
Sap calculation - plot 2
Application Document
Not archived · Council Link
Sit enotice
Photo
Not archived · Council Link
Drawing
Archived · Council Link
Superseded arboricultural assessment
Application Document
Not archived · Council Link
Surrey cc highways
Correspondence
Not archived · Council Link
Surrey highways - comment
Correspondence
Not archived · Council Link
Surrey wildlife trust
Correspondence
Not archived · Council Link
Surrey wildlife trust
Correspondence
Not archived · Council Link

Take Action

Make your voice heard. Authorities need to hear from people who support new homes.

✉️ Write Email in Support View on Council Portal