← Back to Guildford Borough Council

Status

Registered New housing
Received
13 Oct 2025
New dwellings
1

Full Proposal

Erection of a self-build detached two-storey dwelling along with bin store, cycle store and boundary gates following demolition of all existing buildings on site.

Documents

Application form redacted
Application Form
Not archived · Council Link
Assessors guide to reviewing photographic evidence
Application Document
Not archived · Council Link
Bike store
Drawing
Not archived · Council Link
Building regulations england part l compliance report
Application Document
Not archived · Council Link
Climate change, energy and sustainable development questionnaire
Application Document
Not archived · Council Link
Construction detailing
Application Document
Not archived · Council Link
Ecological impact assessment
Application Document
Not archived · Council Link
Existing garage floor plans and elevations
Drawing
Not archived · Council Link
Existing lower ground floor plan
Drawing
Not archived · Council Link
Existing north-east & south-east elevations
Drawing
Not archived · Council Link
Existing north-west & south-west elevations
Drawing
Not archived · Council Link
Existing site block plan
Drawing
Not archived · Council Link
Existing static caravan floor plan and elevations
Drawing
Not archived · Council Link
Existing utility & bin store floor plans and elevations
Drawing
Not archived · Council Link
Landscape details - gates
Drawing
Not archived · Council Link
Location plan
Drawing
Not archived · Council Link
Nationally described space standards
Application Document
Not archived · Council Link
Part g compliance report
Application Document
Not archived · Council Link
Part l photographic evidence report
Application Document
Not archived · Council Link
Planning statement
Application Document
Not archived · Council Link
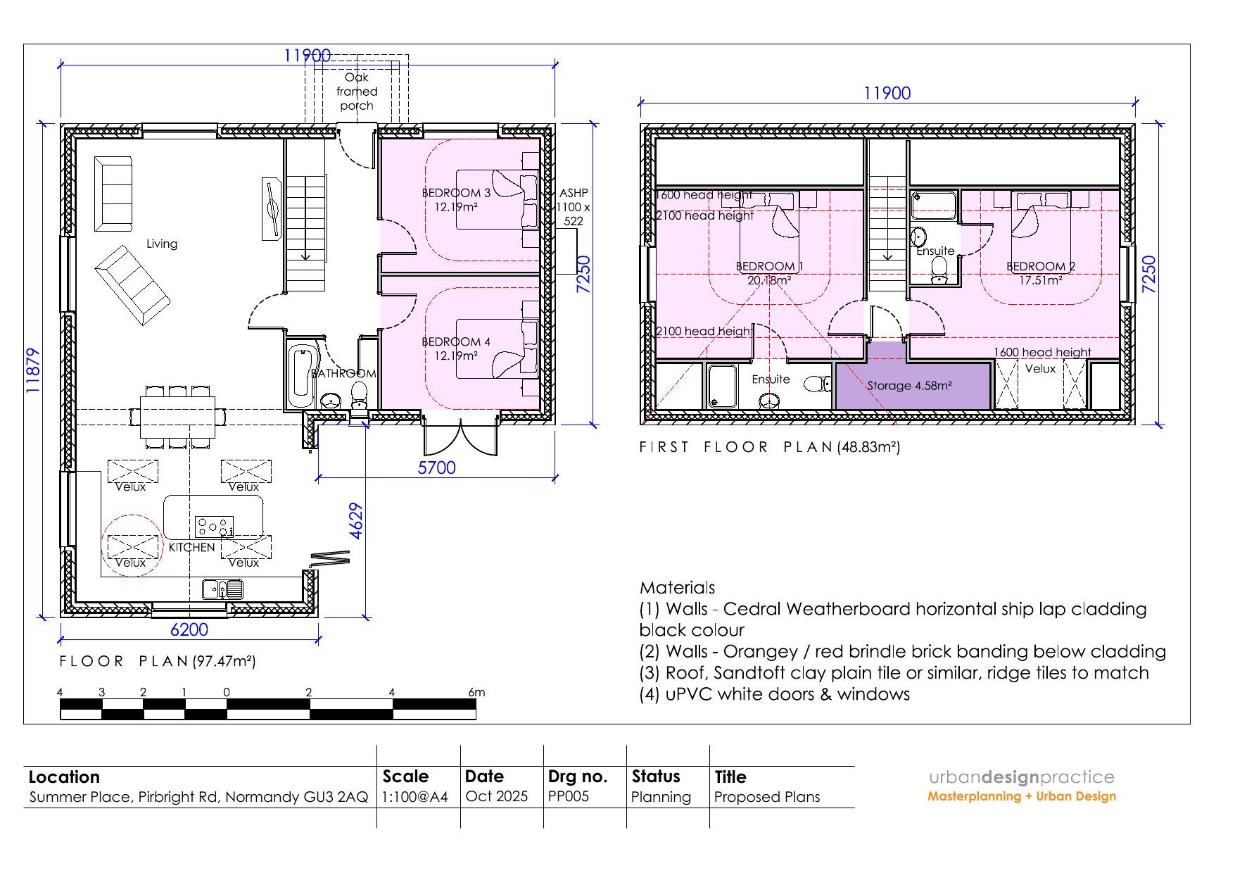
Proposed elevations
Drawing
Not archived · Council Link
Drawing
Archived · Council Link
Drawing
Archived · Council Link
Site specification sheet
Application Document
Not archived · Council Link
Surrey highways - comment
Correspondence
Not archived · Council Link
Topographical survey 1
Drawing
Not archived · Council Link
Topographical survey 2
Drawing
Not archived · Council Link
Waste/recycling store
Drawing
Not archived · Council Link

Take Action

Make your voice heard. Authorities need to hear from people who support new homes.

✉️ Write Email in Support View on Council Portal