← Back to Guildford Borough Council

Status

Registered New housing
Received
03 Nov 2025
New dwellings
1

Summary

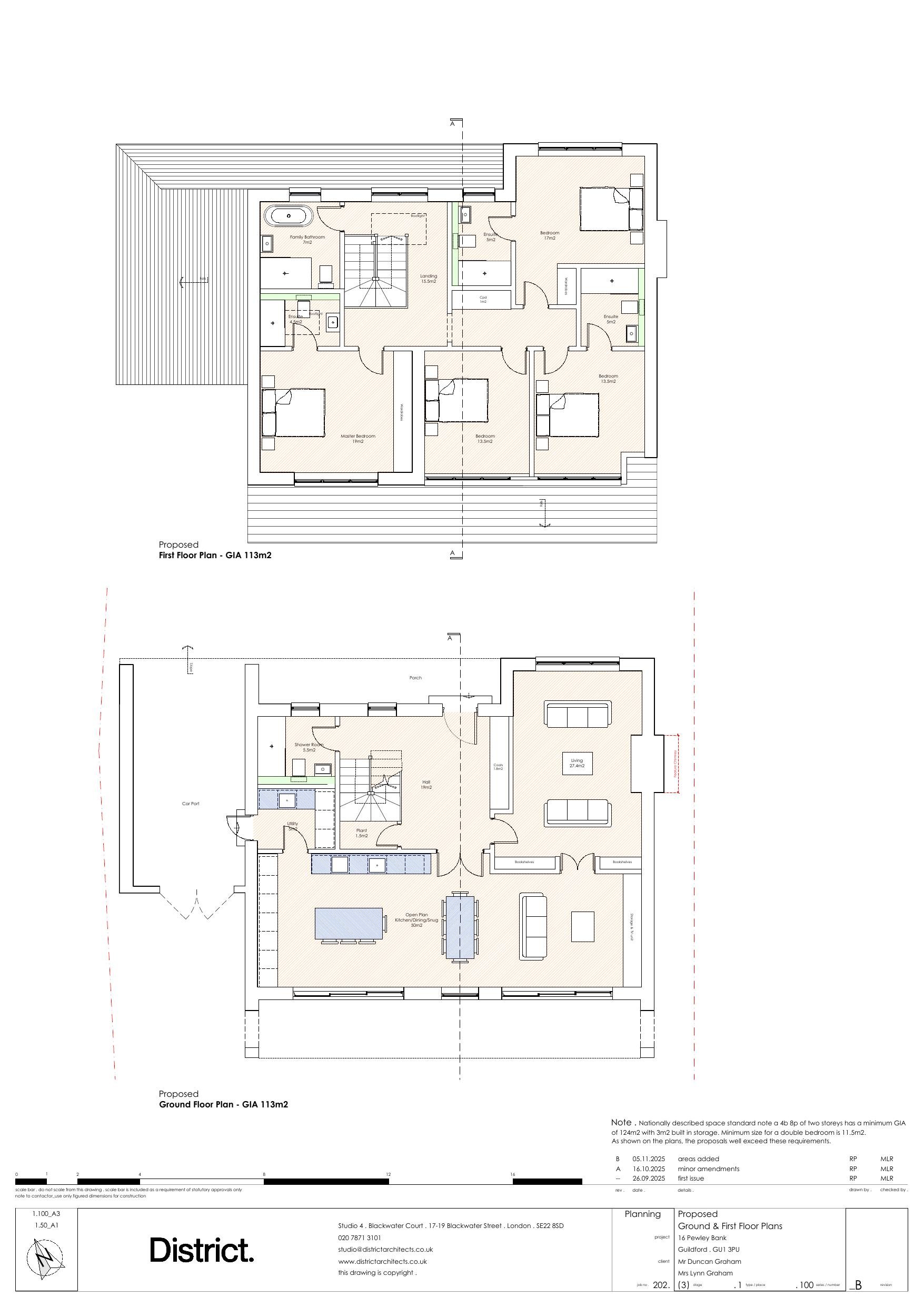
Demolish and build 4-bed two-storey house.

Full Proposal

Erection of a 4 bedroom two storey self-build dwelling house following the demolition of existing dwelling.

Documents

Application form redacted
Application Form
Not archived · Council Link
Climate change questionnaire
Application Document
Not archived · Council Link
Design and access statement
Application Document
Not archived · Council Link
Energy and sustainability statement
Application Document
Not archived · Council Link
Existing block plan
Drawing
Not archived · Council Link
Existing elevation plans
Drawing
Not archived · Council Link
Existing floor and roof plans
Drawing
Not archived · Council Link
Existing location plan
Drawing
Not archived · Council Link
Existing sections
Drawing
Not archived · Council Link
Drawing
Archived · Council Link
Drawing
Archived · Council Link
Proposed front elevation
Drawing
Not archived · Council Link
Proposed rear elevation plan
Drawing
Not archived · Council Link
Proposed roof plan
Drawing
Not archived · Council Link
Proposed side elevation plan
Drawing
Not archived · Council Link
Proposed side elevation plans
Drawing
Not archived · Council Link
Drawing
Archived · Council Link
Proposed street elevations
Drawing
Not archived · Council Link
Self build form
Application Document
Not archived · Council Link
Surrey highways - comment
Correspondence
Not archived · Council Link
Technical note: ecology
Application Document
Not archived · Council Link
Thames water - comment
Correspondence
Not archived · Council Link
Tree report
Application Document
Not archived · Council Link
Wall detail
Application Document
Not archived · Council Link

Take Action

Make your voice heard. Authorities need to hear from people who support new homes.

✉️ Write Email in Support View on Council Portal