← Back to Halton Borough Council

Status

Awaiting decision Change of use
Received
26 Nov 2025
New dwellings
0

Full Proposal

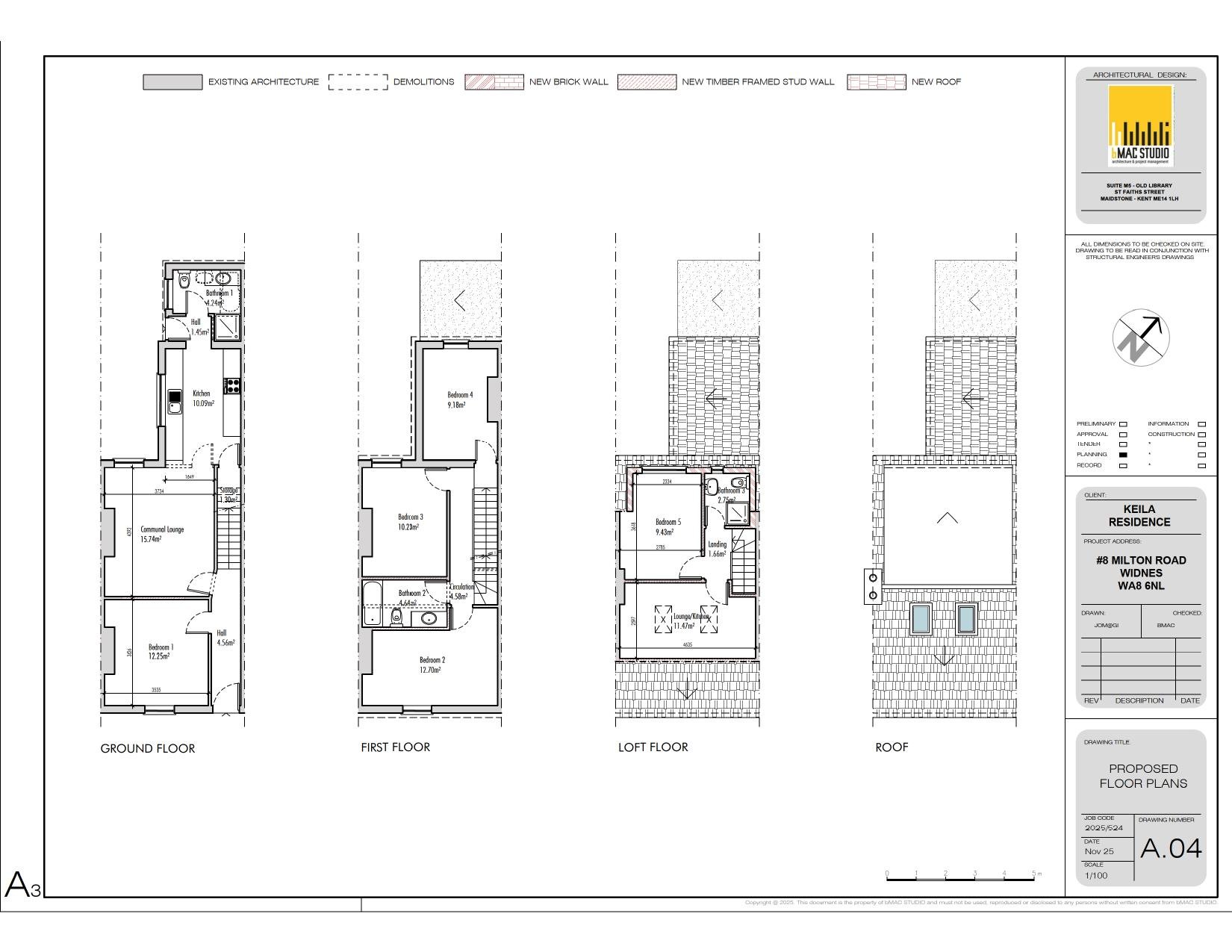
Proposed change of use from a single-family dwelling (Use Class C3) to a 5-bedroom House in Multiple Occupation (Use Class C4) including installation of a rear dormer, roof lights to front and internal alterations at

Documents

Plans
Archived · Council Link
A.03 EXISTING FLOOR PLANS
Plans
Not archived · Council Link
A.05 EXISTING ELEVATIONS
Plans
Not archived · Council Link
A.06 PROPOSED ELEVATIONS
Plans
Not archived · Council Link
APPLICATIONFORMREDACTED
Application Form
Not archived · Council Link
DESIGN ACCESS HERITAGE STATEMENT
Supporting Documents
Not archived · Council Link
HMO_MANAGEMENT_FIRE_WASTE
Supporting Documents
Not archived · Council Link
LOCATION PLAN
Plans
Not archived · Council Link

Take Action

Make your voice heard. Authorities need to hear from people who support new homes.

✉️ Write Email in Support View on Council Portal