← Back to Hambleton District Council (Legacy)

Status

Awaiting decision Change of use
Received
31 Jul 2024
New dwellings
1

Full Proposal

Change of use of former public house to dwelling

Documents

01 LOCATION PLAN.pdf
Location Plan
Not archived · Council Link
Proposed plans and elevations
Archived · Council Link
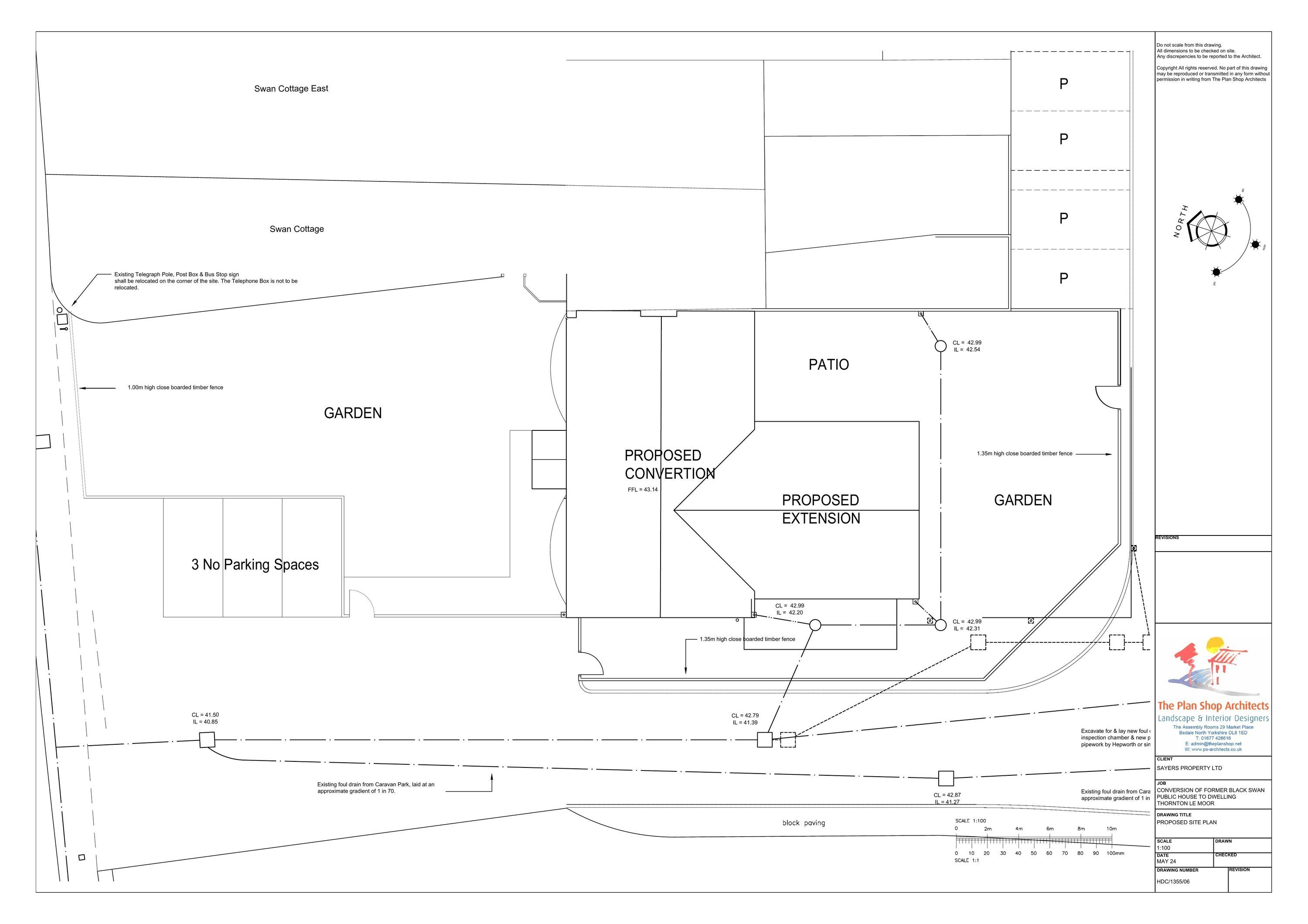
Proposed block plan
Archived · Council Link
129-15-01- EXISTING.pdf
Existing plans and elevations
Not archived · Council Link
ApplicationFormRedacted.pdf
Planning Application (public viewing)
Not archived · Council Link
Conditions Recommend
Statutory Consultation Reply
Not archived · Council Link
E H contaminated Land
Statutory Consultation Reply
Not archived · Council Link
NEUTRAL - "The Black Swan opened its doors as a pub during the mid 1700s. In more recent times, and particularl..."
Observations (incoming)
Not archived · Council Link
No Objection
Statutory Consultation Reply
Not archived · Council Link
Parish
Statutory Consultation Reply
Not archived · Council Link
SUPPORTING STATEMENT.pdf
Planning Support Statement
Not archived · Council Link

Take Action

Make your voice heard. Authorities need to hear from people who support new homes.

✉️ Write Email in Support View on Council Portal