← Back to Hambleton District Council (Legacy)

Status

Awaiting decision New housing
Received
25 Sep 2024
New dwellings
4

Full Proposal

Proposed redevelopment of agricultural buildings to create 4no. self-build residential dwellings (Use Class C3), provision of an altered vehicular access, landscaping and associated development.

Documents

0004962-0000-LocationPlan.pdf
Location Plan
Not archived · Council Link
3627D Appendix B (a) - Phase 1 Land Contamination.pdf
Survey
Not archived · Council Link
ApplicationFormRedacted.pdf
Planning Application (public viewing)
Not archived · Council Link
Bat Survey
Bat Survey
Not archived · Council Link
Biodiversity Net Gain Assessment
Biodiversity Net Gain Assessment
Not archived · Council Link
Design Principles
Word Document
Not archived · Council Link
Proposed plans and elevations
Archived · Council Link
Drainage Strategy Report - redacted
Drainage
Not archived · Council Link
Site Layout Plan
Archived · Council Link
Highways supporting statement
Planning Support Statement
Not archived · Council Link
Indicative View
3D indicative
Not archived · Council Link
Land Contamination detail
Survey
Not archived · Council Link
Land Contamination detail
Survey
Not archived · Council Link
Land Contamination Risk Assessment
Survey
Not archived · Council Link
NEUTRAL - "While not objecting to the planning itself there is a couple of points we would like you to take int..."
Observations (incoming)
Not archived · Council Link
No Objection
Statutory Consultation Reply
Not archived · Council Link
Noise Assessment
Survey
Not archived · Council Link
NYC Highways
Statutory Consultation Reply
Not archived · Council Link
Parish
Statutory Consultation Reply
Not archived · Council Link
Planning Statement Land at Cherry Tree Farm - Final.pdf
Planning Support Statement
Not archived · Council Link
Plot 1 Proposed elevation
Elevations Proposed
Not archived · Council Link
Plot 1 proposed Floor Plan
Proposed floor plan
Not archived · Council Link
Plot 2 Proposed elevations
Elevations Proposed
Not archived · Council Link
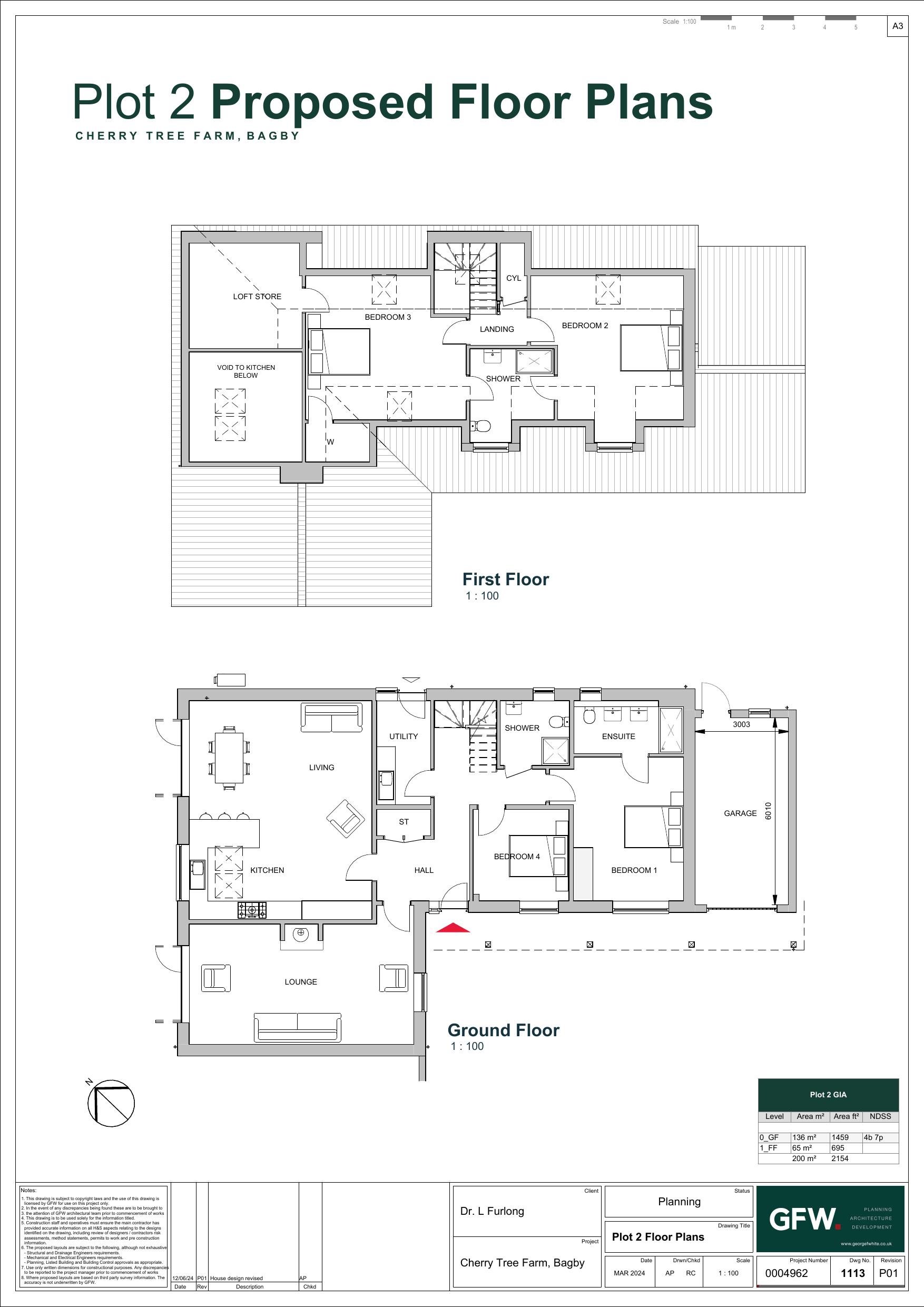
Proposed floor plan
Archived · Council Link
Proposed plans and elevations
Archived · Council Link
Plot 3 proposed elevations
Elevations Proposed
Not archived · Council Link
Proposed floor plan
Archived · Council Link
Proposed plans and elevations
Archived · Council Link
Plot 4 proposed elevations
Elevations Proposed
Not archived · Council Link
Plot 4 proposed Floor Plan
Proposed floor plan
Not archived · Council Link
Proposed Block Plan
Proposed block plan
Not archived · Council Link
Proposed Indicative View
3D indicative
Not archived · Council Link
Site Layout Plan
Archived · Council Link
With Conditions
Statutory Consultation Reply
Not archived · Council Link

Take Action

Make your voice heard. Authorities need to hear from people who support new homes.

✉️ Write Email in Support View on Council Portal