← Back to Hambleton District Council (Legacy)

Status

Decided (Refused) House extension
Received
18 Feb 2025
New dwellings
0

Summary

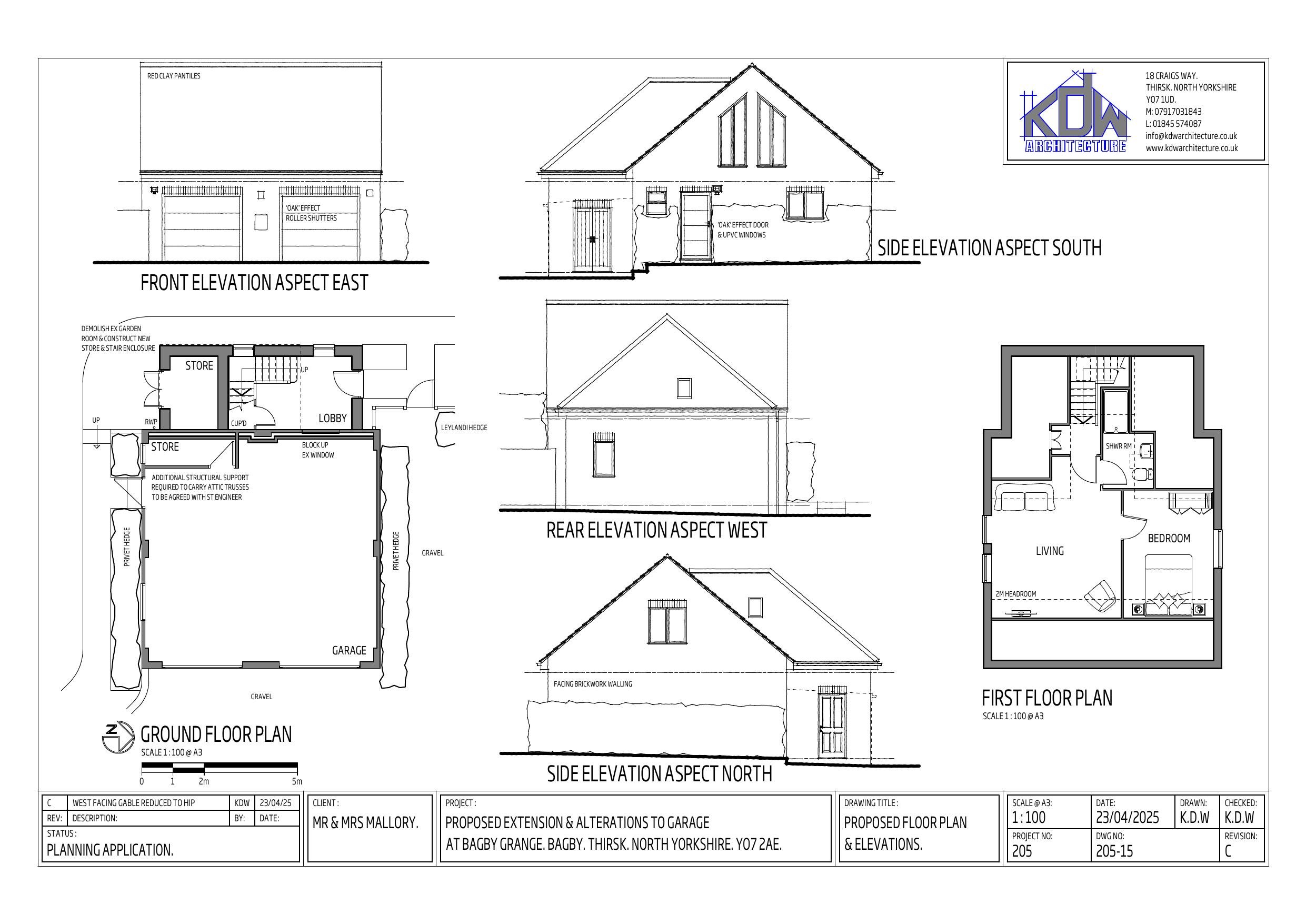
Demolish bootroom; construct new bootroom, extend property and alter garage to provide ancillary residential accommodation.

Full Proposal

Application for proposed demolition of existing bootroom to allow construction of new bootroom and extension and alterations to existing detached garage to create ancillary residential accommodation as amended by revised plans received 23 April 2025

Documents

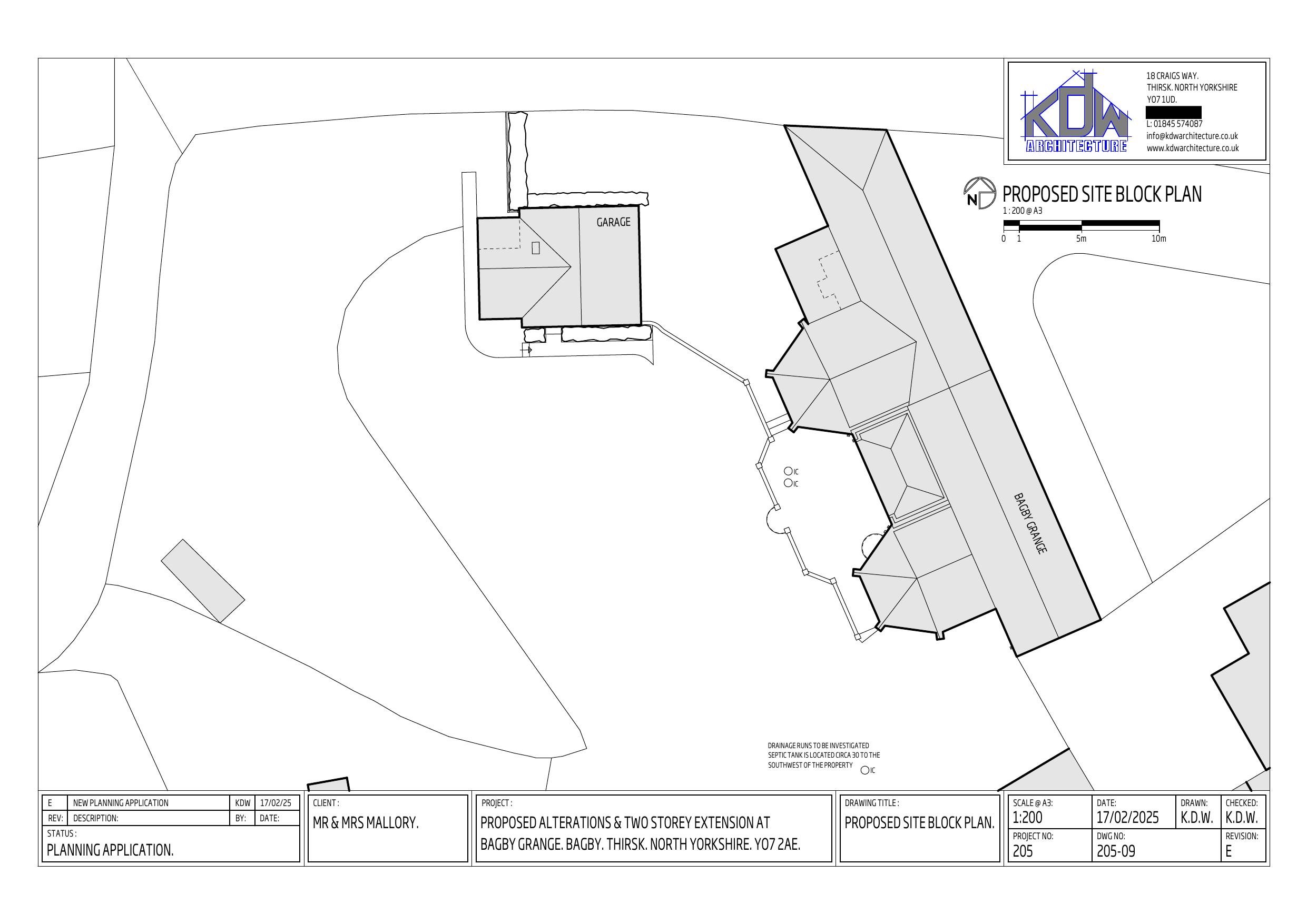
Existing Block Plan
Archived · Council Link
205-12A EXISTING AND PROPOSED BOOTROOM DETAILS 1TO100 A3.pdf
Superseded Plan
Not archived · Council Link
205-14 GARAGE EXISTING PLAN AND ELEVATIONS 1TO100 A3.pdf
Existing plans and elevations
Not archived · Council Link
205-15B GARAGE PROPOSED PLAN AND ELEVATIONS 1TO100 A3.pdf
Superseded Plan
Not archived · Council Link
ApplicationFormRedacted.pdf
Planning Application (public viewing)
Not archived · Council Link
DELA
Officer Report
Not archived · Council Link
Existing and proposed boot room
Amended Plans
Not archived · Council Link
Existing garage and boot room context elevations
Amended Plans
Not archived · Council Link
Garage and boot room context elevations
Amended Plans
Not archived · Council Link
Location Plan
Location Plan
Not archived · Council Link
Amended Plans
Archived · Council Link
REFULZ
Decision Notice
Not archived · Council Link
SUPPORTS - "We strongly support this prposed development. Bob and Hilary Chapman"
Observations (incoming)
Not archived · Council Link

Take Action

Make your voice heard. Authorities need to hear from people who support new homes.

✉️ Write Email in Support View on Council Portal