← Back to Hambleton District Council (Legacy)

Status

Decided (Granted) New housing
Received
07 Mar 2025
New dwellings
4

Summary

Residential development of four dwellings with garages.

Full Proposal

Residential development of 4 dwellings and garages

Documents

2412 DAS final.pdf
Design & Access Statement
Not archived · Council Link
2412-PD-01 Location Plan.pdf
Location Plan
Not archived · Council Link
Superseded Plan
Archived · Council Link
2412-PD-04 PLOT 1 The Aldwark.pdf
Proposed plans and elevations
Not archived · Council Link
2412-PD-05 PLOT 2 The Helmsley.pdf
Superseded Plan
Not archived · Council Link
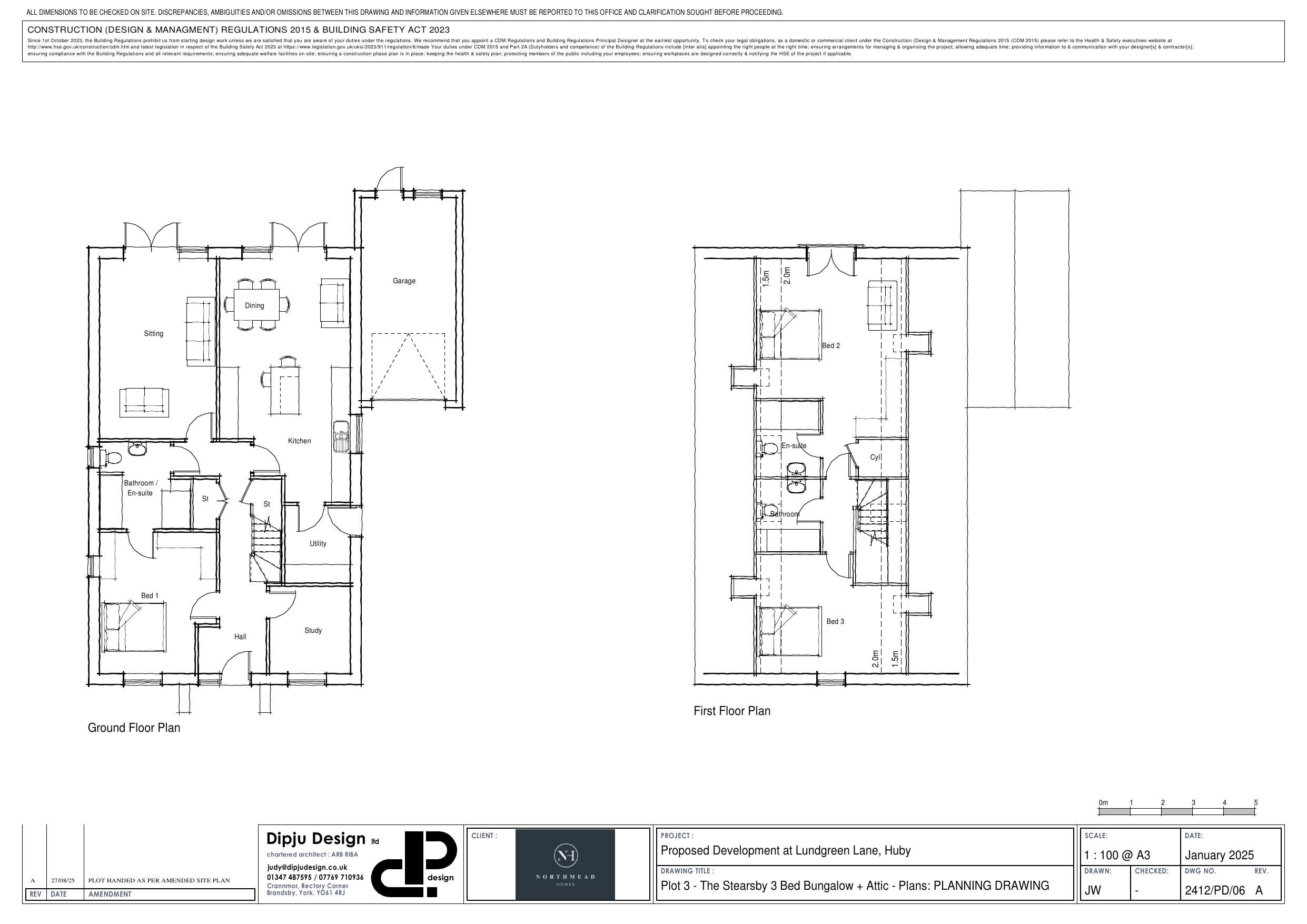
2412-PD-06 PLOT 3 The Stearsby Plans.pdf
Superseded Plan
Not archived · Council Link
2412-PD-07 PLOT 3 THE STEARSBY ELES.pdf
Superseded Plan
Not archived · Council Link
2412-PD-08A plot 4 The Yearsley.pdf
Proposed plans and elevations
Not archived · Council Link
2412-PD-09 DETACHED GARAGE.pdf
Proposed plans and elevations
Not archived · Council Link
2412-PD-10 PROPOSED STREETSCENE.pdf
Superseded Plan
Not archived · Council Link
4494-1 TOPO SURVEY.pdf
Topographical Survey
Not archived · Council Link
ApplicationFormRedacted.pdf
Planning Application (public viewing)
Not archived · Council Link
BNG Report.pdf
Biodiversity Net Gain Assessment
Not archived · Council Link
Comment and Conditions
Statutory Consultation Reply
Not archived · Council Link
Const Phase Layout - CPL01.pdf
Superseded Plan
Not archived · Council Link
Construction Management Plan RevA
Word Document
Not archived · Council Link
Construction Management Plan.pdf
Superseded Plan
Not archived · Council Link
Construction Phase Layout Plan
Plan
Not archived · Council Link
DELB
Officer Report
Not archived · Council Link
E Health contaminated land
Statutory Consultation Reply
Not archived · Council Link
Environmental Health
Statutory Consultation Reply
Not archived · Council Link
Foul Sewer Location.pdf
Plan
Not archived · Council Link
Foul Sewerage Proposal - Lundgreen Lane.pdf
Word Document
Not archived · Council Link
NEUTRAL - "I would just like to point out that we have chickens which include cockerels in the field opposite w..."
Observations (incoming)
Not archived · Council Link
Observations Made
Statutory Consultation Reply
Not archived · Council Link
PEFULZ
Decision Notice
Not archived · Council Link
Proposed plans and elevations
Archived · Council Link
Plot 3 Proposed Elevations
Elevations Proposed
Not archived · Council Link
Proposed floor plan
Archived · Council Link
Proposed block plan
Proposed block plan
Not archived · Council Link
Proposed block plan
Archived · Council Link
Proposed Streetscene
Streetscene
Not archived · Council Link
RAF MoD
Statutory Consultation Reply
Not archived · Council Link
Sewer Records for Tollerton Road.pdf
Plan
Not archived · Council Link
The_Statutory_Biodiversity_Metric_Calculation_Tool_-_Macro_disabled_02.24.xlsx
Biodiversity Net Gain Assessment
Not archived · Council Link
Town council
Statutory Consultation Reply
Not archived · Council Link
With conditions
Statutory Consultation Reply
Not archived · Council Link
With recommendations and map
Statutory Consultation Reply
Not archived · Council Link
With recommendations and map
Statutory Consultation Reply
Not archived · Council Link
Yorkshire Water
Statutory Consultation Reply
Not archived · Council Link

Take Action

Make your voice heard. Authorities need to hear from people who support new homes.

✉️ Write Email in Support View on Council Portal