← Back to Hambleton District Council (Legacy)

Status

Awaiting decision House extension
Received
03 Jun 2025
New dwellings
0

Summary

Conversion and extension of former agricultural buildings to enlarge existing dwelling; new garage and home office/gym.

Full Proposal

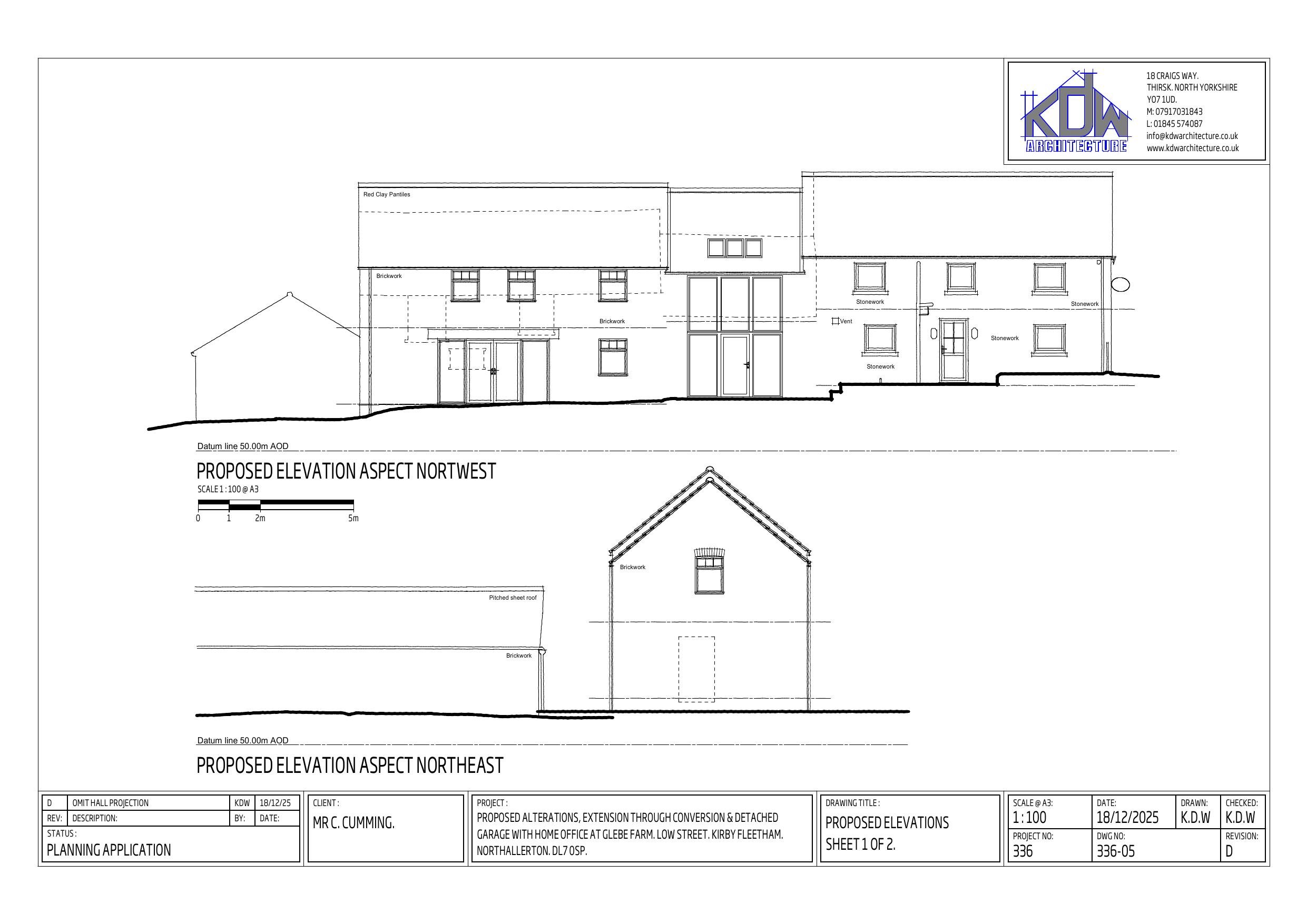
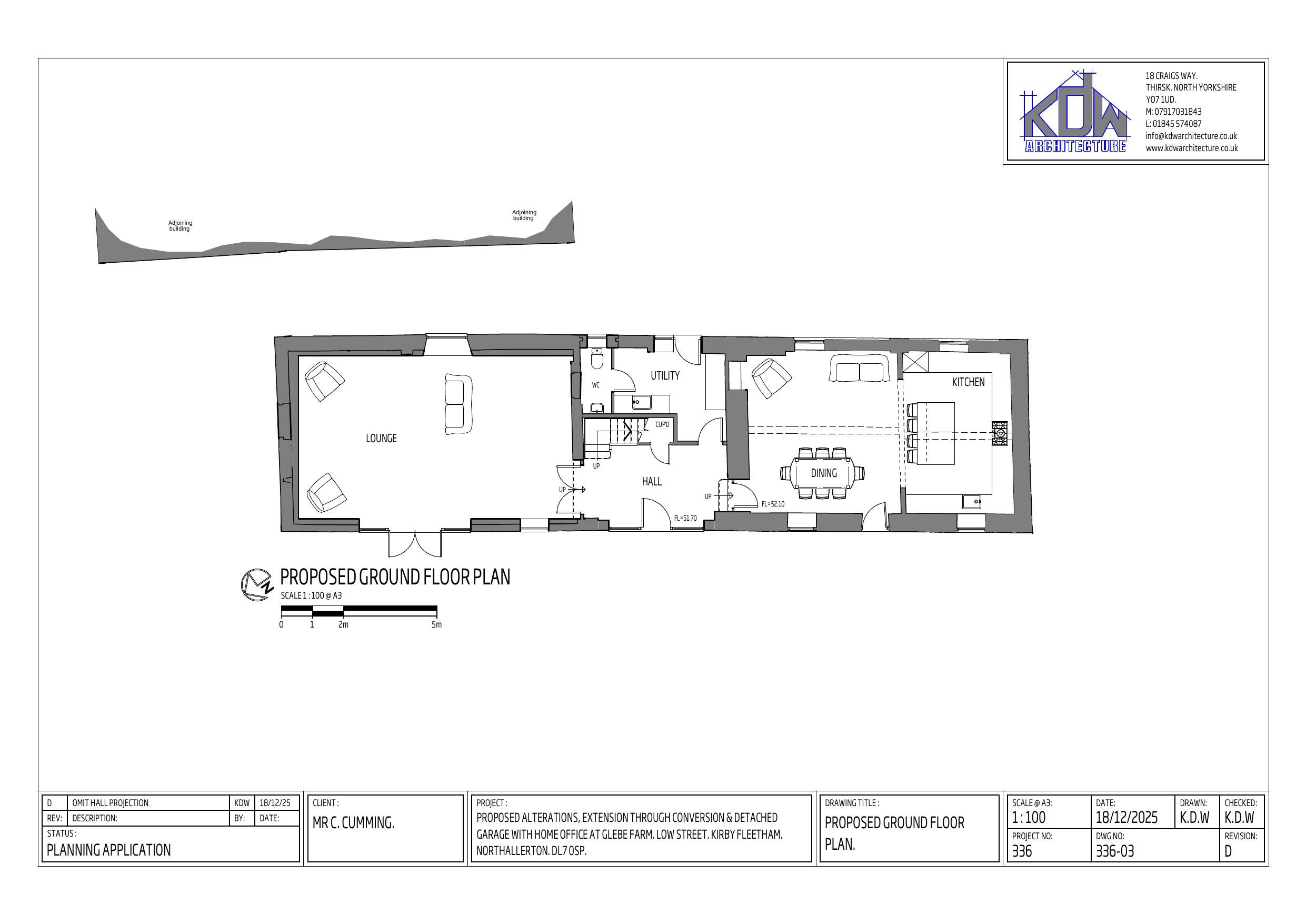
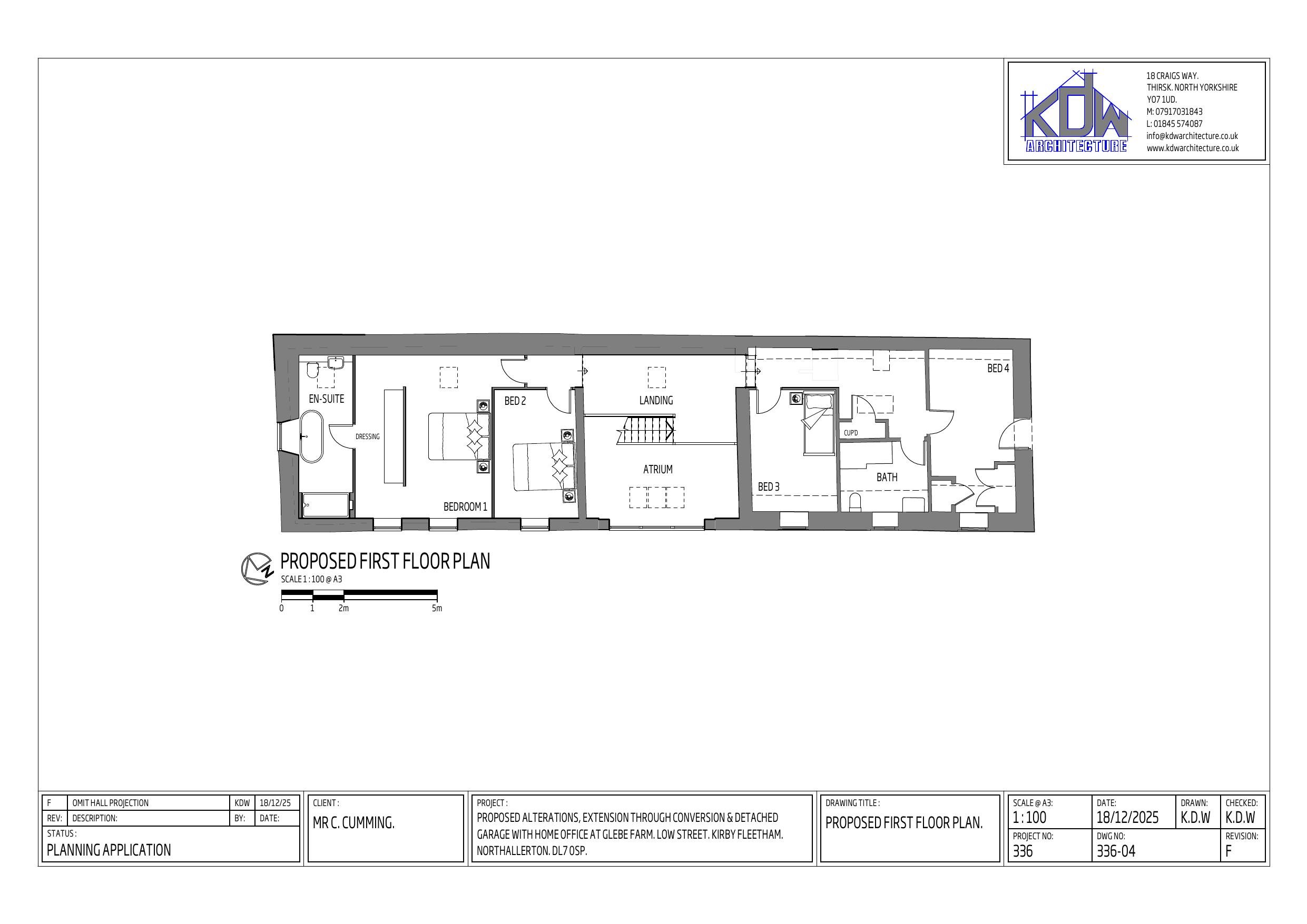
Conversion, Extension and Alteration of Existing Former Agricultural Buildings to Form Additional Living Accommodation to Existing Dwellinghouse, and Demolition of Existing Agricultural Dutch Barn and Replacement with a Detached Garage and Home Office/Gym as amended by revised plans received 18 December 2025

Documents

ApplicationFormRedacted.pdf
Planning Application (public viewing)
Not archived · Council Link
Bat Survey.pdf
Bat Survey
Not archived · Council Link
Drawing 1
Superseded Plan
Not archived · Council Link
Drawing 2
Superseded Plan
Not archived · Council Link
Dutch Barn
Existing plans and elevations
Not archived · Council Link
Existing
Section Plan
Not archived · Council Link
Existing Block Plan.pdf
Existing Block Plan
Not archived · Council Link
Existing Elevations Drawing.pdf
Proposed & Existing
Not archived · Council Link
First Floor
Existing Floor Plan
Not archived · Council Link
First floor
Superseded Plan
Not archived · Council Link
Garage
Superseded Plan
Not archived · Council Link
Ground Floor
Existing Floor Plan
Not archived · Council Link
Location Plan.pdf
Location Plan
Not archived · Council Link
Natural England
Statutory Consultation Reply
Not archived · Council Link
Planning and Design Statement.pdf
Planning Support Statement
Not archived · Council Link
Proposed Block Plan.pdf
Proposed block plan
Not archived · Council Link
Amended Plans
Archived · Council Link
Amended Plans
Archived · Council Link
Amended Plans
Archived · Council Link
Amended Plans
Archived · Council Link
Proposed garage plans
Amended Plans
Not archived · Council Link
Proposed Ground Floor Plan.pdf
Superseded Plan
Not archived · Council Link
RAF MoD
Statutory Consultation Reply
Not archived · Council Link
Second Floor
Existing Floor Plan
Not archived · Council Link

Take Action

Make your voice heard. Authorities need to hear from people who support new homes.

✉️ Write Email in Support View on Council Portal