← Back to Hambleton District Council (Legacy)

Status

Awaiting decision Agricultural
Received
17 Jul 2025
New dwellings
1

Summary

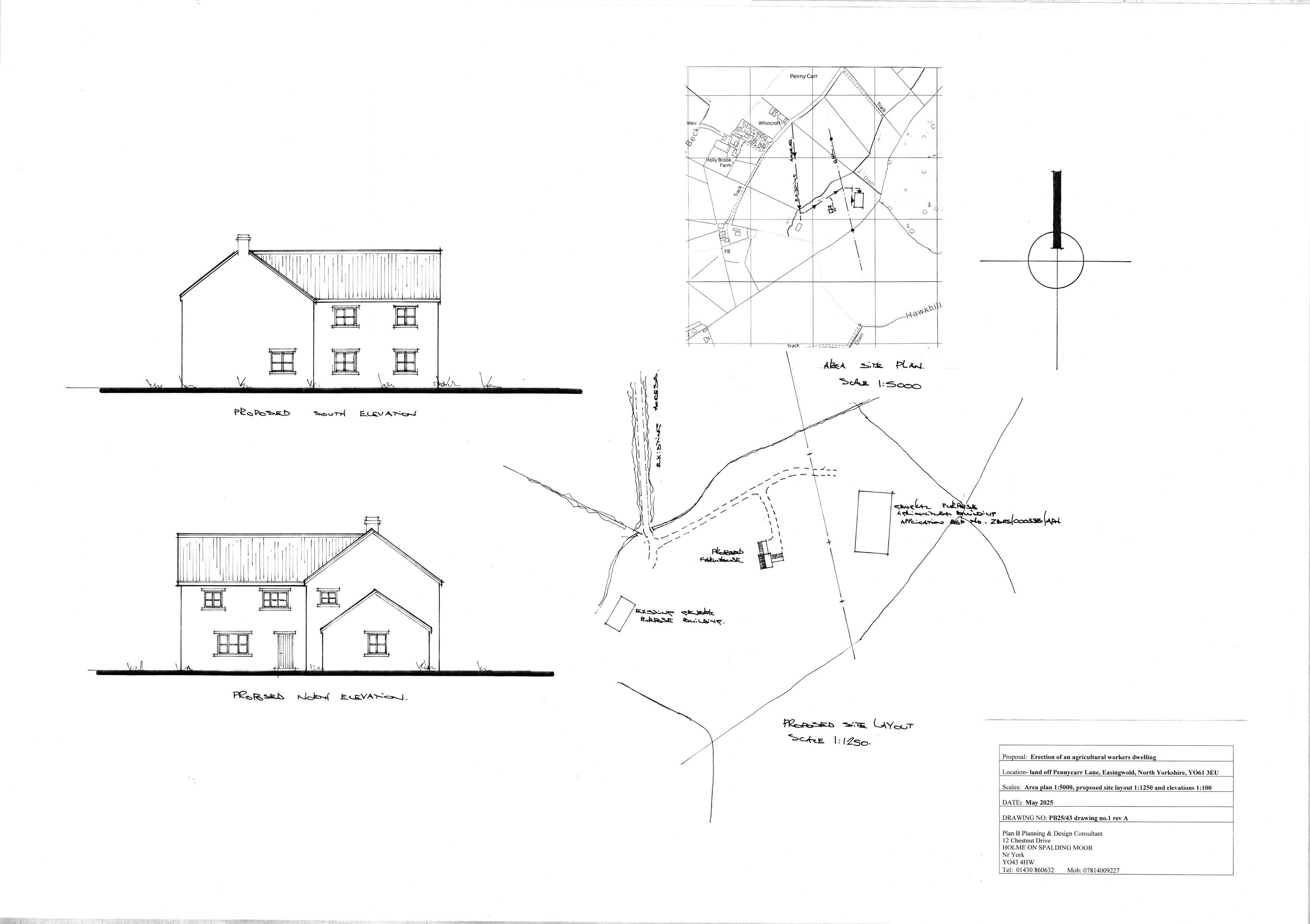
Erection of agricultural worker's dwelling with access and non‑mains drainage installation.

Full Proposal

Amended application for the erection of an agricultural workers dwelling, Construction of access and installation of non-mains drainage.

Documents

BNG matrix
Survey
Not archived · Council Link
BNG sketch planting
Survey
Not archived · Council Link
Ecology
Statutory Consultation Reply
Not archived · Council Link
Flood Assessment
Flood Assessment
Not archived · Council Link
habitat assessment
Survey
Not archived · Council Link
Habitat classification
Survey
Not archived · Council Link
K&U
Statutory Consultation Reply
Not archived · Council Link
Location Plan
Location Plan
Not archived · Council Link
Needs BNG information
Statutory Consultation Reply
Not archived · Council Link
No objection
Statutory Consultation Reply
Not archived · Council Link
No objections
Statutory Consultation Reply
Not archived · Council Link
NYC Highways
Statutory Consultation Reply
Not archived · Council Link
Planning Application (public viewing)
Planning Application (public viewing)
Not archived · Council Link
Planning Support Statement
Planning Support Statement
Not archived · Council Link
Proposed plans and elevations
Archived · Council Link
Proposed plans and elevations
Archived · Council Link
SNN
Statutory Consultation Reply
Not archived · Council Link
Word Document
Word Document
Not archived · Council Link
Yorkshire Water
Statutory Consultation Reply
Not archived · Council Link

Take Action

Make your voice heard. Authorities need to hear from people who support new homes.

✉️ Write Email in Support View on Council Portal